Svanes Plads 4
8700 Horsens

Sagsnr. 116464

Ejendomstype

Etageareal

Energiklasse

1.326 m²

C

Årlig leje

Leje pr. m²

Depositum

Årlig driftsudgift

Årlig driftsudgift pr. m²

1.056.970 kr.

797 kr.

528.485 kr.

110.000 kr.

83 kr.

Kontordomicil i Horsens midtby

Særdeles attraktivt domicillejemål i Horsens midtby.

Lejemålet kan p.t. lejes momsfrit.

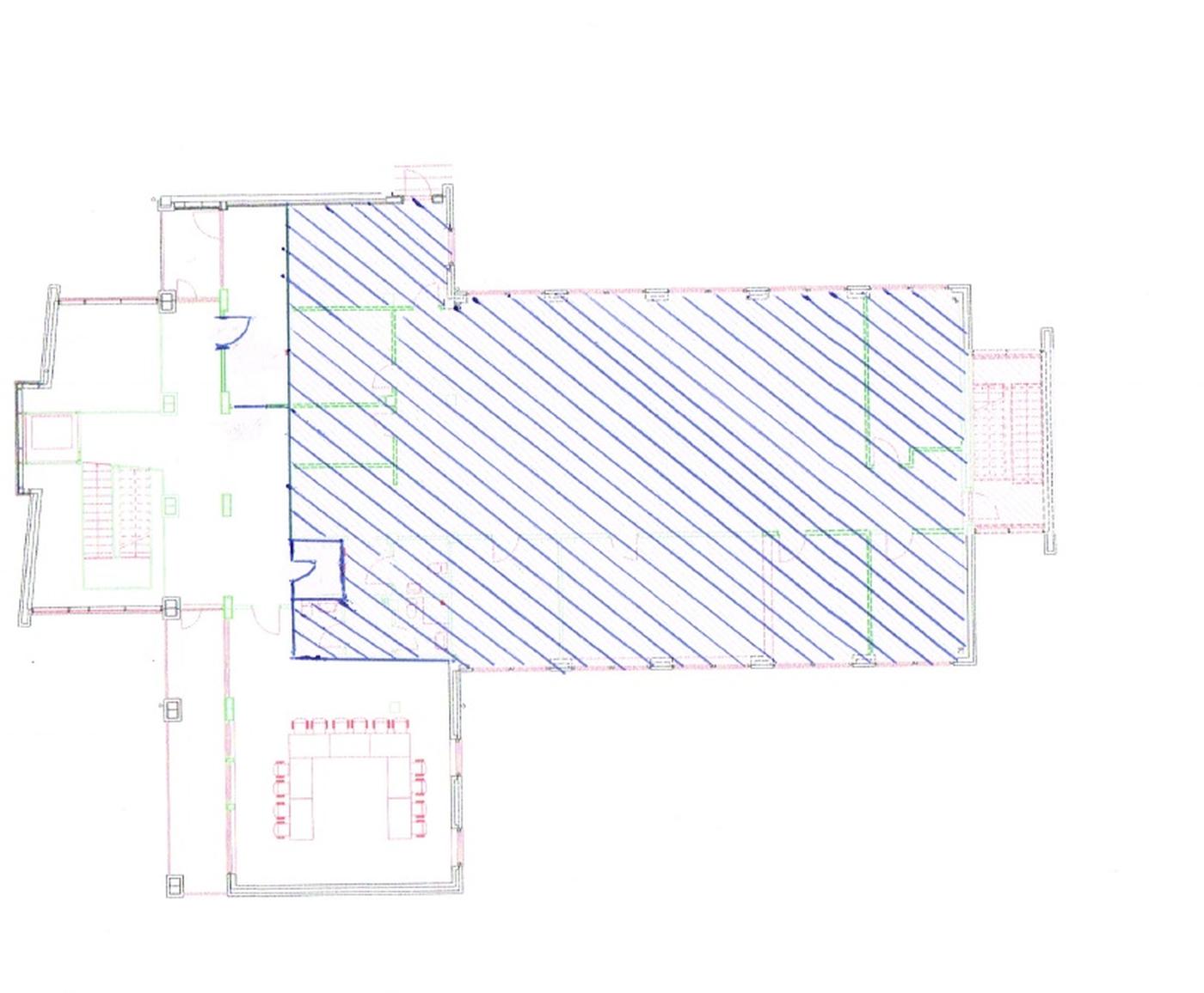
Lejemålet er på i alt 1.326 m² fordelt med 862 m² i stueplan, 188 m² på 1. sal og 276 m² kælder.

Lejemålet - ejerlejlighed nr. 2 - udgør del af bygningskompleks på i alt 3.308 m², som er opdelt i 2 ejerlejligheder. Den anden på ejendommen værende ejerlejlighed - ejerlejlighed nr. 1 - består af kontor i stueplan og boliger beliggende på 1., 2. og 3. sal tilhører Andelsboligforeningen Beringsgaard. Komplekset er opført i 2000. Grundarealet udgør 3.690 m².

Lejemålet har en arkitektonisk flot indgangsportal og brugsret til 31 parkeringspladser i gården. Der er ligeledes hovedindgang fra gård-siden, hvor parkeringspladserne er beliggende.

Ejendommen fremtræder særdeles flot og har en attraktiv beliggenhed i Horsens midtby meget tæt på banegården og Campus Horsens.

Lejemålet kan eventuelt opdeles efter nærmere aftale.

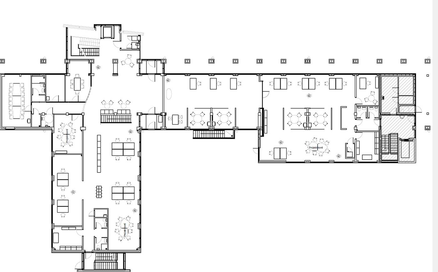
Indretning:
Lejemålet - der har været Nykredits lokale kontor siden opførelsen - er indrettet med både åbne kontorer og mange mødelokaler/mindre kontorer. Der er toiletter flere steder i lejemålet, ligesom der er et større køkken og mødelokale, alternativt frokoststue på 1. sal samt større te-køkken i stueplan.
Lejemålet er udstyret med elevator, ventilationsanlæg med køling, solafskærmning på vinduer mod syd, alarmanlæg m.v.

Lejemålet fremstår flot og moderne.

Ejendommen - ejerlejlighed nr. 2 - kan ligeledes købes. Forhør nærmere.

Læs mere

Vil du vide mere?

Bo Pinholt

bpi@nordicals.dk

+4523402909

Vitus Berings Plads 6, 8700 Horsens

+4576282610

8700@nordicals.dk

Besøg vores mæglerside

Lignende ejendomme

Til top