Birkholmvej 1
8752 Østbirk

Sagsnr. 116133L2

Ejendomstype

Etageareal

Grund

Energiklasse

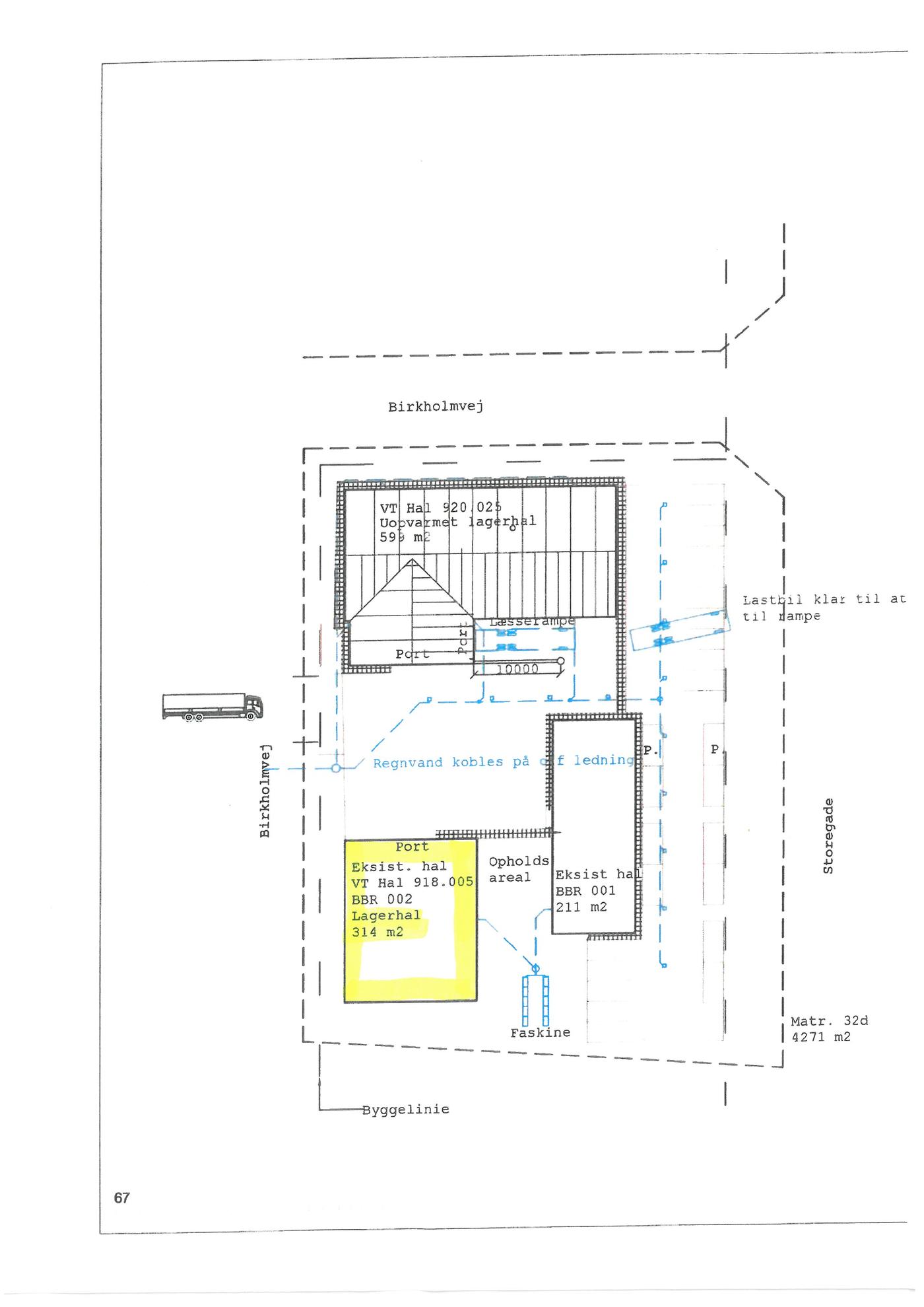
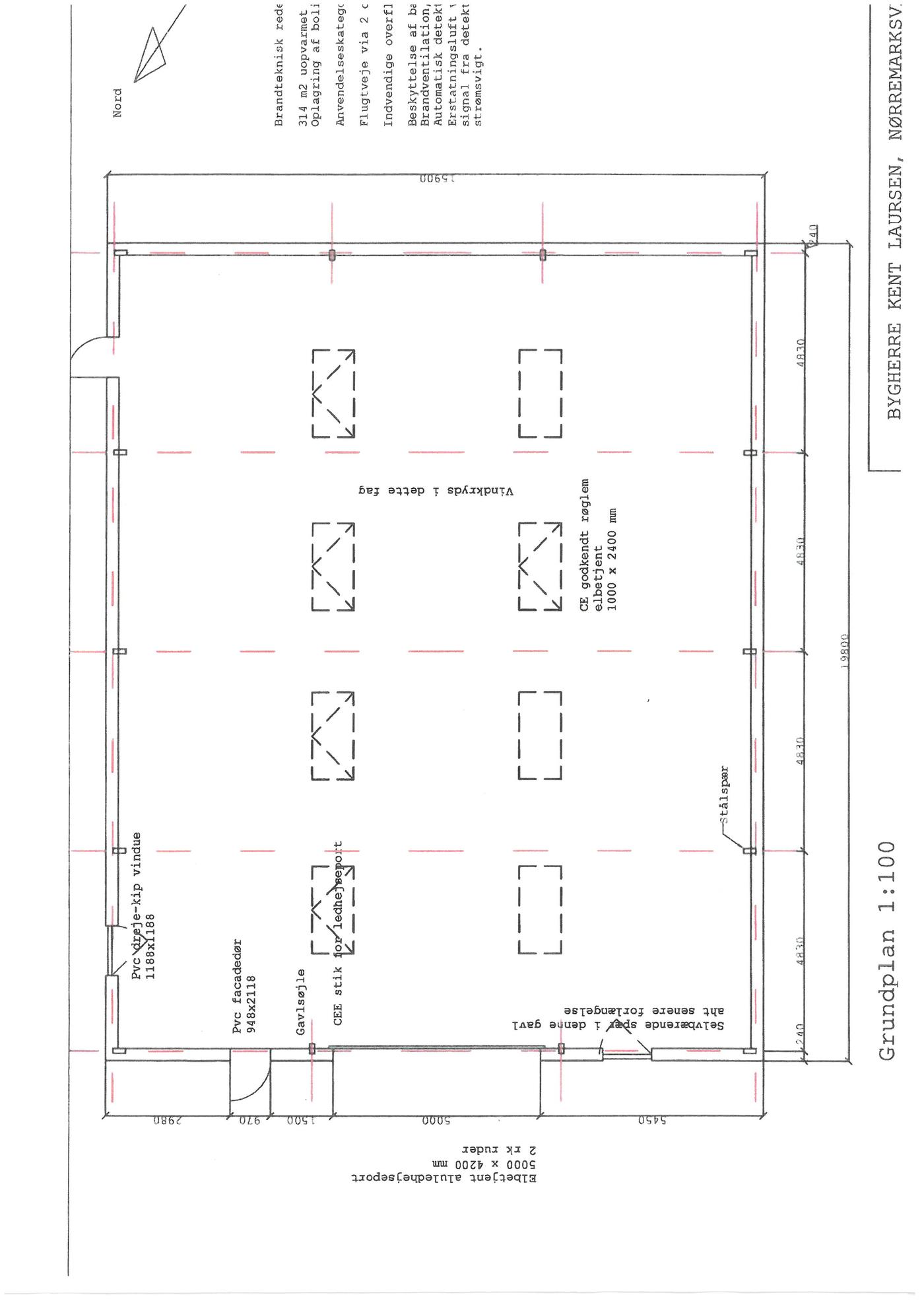
314 m²

4.271 m²

C

God lagerbygning

Isoleret og opvarmet lagerhal på 314 m² opført i 2019. Loftshøjde fra ca. 4 m i sider til ca. 6,5 m i kip. Der er elbetjent aluledhejseport - ca. 5 m bred og ca. 4,2 m høj.

Beliggende i erhvervsområde med god synlighed ved indfaldsvej til Østbirk. Der er kun ca. 6 km til motorvejstilslutning Horsens Nord og ca. 13 km til Horsens midtby.

Bygningen udgør del af ejendom med en samlet bebyggelse på i alt ca. 1.124 m² og et grundareal på 4.271 m².

I lejemålet henstår lagerreoler, som tilhører tidl. lejer og som evt. kan købes af denne.

Læs mere

Denne ejendom er udlejet

Vil du vide mere?

Nikolai Høgh

nih@nordicals.dk

+4528903268

Vitus Berings Plads 6, 8700 Horsens

+4576282610

8700@nordicals.dk

Besøg vores mæglerside

Lignende ejendomme

Til top