Storegade 1
8752 Østbirk

Sagsnr. 115925

Ejendomstype

Etageareal

Grund

Energiklasse

306 m²

746 m²

D

Kontantpris

Købspris pr. m²

Afkast

Årlig lejeindtægt

Årlig lejeindtægt pr. m²

Årlig driftsudgift

Årlig driftsudgift pr. m²

1.050.000 kr.

3.431 kr.

,7 %

56.400 kr.

184 kr.

49.069 kr.

160 kr.

Investeringsejendom

Mindre investeringsejendom.

Ejendommen, som er opført i 1890 og 1900 og senere ombygget, har et samlet boligareal på 182 m² fordelt på 2 etager/2 lejligheder. Erhvervslejemål i forhus på 62 m² samt erhvervsareal i baghus på 62 m² (tidl. bageri, køle- og frostrum). Tag på baghus er p.t. utæt.

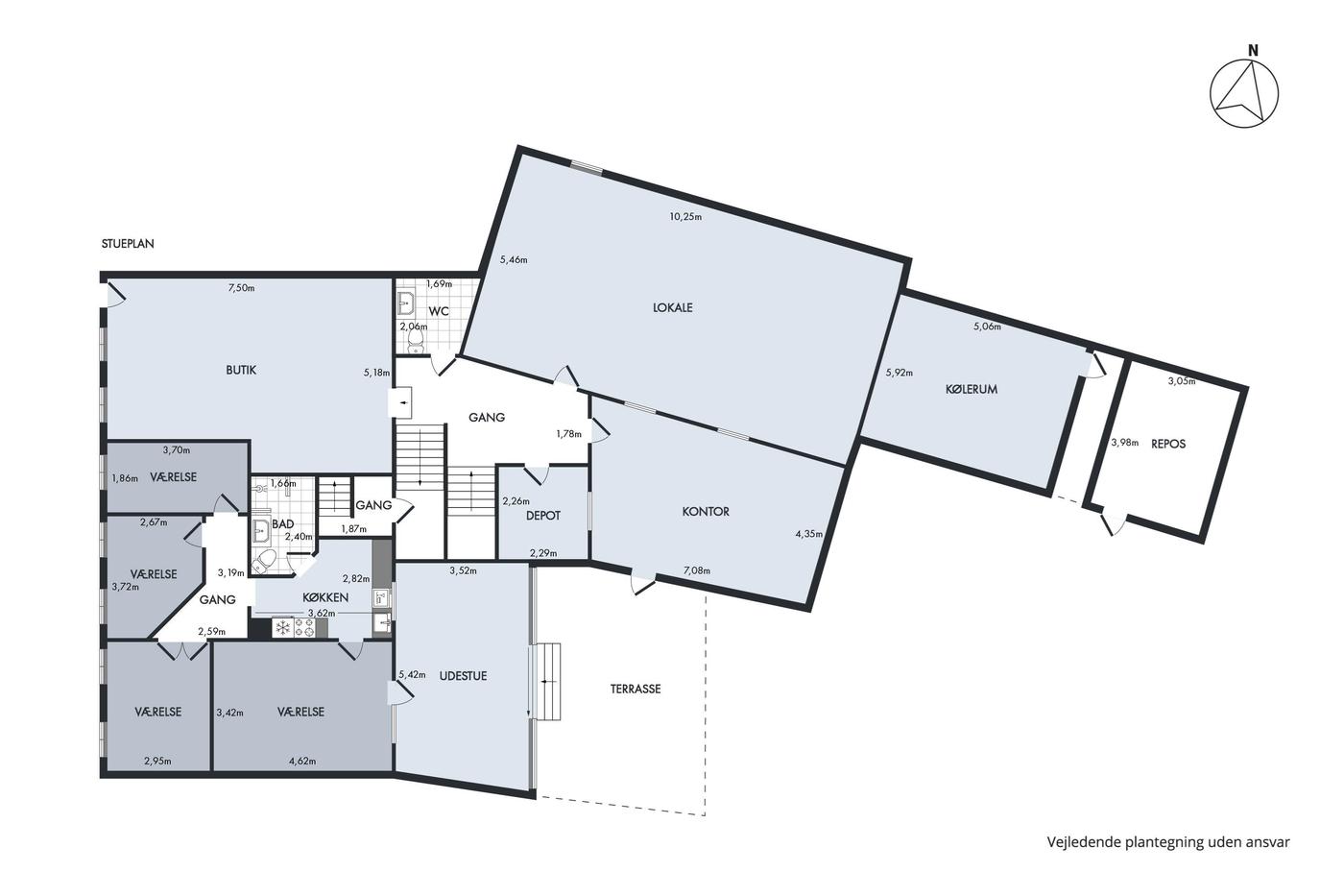
Stuelejlighed på 85 m² indeholdende 3 værelser, badeværelse, køkken og stue med udgang til 20 m² udestue med udgang til terrasse.
Butiks/kontorlejemål på 62 m² indeholdende butikslokale, toilet, depotrum og kontor.
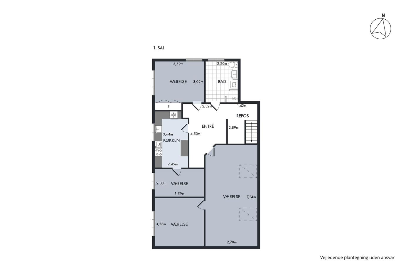
1.sals lejlighed på 97 m² indeholdende: entre, 3 værelser, stue, badeværelse og køkken.

Pæne lejligheder.

Stuelejligheden og erhvervslejemålet står p.t. tomme og sælger har ikke søgt lejemålene genudlejet grundet salget af ejendommen.

Ejendommen er beliggende midt i Østbirk.
Østbirk er et geografisk fantastiske bosætningssted i skøn natur og med en placering, hvor man på kort tid kan nå Aarhus, Horsens, Skanderborg, Silkeborg og Vejle. Østbirk kan tilbyde de vigtige forudsætninger for tilflytning og vækst, fuld skolepakke, fritidsfaciliteter, børnepasning og et dagligdags vigtigt handelsliv. I Østbirk værdsætter man lokalsamfundet og har stor ejerskabsfølelse for "sin" by. Der findes 15 butikker, 3 spisesteder, 2 sportsklubber, 2 forsamlingshuse, 1 vuggestue, 3 børnehaver, skole med 9 klassetrin. Ca. 2 km til Vestbirk Friskole og Naturbørnehave.

Der er ca. 7 km til motorvejstilslutning og ca. 14 km til Horsens midtby.

Ejendommen er registreret som beboelses- og forretningsejendom med 1 lejlighed. Boligarealet er dog opdelt i 2 lejligheder til hvilket der ikke er søgt byggetilladelse. Om hvorvidt opdelingen kan lovliggøres vides ikke og ejendommen sælges uden ansvar herfor.

Læs mere

Vil du vide mere?

Jesper Reinholt Düring

jrd@nordicals.dk

+45 2311 9944

Vitus Berings Plads 6, 8700 Horsens

+4576282610

8700@nordicals.dk

Besøg vores mæglerside

Lignende ejendomme

Til top