Lundborgvej 18, Lejemål 3
8800 Viborg

Sagsnr. 4154V-2

Ejendomstype

Etageareal

Grund

Energiklasse

820 m²

25.820 m²

A2010

Årlig leje

Leje pr. m²

Depositum

Årlig driftsudgift

Årlig driftsudgift pr. m²

690.900 kr.

843 kr.

345.450 kr.

205.000 kr.

250 kr.

Bliv lejer i Viborgs flotteste og præmierede klimavenlige kontordomicil

Tilmed er der gode tilkørsels- og stor gratis parkeringsplads umiddelbart ved bygningen. Desuden kort afstand til det overordnede vejnet samt få minutters kørsel til Viborg C.

Ejendommen er domicil for DAHL Advokatfirma, der forbliver i ejendommen som lejer.

Der er mulighed for at leje lejemål fra 554 m² og op til ca. 2.099 m² og eventuelt yderligere areal efter nærmere aftale. Lejemålene kan tillige kombineres efter nærmere aftale.

Lejemålene vil være velegnede til eksempelvis den finansielle sektor, forsikring, revision, IT-virksomhed etc.

Udover selve lejemålene er der adgang til fællesfaciliteter i form af fælles receptionsområde, kantine, motionsrum, mødelokaler og tagterrasser.

Adgang til bygningen via stor særdeles præsentabel reception / hall, hvorfra der er såvel trappe- som elevatoradgang til de enkelte etager.

Lejemålene er hovedsageligt opdelt i cellekontorer, men disse kan enkelt sammenlægges til storrumskontorer efter lejers behov. Der forefindes elevator i ejendommen.

Energimærke: A2010

Lejemål 1. ST. TV.: 554 m²

Lejemål 2, ST. TH.: 759 m²

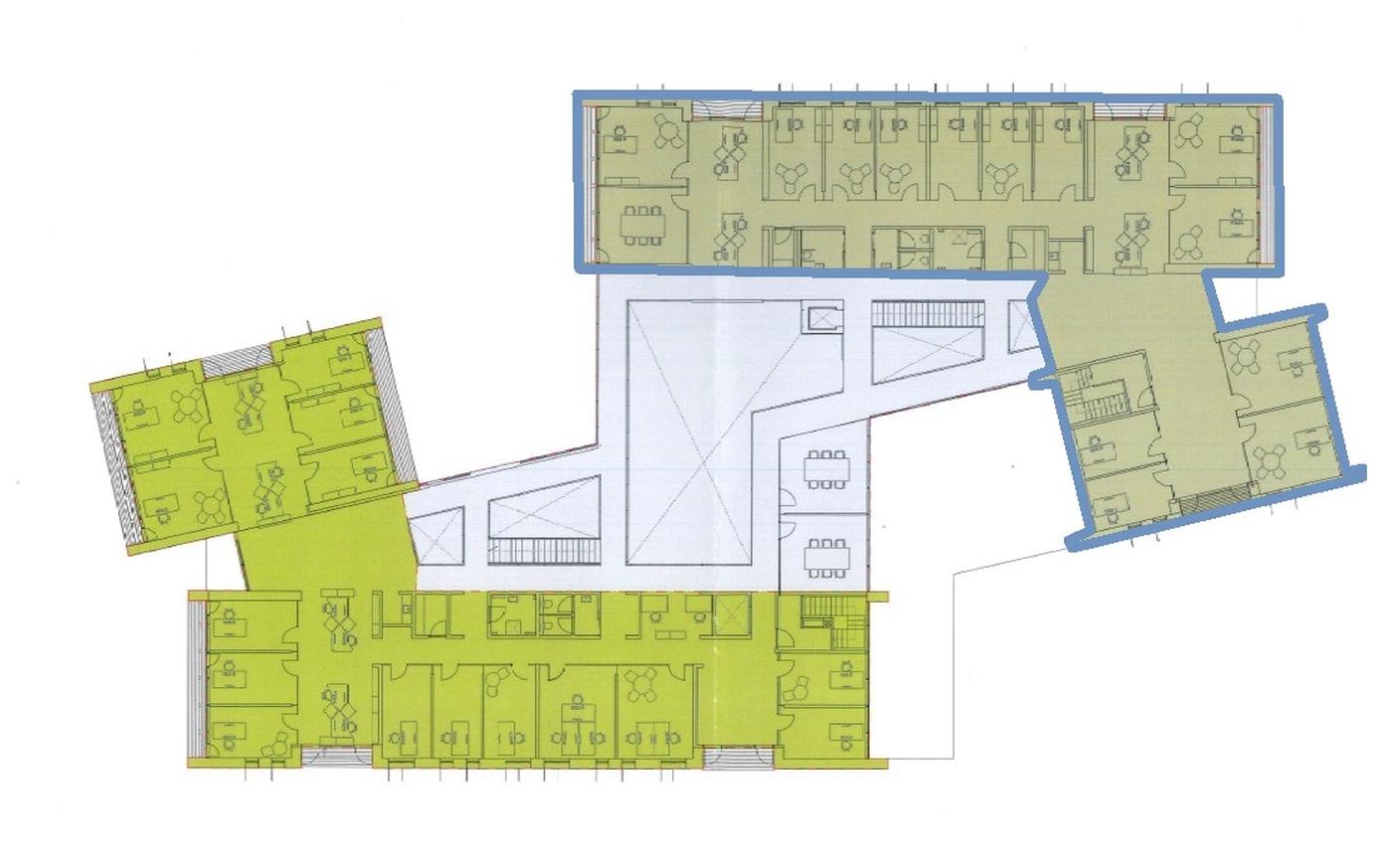
Lejemål 3, 01. TV.: 820 m²

Lejemål 4, 01. TH.: 796 m²

Lejemål 5, 02. TV.: 725 m²

Printerrum, lager og arkiv på 176 m² kan lejes efter behov.

Desuden kan ejendommen opdeles i 2 enheder på hhv. 2.099 m² og 1.555 m², hvor 2. salen med mødelokalerne deles mellem de to lejemål.

Lejemål 3 er beliggende på 1. sal og indeholder åbne kontorlandskaber med adgang til fordelingsgang til 14 kontorer / mødelokaler i varierende størrelser. Desuden thekøkken, toiletter og teknikrum. Selve lejemålets areal udgør 496 m² hertil andel af fælles kantine og motionsrum på 108 m² samt andel af øvrige fællesarealer på 216 m².

Læs mere

Vil du vide mere?

Morten Lundhøj

mol@nordicals.dk

+45 8915 3301

Toldboden 1, 6. sal , 8800 Viborg

+4570203911

8800@nordicals.dk

Besøg vores mæglerside

Lignende ejendomme

Til top