Lundborgvej 2E
8800 Viborg

Sagsnr. 4168V

Ejendomstype

Etageareal

Energiklasse

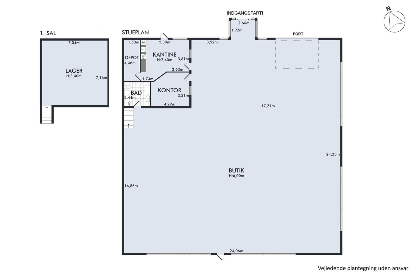
627 m²

C

Årlig leje

Leje pr. m²

Depositum

Årlig driftsudgift

Årlig driftsudgift pr. m²

454.575 kr.

725 kr.

113.644 kr.

6.000 kr.

10 kr.

Forretningslejemål opført i 2010

Bliv nabo til nyopført Jem & Fix forretning - foråret 2026!

Forretningslejemål opført i 2010 med synlig beliggenhed mod Viborgs næstmest trafikerede rundkørsel ved Vestre Ringvej og Vestermarksvej.

I bebyggelsen forefindes tillige Garant Brich Tæpper, JA-FI (jagt, fiskeri og outdoor). Desuden forefindes Bygma tømmerhandel samt Thuesen Farver som nærmeste naboer. Endvidere forefindes der flere køkkenforretninger samt bilforretninger i nærområdet.

Anvendelse: området er ifølge lokalplan udlagt til detailhandel med særlig pladskrævende varegrupper og lettere erhverv inden for miljøklasse 2 - 4 så som administrative erhverv og lettere produktion, lager- og servicevirksomheder, engroshandel og lignende med tilhørende udstilling

Konstruktion og facader: opført i 1 plan med ydervægge i koksgrå betonelementer samt vinduesfacader. Loftshøjde under spær ca. 6 meter. Der forefindes aluhejseport på ca. 4 x 4 meter i facaden.

Tag: built up (fladt tag) med ovenlyskupler.

Indretning: indgangsparti med adgang til rektangulært forretningslokale med adgang til mindre kontor- og personaleafsnit med frokostrum, kontor, toilet og teknikrum. Gulvet er malet betongulv.

Opvarmning: naturgas via loftsradiatorer.

Belysning: loftsarmaturer.

Parkering: stort fælles p-areal, der tillige benyttes af de øvrige forretninger i bebyggelsen.

Moms: ja.

Lejemålet stand ved overtagelse: overtages ryddeliggjort.

Bemærkninger: lejemålets areal kan gøres større ved indskudt dæk. inddragelse af en del af nabolejemålet (ca. 200 m2) og eller tilbygning.

Læs mere

Vil du vide mere?

Morten Lundhøj

mol@nordicals.dk

+45 8915 3301

Toldboden 1, 6. sal , 8800 Viborg

+4570203911

8800@nordicals.dk

Besøg vores mæglerside

Lignende ejendomme

Til top