Vestergade 2, 2,3.
8800 Viborg

Sagsnr. 4311-12

Ejendomstype

Etageareal

Energiklasse

552 m²

D

Årlig leje

Leje pr. m²

Depositum

Årlig driftsudgift

Årlig driftsudgift pr. m²

305.700 kr.

554 kr.

76.425 kr.

32.670 kr.

59 kr.

Flotte og indflytningsklare kontor-/kliniklokaler på gågaden i Viborg.

Flotte og indflytningsklare kontor-/kliniklokaler på gågaden i Viborg nabo til Preislers Plads, der er en stor offentlig parkeringsplads midt i Viborg.

Bygningen er indrettet handicapvenligt.

Lejemålet vil være særdeles velegnet til adskillige former for klinikformål, liberale erhverv, salgskontorer og lignende.

Adgang til lejemålet sker direkte fra gågaden (Vestergade), via flot trappeopgang med elevator. Lejemålet har facade mod både Vestergade (gågade) samt Preislers Plads og der er således god mulighed for at få
en synlig facade.

Der er mulighed for at leje fra 297 kvm til 552 kvm, fordelt på hhv. 2. sal 297 kvm og 3. sal 255 kvm. Lejemålene kan lejes samlet som hver for sig. Adgang mellem de forskellige etager kan enten ske via
elevator eller trappeopgang.

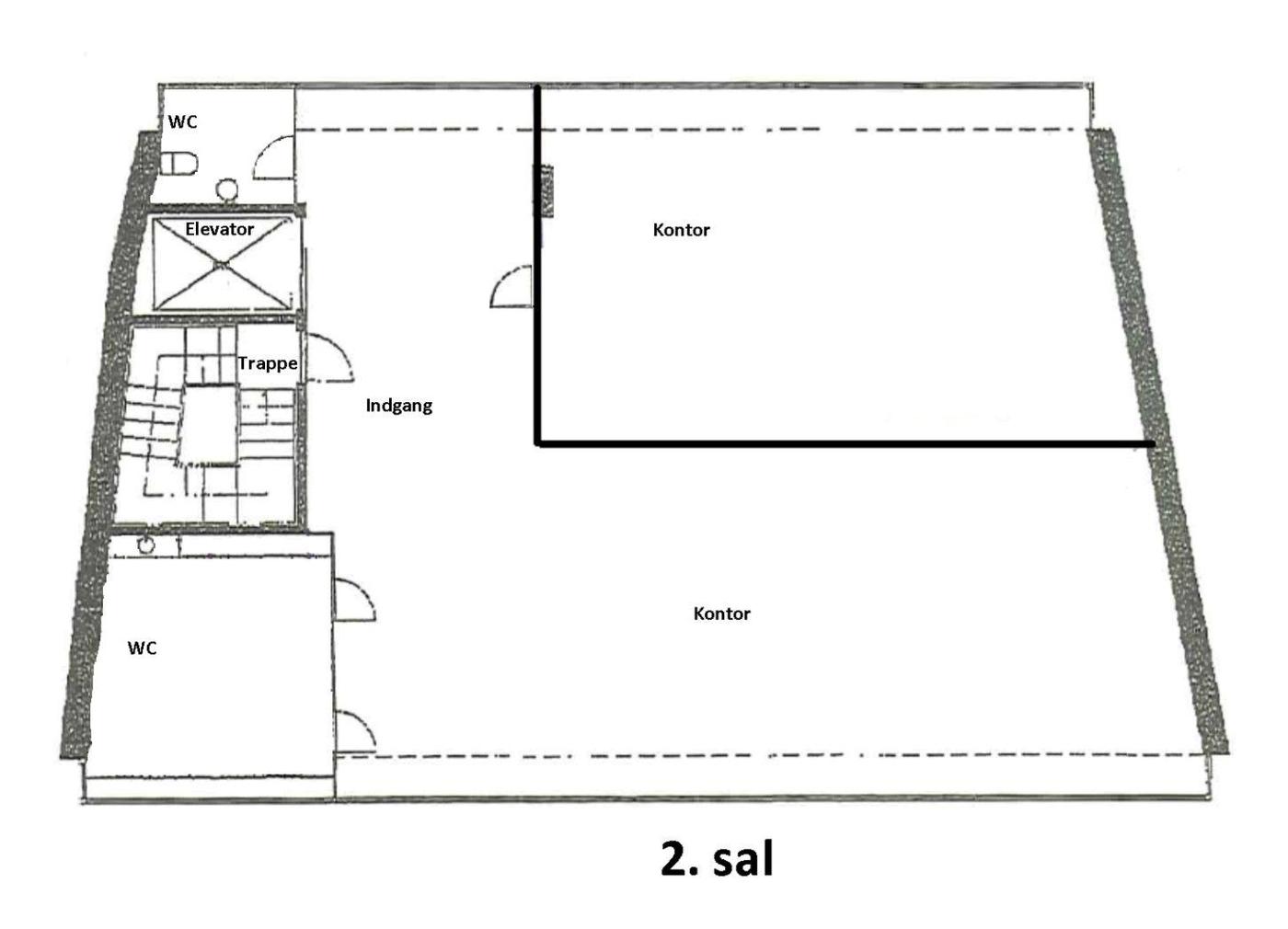
2. sal er indrettet med to store lokaler, der evt. kan inddeles i mindre kontor-/kliniklokaler. Herudover forefindes flotte toiletter.

3. sal fremstår p.t. som ét stort lokale og har en flot udsigt over Viborg fra de store vinduer. Her er mulighed for lejer selv at indrette lokalet er eget ønske og behov.

Alle lokaler har et rigtigt godt lysindfald og godt udsyn over Viborg fra de mange gulv til loft vinduer. Vinduerne er beklædt med mørk film, der både afviser varme samt indkig i lokalerne.

Nabo til ejendommen er Preislers Plads, der er en stor offentlig parkeringsplads og her er mulighed for parkering for både personale og kunder.

Ring og hør nærmere om de mange muligheder i ejendommen.

Læs mere

Vil du vide mere?

Morten Lundhøj

mol@nordicals.dk

+45 8915 3301

Toldboden 1, 6. sal , 8800 Viborg

+4570203911

8800@nordicals.dk

Besøg vores mæglerside

Lignende ejendomme

Til top