Brødregade 17
8900 Randers C

Sagsnr. 5085R

Ejendomstype

Etageareal

Grund

Energiklasse

1.135 m²

441 m²

D

Kontantpris

Købspris pr. m²

Årlig driftsudgift

Årlig driftsudgift pr. m²

5.700.000 kr.

5.022 kr.

82.404 kr.

73 kr.

Markant og meget synlig byejendom i midtbyen i Randers C

Velegnet til detailhandel som en eller to butikker i stueetagen, restauration/cafe i et eller to plan, eller ombygning til beboelse i etagerne. God logistik i ejendommen.

Ejendommen har kundeindgang både til Brødregade og til Dytmærsken.

Ejendommen strækker sig fra gågaden Brødregade til den åbne plads i Dytmærsken, og i nærområdet findes fotoforretning, Eventyrsport, Intersport, smykkeforretning, vinhandel, Normal, Matas, Søstrene Grene, Føtex, lægehus og busterminal.

Ejendommen anvendes af Axel W. Nielsen, der driver isenkram-forretning i hele ejendommen, og som har besluttet at fraflytte ejendommen.

Overtagelse af ejendommen kan således ske snarest muligt eller efter nærmere aftale.

Ejendommen er anvendelig til opdeling i mindre enheder/lejemål, og ændret anvendelse af 1. salen og tagetagen til kontor, klinik og beboelse.

Ejendommen er opført i betonkonstruktion i to etager med fuldt udnyttet tagetage og fuld kælder. Ydermure mod gaden beklædt med klinker og ydermure mod gården i gule teglsten. Der er saddeltag med nyere røde teglsten.
Butiksvinduer i stueetagen er i alurammer monteret med termoruder, og vinduer på 1. sal i træ monteret med termoruder på lette brøstninger mod gaden og i murhuller mod gården.
Der er velux-vinduer i taget mod ejendommens gård.

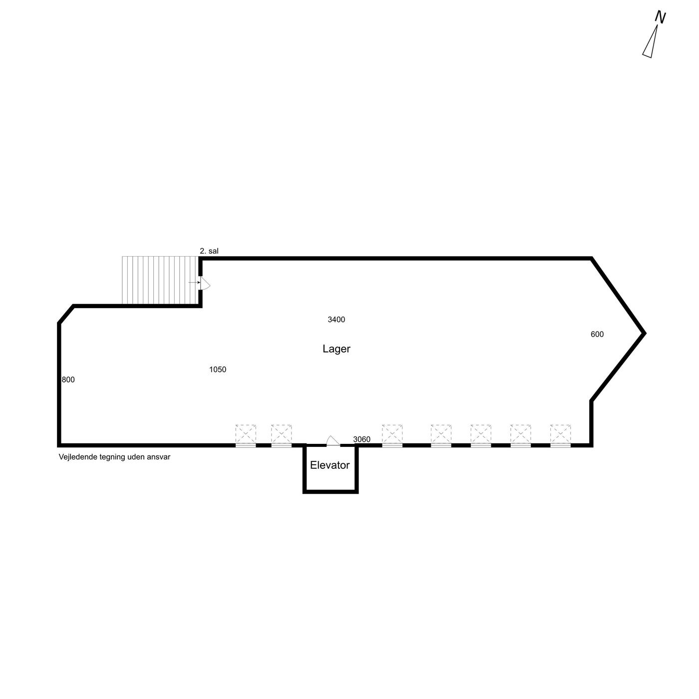
Ejendommen er p.t. indrettet med butik i hele stuetagen (ca. 300 kvm) med indgang mod såvel Brødregade som Dytmærsken. Der er åbent trappeløb til 1. salen, der er indrettet del med butik og dels med kontor og velfærdsrum (tidligere beboelse). Fra 1. salen er der åbent trappeløb til tagetagen, der p.t. er et stort lagerrum. Mod Dytmærsken er der trappeløb fra gaden til 1. salen. Fra stueetagen er der dels åbent trappeløb og dels lukket trappeløb til kælderen, hvor der er lager, og teknikrum. Der er tillige udvendig trappe til kælderen fra ejendommens gårdareal.

Der er udvendigt elevatortårn med vareelevator fra terræn til tagetagen. Den har ikke været anvendt i en årrække.

Adgang via fælles gård med de omkringliggende ejendomme. Gården er indhegnet.

Opvarmning: fjernvarme.
Gitter: rullegitre i butiksvinduer.
Ventilation/køl: nej.
Alarm: ja.
Belysning: loftbelysning og spots.
Parkering: der tilhører tre parkeringspladser i ejendommens gård.
Moms: ejendommen er p.t. frivillig momsregistreret. Der er ingen momsreguleringsforpligtelse.
Ejendommen overtages ryddeliggjort.

Ejendommen kan tillige lejes.

Læs mere

Vil du vide mere?

Jesper Bruun Fangel

jef@nordicals.dk

+45 8915 3300

Østervold 42, 2. sal, 8900 Randers C

+4570203911

8900@nordicals.dk

Besøg vores mæglerside

Lignende ejendomme

Til top