Brødregade 2, 1. th.
8900 Randers C

Sagsnr. 7276R

Ejendomstype

Etageareal

Energiklasse

143 m²

E

Årlig leje

Leje pr. m²

Depositum

114.400 kr.

800 kr.

28.600 kr.

Kontorlejemål på 1. sal i pæn og velbeliggende byejendom med butikker, kontorlejemål og boliger

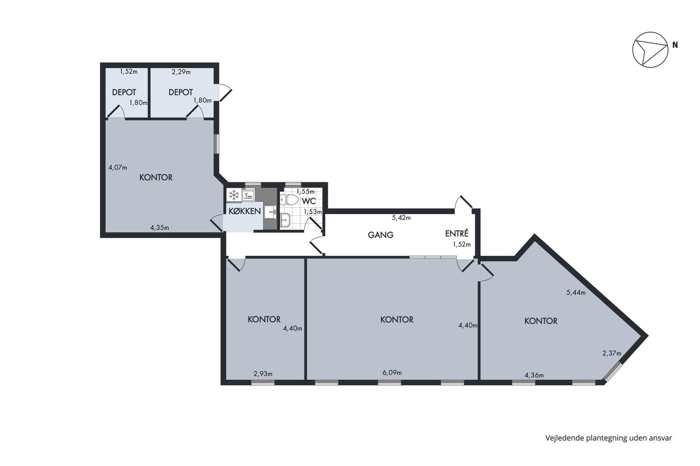
Indretning: Tre gode kontorrum, fordelingsgang, toilet, åbent tekøkken, og disponibelt rum med udgang til lukket gårdareal.

Opvarmning: Fjernvarme via radiatorer.

Vinduer: Alu/træ med termoruder.

Belysning: Fastmonterede armaturer.

Moms: Nej, lejemålet er ikke momsregistreret.

Inventar: Intet, bortset fra hårde hvidevarer og skabe i disponiblerum.

Lejemålet stand ved overtagelse: Lejemålet er nymalet og med nye gulvtæpper i hele lejemålet.

Området:
Randers har en attraktiv beliggenhed, god infrastruktur med nærhed til motorvejsnettet, stort vækstpotentiale, konkurrencedygtige priser og et godt udbud af kultur og byliv. Argumenterne for at investere i Randers er mange, og byen gennemgår i disse år også en kæmpe forvandling.

Randers Kommune har gang i et omfattende byudviklingsprojekt, der går under navnet Byen til Vandet. Projektet har blandt andet til formål at fremtidssikre byen mod både trafiktrængsel og klimaudfordringer. Randers' nuværende havn skal flyttes syd for Randers Fjord til et nyt og forbedret havneområde. Det nuværende havneområde omdannes i stedet til et ca. 59 ha. stort, grønt byområde, som forbinder byen til vandet. Projektet er det største udviklingsprojekt i Randers' historie.

Erhvervslivet i Randers er stærkt og mangfoldigt. Der er flere store, veletablerede virksomheder i og omkring byen. Blandt dem er slagterivirksomheden Danish Crown, der er blandt landets største virksomheder, og den har sit hovedkontor placeret i Randers.

Randers' centrale beliggenhed i Østjylland gør, at byen er godt forbundet med resten af Jylland, hvor der via det jyske motorvejsnet er kort afstand til Aarhus, Aalborg og Midtjylland. Randers Kommune har 40.113 arbejdspladser, og med byens gode geografiske placering er der mange tusinde arbejdspladser i rækkevidde inden for en times kørsel.

Indbyggere by/kommune: 62.802/99.869 (2022)

Læs mere

Vil du vide mere?

Christian Wang Rosenkilde

chw@nordicals.dk

+45 8915 3302

Østervold 42, 2. sal, 8900 Randers C

+4570203911

8900@nordicals.dk

Besøg vores mæglerside

Lignende ejendomme

Til top