Dytmærsken 9, st.
8900 Randers C

Sagsnr. 7161R-1

Ejendomstype

Etageareal

Energiklasse

694 m²

C

Stor regulær butik i midtbyen

I Randers Midtpunkt, der er en stor velbeliggende byejendom i hjertet af Randers midtby, udlejes restaurations-/butiks-/kontorlejemål der senest har været anvendt af Jyske Bank.

Lejemålet er beliggende særdeles synligt på hjørnet af Dytmærsken og Østervold, der er et meget befærdet sted i Randers midtby.
I nærområdet findes bl.a. Føtex, Normal, spisesteder og diverse butikker.

Der er flot udsigt til Østervold og vandbassinet fra Dytmærsken og ned mod havnen.

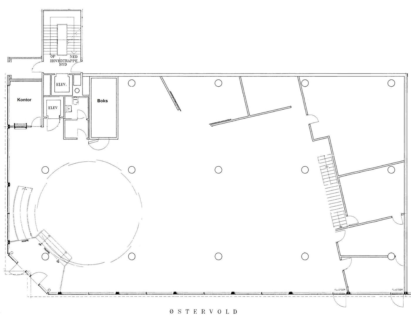
Lejemålet består af ca. 694 m² butik i stueplan. Derudover er det muligt at leje ca. 523 m² kontor på 1. sal. (Se sagsnr. 7161R)
Lejemålet er fleksibelt at indrette, da ingen vægge er bærende, idet ejendommen er søjlebåren.

Butiksarealet har gennemgående vinduesbånd i hele lejemålets facade og med indgangsparti i hjørnet.

Lejemålet har ventilationsanlæg.

Lejemålet overtages som det er og forefindes, eller efter nærmere aftale.

Der kan efter nærmere aftale lejes parkeringspladser i ejendommens kælder, hvorfra der er elevator til gadeniveau og etagerne.
Kundeparkering kan ske i ejendommens kælder, i Dytmærsken eller i P-Huset i Fischersgade få meter fra lejemålet.

Læs mere

Denne ejendom er udlejet

Vil du vide mere?

Christian Wang Rosenkilde

chw@nordicals.dk

+45 8915 3302

Østervold 42, 2. sal, 8900 Randers C

+4570203911

8900@nordicals.dk

Besøg vores mæglerside

Lignende ejendomme

Til top