Middelgade 5, Brødregade 30
8900 Randers C

Sagsnr. 5377R

Ejendomstype

Etageareal

Grund

Energiklasse

1.483 m²

721 m²

E

Kontantpris

Købspris pr. m²

Årlig driftsudgift

Årlig driftsudgift pr. m²

3.000.000 kr.

2.023 kr.

111.662 kr.

75 kr.

Byejendom med erhvervsudlejning og boligprojekt sælges til udvikling og udlejning

Den velkendte ejendom på hjørnet af Middelgade og Tårngade, der engang husede EHM og som pt. er udlejet til The Genbrugsbutik i stueetagen, ønskes solgt til en investor, der vil udvikle ejendommen.

Ejendommen består af to bygninger, der er sammenhængende i stueplan som følge af overdækning af et tidligere gårdareal. Overdækningen skaber samtidig et stort næsten ugeneret tagareal.

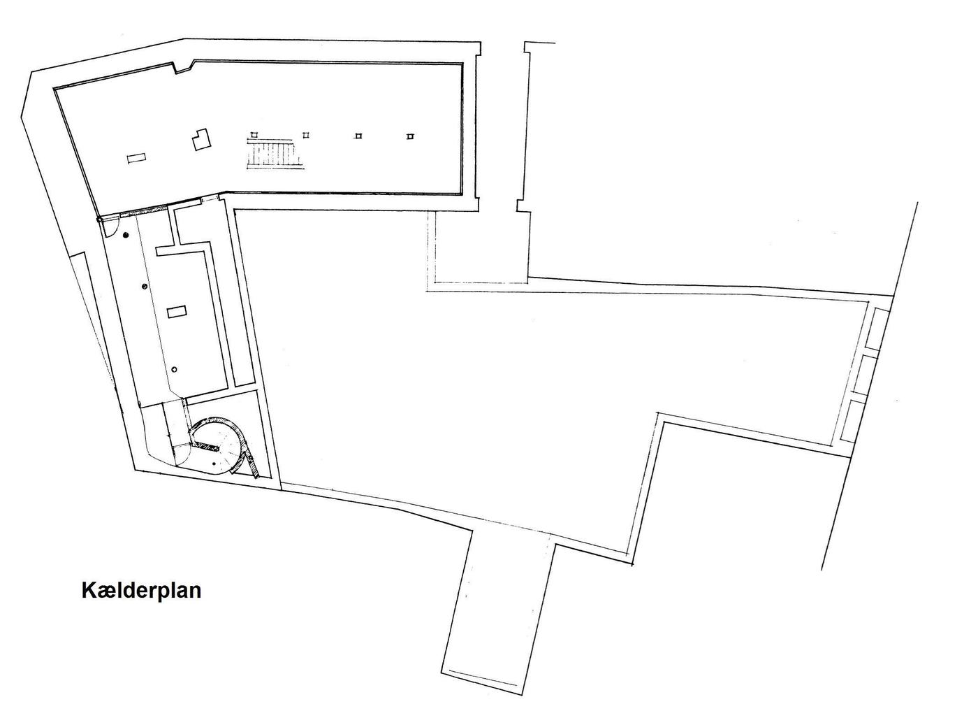
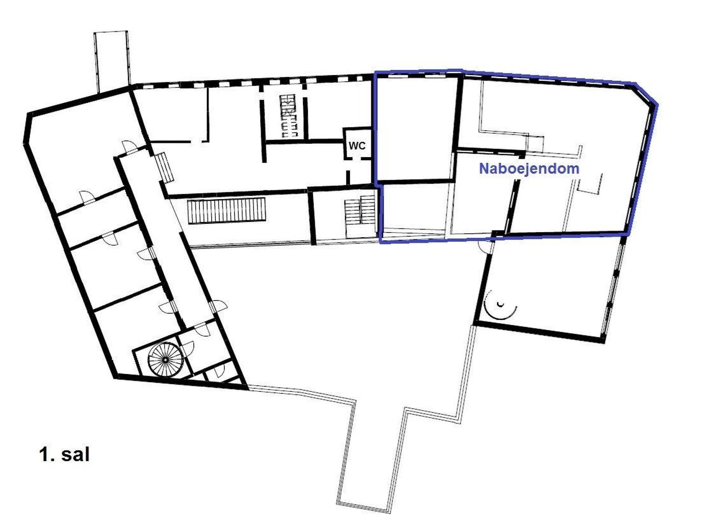
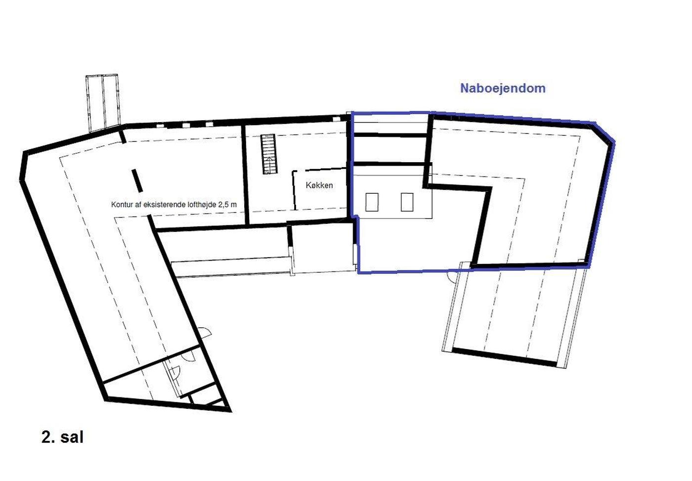
Den største bygning er opført på hjørnet af Middelgade og Tårngade, og opført i to plan og med fuld udnyttet tagetage samt fuld kælder. Bygningen er indrettet med butiksarealer i stueetagen med full-face udstillingsvinduer og tre indgangspartier. I stueetagen findes personalerum med køkken, samt to toiletter. Der er åben intern trappe til 1. salen, der senest har været anvendt til kontorer, møderum og lagerrum. Fra 1.salen er der trappe til tagetagen, der har været anvendt til lager.
Der er adgang til bygningen via lukket port i Tårngade, og her findes åbent ståltrappeløb til etagerne.

Den mindste bygning har adressen Brødregade 30, og er opført i to plan, og med saddeltage belagt med røde vingeteglsten. Stueetagen er indrettet butiksareal med full-face udstillingsvinduer med rullegitre samt indgangsparti. Butiksarealet er fuldt integreret med butiksarealet i Middelgade, dog med to trin op. 1.salen har senest været anvendt til lager. Spindeltrappe mellem stueetagen og 1. salen er nedtaget, men kan let genmonteres.

Lejer i stueetagen har brugsret til ejendommens 1. og 2. sal. Brugsretten kan brydes i forbindelse med boligprojektet, eller såfremt ejer skal benytte lokalerne til andet formål.

1.salen og tagetagen:
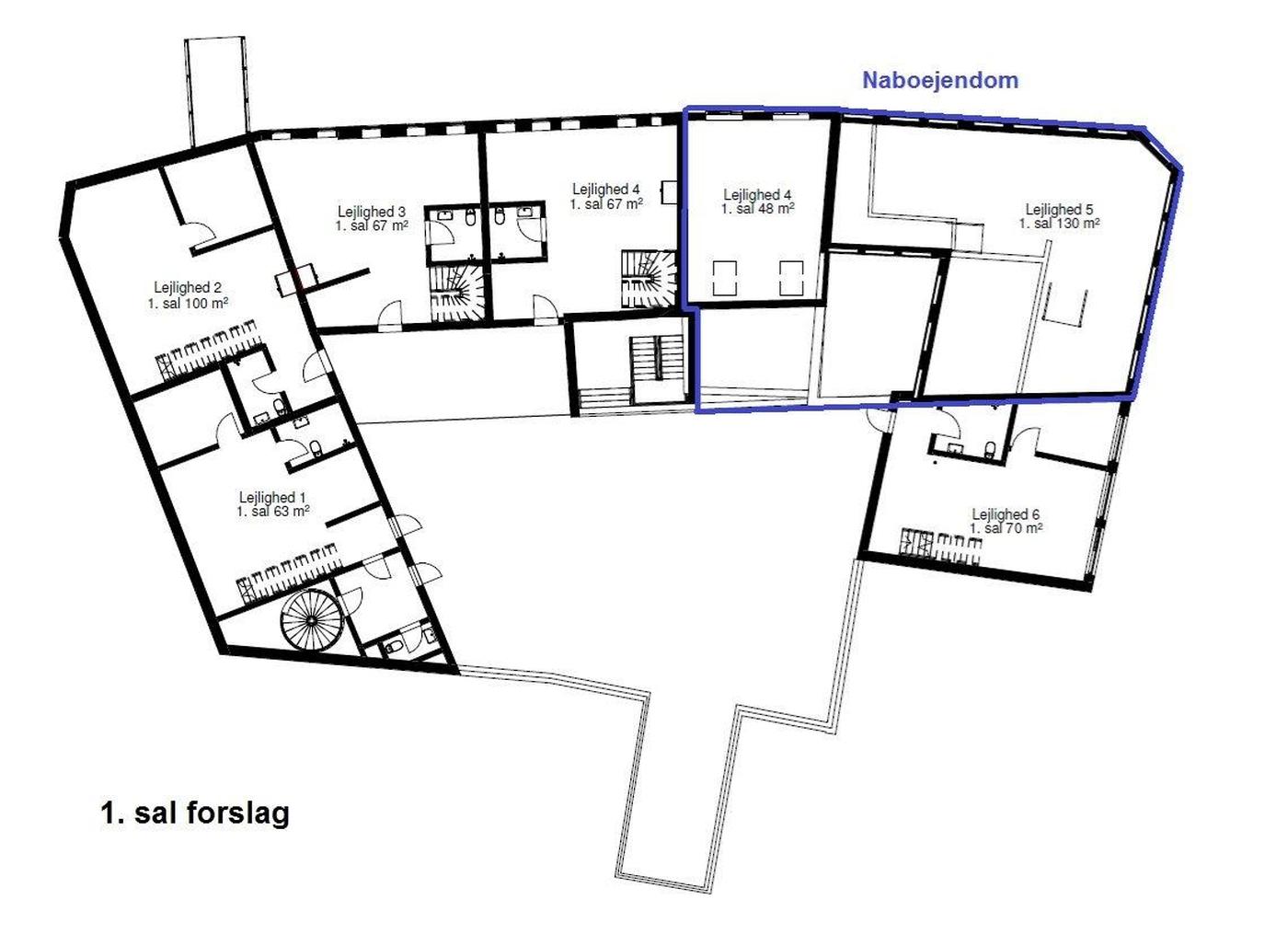
Der er for år tilbage lavet skitseforslag til ombygning og udnyttelse af 1.salen og tagetagen til beboelseslejligheder i to plan, og hvor tanken er, at adgangen til lejlighederne sker via fælles trappe fra gaden eller porten og til det store tagareal, hvorfra man går ind i boligerne. Tagarealet, der er næsten lukket og dermed ugeneret vil også skulle anvendes til fællesareal for beboerne.
Det bemærkes, at skitseforslaget tillige omfatter naboejendommen Brødregade 18, da denne ligger mellem den udbudte ejendoms to bygningskroppe.
Skitseforslaget er udarbejdet af Randers Arkitekten. Interesserede er velkomne til at kontakte arkitekt Brian Andersen herom på mail: ba@randersarkitekten.dk eller på mobil 2060 7190.

En spændende midtbyejendom med mange muligheder, der bedst synliggøres ved fremvisning af ejendommen.

Ejendommens stueetage er udlejet til følgende trappeleje, med binding fra lejer til d. 30.09.2027:
Årlig leje 01.04.2024-31.03.2025: kr. 60.000
Årlig leje 01.04.2025-31.03.2026: kr. 120.000
Pr. 01.04.2026 betales en årlig leje på kr. 240.000

Læs mere

Vil du vide mere?

Christian Wang Rosenkilde

chw@nordicals.dk

+45 8915 3302

Østervold 42, 2. sal, 8900 Randers C

+4570203911

8900@nordicals.dk

Besøg vores mæglerside

Lignende ejendomme

Til top