Rosengade 4, st.
8900 Randers C

Sagsnr. 7348R

Ejendomstype

Etageareal

Energiklasse

139 m²

C

Årlig leje

Leje pr. m²

Depositum

Årlig driftsudgift

Årlig driftsudgift pr. m²

84.000 kr.

604 kr.

21.000 kr.

12.000 kr.

86 kr.

Regulært butikslejemål velbeliggende i Randers C med kort afstand til Rådhustorvet

Lejemålet har senest været benyttet til tatovør, og han mange anvendelsesmuligheder.

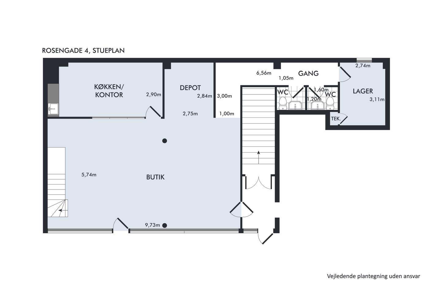
Indretning: Lejemålet er indrettet med et regulært butiksareal hvorfra der er adgang til personalerum med tekøkken. Fra butikken er der desuden adgang til fordelingsgang med to toiletter og lagerrum.
Ejendommens 1. sal kan eventuelt lejes i forbindelse med stueetagen, se sagsnr. 7349R.

Vinduer: Fulde facadevinduer mod Rosengade.

Toilet: 2 toiletter.

Køkken: Tekøkken.

Opvarmning: Fjernvarme.

Belysning: Loftsarmaturer.

Moms: Ja, lejemålet er momsregistreret.

Naboer: Diverse butikker, cafeer, kontor og boliger.

Lejemålet stand ved overtagelse: Udlejer fjerne trappe mellem st. og 1. Lejemålet overtages derudover som det er og forefindes.

Læs mere

Vil du vide mere?

Christian Wang Rosenkilde

chw@nordicals.dk

+45 8915 3302

Østervold 42, 2. sal, 8900 Randers C

+4570203911

8900@nordicals.dk

Besøg vores mæglerside

Lignende ejendomme

Til top