Lucernevej 83
8920 Randers NV

Sagsnr. 5299R

Ejendomstype

Etageareal

Grund

Energiklasse

2.050 m²

5.579 m²

C

Kontantpris

Købspris pr. m²

Afkast

Årlig lejeindtægt

Årlig lejeindtægt pr. m²

Årlig driftsudgift

Årlig driftsudgift pr. m²

19.750.000 kr.

9.634 kr.

7,99 %

1.735.766 kr.

847 kr.

208.998 kr.

102 kr.

Investeringsejendom med solide lejere

Lucernevej 83 er en fuldt udlejet og attraktiv investeringsejendom beliggende med synlig facade mod Mariagervej - en af Randers' mest trafikerede indfaldsveje. Ejendommen indgår som en del af et velfungerende bydelscenter i den nordlige del af byen, hvor en række stærke detailkoncepter som Jysk, Jem & Fix, thansen, Skousen, Rema 1000 og et stort Føtex-marked bidrager til et højt og stabilt kunde- og trafikflow i området.

Udlejning
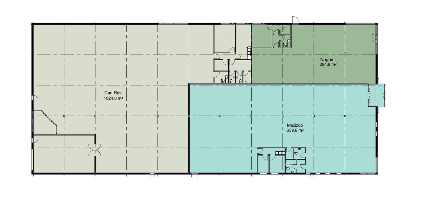
Ejendommen er udlejet til solide og velkonsoliderede lejere:

Carl Ras A/S - CVR-nr. 70587114 EK kr. 320 mio. areal: 1.026 m² + varegård
- Uopsigelighed fra lejer til 01.03.2030
Maxi Zoo Denmark A/S - CVR-nr. 10117224 EK kr. 498 mio., areal: 640 m²
- Uopsigelighed fra lejer til 31.08.2030
Nagomi ApS (sushi-restaurant), areal: 285 m²
- Uopsigelighed fra lejer til 31.05.2029
Lejerne repræsenterer en samlet soliditet med betydelige egenkapitaler.

Ejendommens opbygning
Konstruktion: Ejendommen er opført i ét plan med ydervægge i mursten, som er beklædt med profilplader.
Tag: Fladt built-up tag belagt med tagpap.
Udenomsarealer: Ejendommen tilbyder et stort og lettilgængeligt tilkørsels- og parkeringsområde med ca. 40 parkeringspladser, alle befæstet med betonsten. Derudover findes en indhegnet varegård med tilhørende mindre koldlager.
Beliggenhed
Med sin placering midt i et veletableret handelsområde og direkte eksponering mod Mariagervej, nyder ejendommen maksimal synlighed og tilgængelighed. Området fungerer som et naturligt shopping- og servicemæssigt knudepunkt for både lokalområdet og det nordlige Randers.

Læs mere

Vil du vide mere?

Morten Lundhøj

mol@nordicals.dk

+45 8915 3301

Østervold 42, 2. sal, 8900 Randers C

+4570203911

8900@nordicals.dk

Besøg vores mæglerside

Lignende ejendomme

Til top