Hadsundvej 103
8930 Randers NØ

Sagsnr. 5739R-1

Ejendomstype

Etageareal

Grund

Energiklasse

612 m²

1.943 m²

C

Kontantpris

Købspris pr. m²

Årlig driftsudgift

Årlig driftsudgift pr. m²

5.000.000 kr.

8.170 kr.

50.496 kr.

83 kr.

Boligudlejningsprojekt etagebyggeri

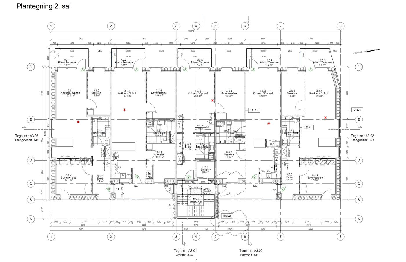
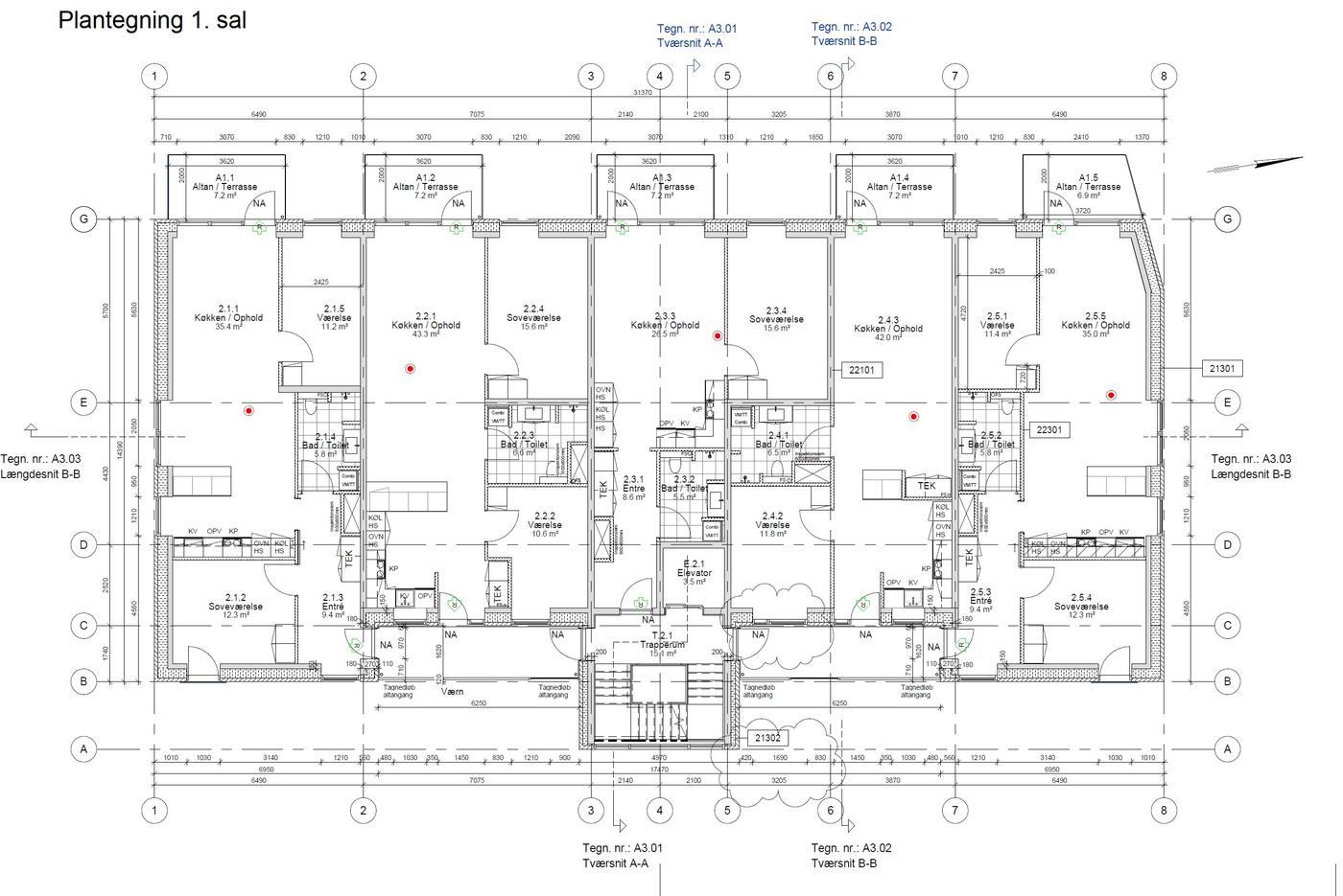
Projektejendom hvor der i 2023 har været udstedt byggetilladelse, til opførelse af 3-etagers bygning med 15 beboelseslejligheder, med et samlet boligareal på 1.360 m².

Projektets arkitekt Brian Andersen, Randers Arkitekten har kaldt ejendommen "Glarbjerget", der betegner det højeste punkt i byen. Projektet kræver ikke lokalplan og der er i 2023 godkendt byggetilladelse fra Randers Kommune.

Ejendommen har senest været anvendt til dagligvarebutik, der skal fjernes i forbindelse med gennemførelsen af boligprojektet.

Den nye bygning opføres tilbagetrukket fra Hadsundvej, og indeholder på hver etage fem beboelseslejligheder mellem 69 m2 og 91 m2 i form af 2- og 3-værelseslejligheder, som er efterspurgte størrelser. Adgang sker via trappetårn og elevator til svalegange mod øst og terrasser og altaner mod vest. På terræn foran ejendommen anlægges parkeringspladser og depot-bygning.

Ejendommen er beliggende i et udpræget boligområde og med naboer i form af rækkehuse i ejerform og etagebyggeri ejet af Randers Boligforening. Der er kort afstand til dagligvarebutik og andre servicebutikker.

Der er nem adgang til bymidten, også med offentlig transport, og nem adgang til Ringboulevarden og motorvejen.

Ejendommen kan overtages straks eller efter nærmere aftale, og ejendommen overtages af køber i enhver henseende som den er og forefindes.

Den perfekte ejendom til byggefirmaer og investorer, der selv ønsker at opføre byggerier til udlejning.

Vi kan i relation til udlejningen af lejlighederne anbefale at etablere samarbejde med Nybolig Bjørn & Ankersen, der gennem en længere årrække løbende har boligejendomme til udlejning. Kontakt Christian Bjørn eller Lotte Nørrevang herom.

Læs mere

Vil du vide mere?

Christian Wang Rosenkilde

chw@nordicals.dk

+45 8915 3302

Østervold 42, 2. sal, 8900 Randers C

+4570203911

8900@nordicals.dk

Besøg vores mæglerside

Lignende ejendomme

Til top