Toldbodgade 81
8930 Randers NØ

Sagsnr. 7202R

Ejendomstype

Etageareal

676 m²

Højloftet lager-/produktionslejemål beliggende på Toldbodgade i Randers NØ

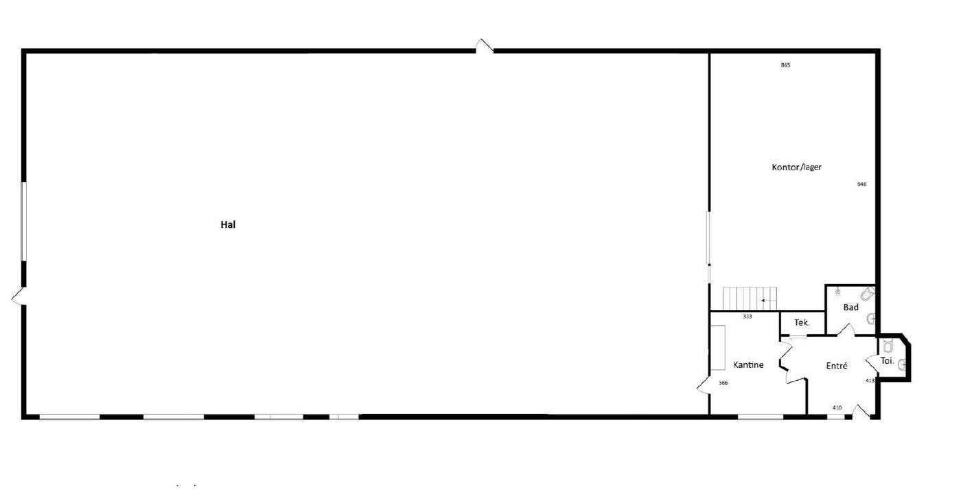
Indretning: Lejemålet er indrettet med velfærdsområde med 2 toiletter, hvoraf det ene har bad, og tekøkken/frokostrum. Hallen er pt. indrettet med rum til lager, showroom og kontorer. Alle rummene er lavet med letvægge, og kan tages ned såfremt man ønsker en regulær hal.
Lejemålet er oplagt at benytte til mindre produktion, lager eller lignende formål.

Port: Adgang til hallen via port, som er ca. 5 meter bred og 6 meter høj.

Loftshøjde: I hallen er der ca. 4 meter ved facaderne og 7 meter i kip.

Opvarmning: Lejemålet opvarmes af 3 varmepumper.

Belysning: Loftarmaturer.

Lejemålet stand ved overtagelse: Lejemålet leveres efter aftale med lejer.

Læs mere

Denne ejendom er udlejet

Vil du vide mere?

Christian Wang Rosenkilde

chw@nordicals.dk

+45 8915 3302

Østervold 42, 2. sal, 8900 Randers C

+4570203911

8900@nordicals.dk

Besøg vores mæglerside

Lignende ejendomme

Til top