Engelsholmvej 33
8940 Randers SV

Sagsnr. 7120R

Ejendomstype

Etageareal

Grund

2.500 m²

711 m²

Årlig leje

Leje pr. m²

Depositum

1.625.000 kr.

650 kr.

406.250 kr.

Lagerejendom kan opførelse efter aftale

Der kan opføres en lagerejendom til lager/let produktion beliggende i et udbygget erhvervsområde i Randers Syd tæt ved motorvej E45/tilslutning Sdr. Borup og Århusvej. Billedserien er af naboejendommen, og ejendommen som kan opføres vil som udgangspunkt komme til at ligne denne.

Konstruktion/Tag: Ejendommen opføres i en søjle-dragekonstruktion med tagpap.

Vinduer: Ovenlysvinduer med brandalamering.

Porte: 2 stk. elektriske aluhejseporte (bredde 3,6 m x højde 4,2 m).

Loftshøjde: Frihøjde under spær 5,7m og frihøjde under loft 6,2m

Gulve: Beton.

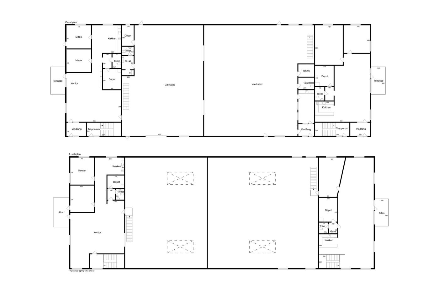
Forslag til indretning: Ca. 1.850 m² let lager/produktion og 550 m² kontor/velfærdslokaler.

Opvarmning: Gulvvarme.

Strøm: 25 ampere, eller efter nærmere aftale.

Udenomsarealet består af stenbefæstet parkeringsareal foran ejendommen. Der er let tilgængelige muligheder for af- og pålæsning af lastbiler mv.

Overtagelse: Lejemålet opføres efter nærmere aftale mellem lejer og udlejer.

Læs mere

Vil du vide mere?

Christian Wang Rosenkilde

chw@nordicals.dk

+45 8915 3302

Østervold 42, 2. sal, 8900 Randers C

+4570203911

8900@nordicals.dk

Besøg vores mæglerside

Lignende ejendomme

Til top