Clausholmvej 23, L4
8960 Randers SØ

Sagsnr. 7335R

Ejendomstype

Etageareal

Grund

Energiklasse

9.519 m²

46.851 m²

C

Årlig leje

Leje pr. m²

Depositum

2.152.875 kr.

226 kr.

538.219 kr.

Lager- og produktionslejemål nær motorvej E45

Lejemålet er beliggende i en større erhvervsejendom i et stort veletableret erhvervsområde i bydelen Kristrup i Randers syd, hvorfra der er nem adgang og kort afstand til såvel motorvej E45 som Randers centrum.

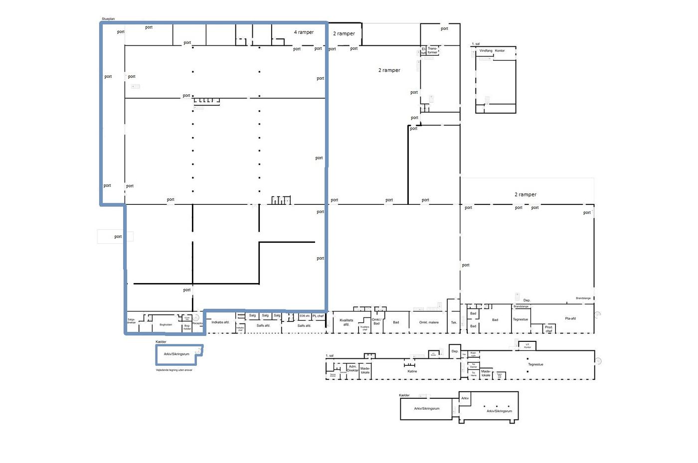
Lejemålet indeholder store, regulære lager-/produktionsrum, kontor/administration med kontorer og mødelokaler i forskellige størrelser, samt overdækket og integreret areal med porte til opbevaring.
Kontoret kan udvides med op til 500 m² efter nærmere aftale.

Lejemålet anvendes p.t. til lager og omladning af varer.

Loftshøjde: Under spær varierer fra 4,50 - 5,25 meter.

Gulve: Lagt i beton.

Ramper/porte: Der er ny inddækket rampe med fire portsluser, en selvstændig rampe med portsluse, samt flere porte i terræn. Tillige flere indvendige porte.

Strøm: 2.500 Ampere.

Udenomsarealer: Meget stort og indhegnet asfalteret grundareal udlagt til tilkørsel, manøvrering, oplag og parkering. Der er direkte tilkørsel til lejemålets port fra Clausholmvej.

Stand ved overtagelse: Lejemålet overtages som det er og forefindes.
Kontor kan istandsættes efter nærmere aftale, herunder opsætning af tekøkken.

Læs mere

Vil du vide mere?

Christian Wang Rosenkilde

chw@nordicals.dk

+45 8915 3302

Østervold 42, 2. sal, 8900 Randers C

+4570203911

8900@nordicals.dk

Besøg vores mæglerside

Lignende ejendomme

Til top