Discoveryvej 1, -17, 2-22
8960 Randers SØ

Sagsnr. 5518R

Ejendomstype

Etageareal

Grund

Energiklasse

1.985 m²

8.837 m²

A2015

Kontantpris

Købspris pr. m²

Afkast

Årlig lejeindtægt

Årlig lejeindtægt pr. m²

Årlig driftsudgift

Årlig driftsudgift pr. m²

42.000.000 kr.

21.159 kr.

5,06 %

2.469.900 kr.

1.244 kr.

366.613 kr.

185 kr.

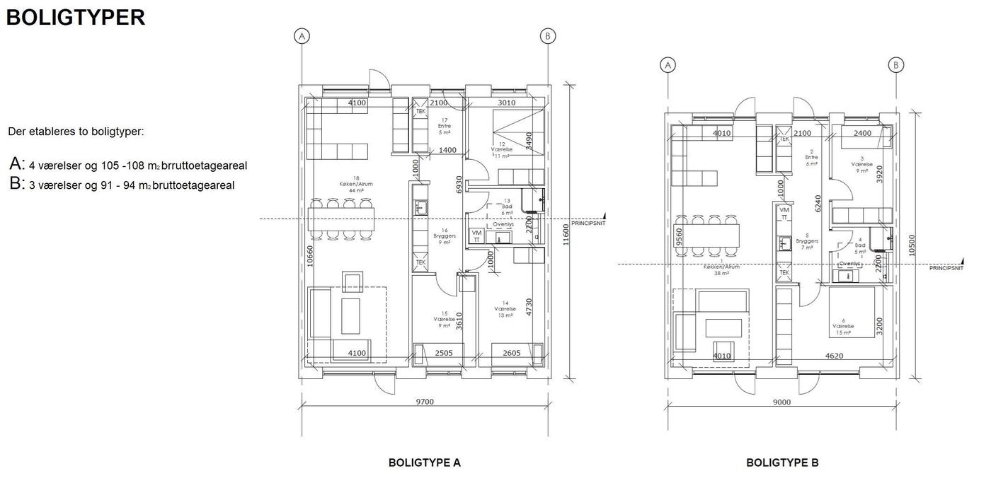
Tyve nyopførte rækkehuse i attraktivt kvarter i Randers Syd

En solid køber kan på basis af en 4,0 % obligation forvente en låneudmåling på ca. 74 % af udbudsprisen.

Ejendommen er særdeles velbeliggende i et nyt og attraktivt boligområde med rækkehuse og parcelhuse.

Nabo er en ny udstykning på Filippavej med 21 grunde til parcelhuse udbudt af Randers Kommune, og hvor der i marts 2025 er solgt 20 grunde, og således kun resterer en grund.

Genboer er nye rækkehuse og nye parcelhuse.

Området har nem forbindelse til såvel E45 som centerområde med Randers Storcenter, BILKA, boksbutikker, gymnasium, handelsskole m.v.

Der er etableret stisystem og busstoppested m.v. Endvidere har Randers kommune opført en daginstitution i området.

Bebyggelsen er opført i to længer á henholdsvis 11 og 9 boligenheder, hver enhed med egen carport forberedt til el-ladestander, samt skur.

Ejendommen er opført i gode og vedligeholdelsesvenlige materialer.

Hvert rækkehus har egen terrasse på begge sider af huset, samt egen lille have indhegnede med hække.

Der henvises til indretningsplaner, situationsplaner, luftfotos m.v. i salgsopstillingen.

Ejendommen overdrages i selskabsform ved salg af samtlige anparter i det ejende selskab, der er stiftet til dette projekt.

Ejendommen leveres med AB92 garantier for fejl og mangler efter hhv. 1 år og 5 år.

Evt. yderligere materiale kan rekvireres hos Nordicals erhvervsmæglere i Randers.

Læs mere

Vil du vide mere?

Jesper Bruun Fangel

jef@nordicals.dk

+45 8915 3300

Østervold 42, 2. sal, 8900 Randers C

+4570203911

8900@nordicals.dk

Besøg vores mæglerside

Lignende ejendomme

Til top