Eriksvej 18
8960 Randers SØ

Sagsnr. 5861R

Ejendomstype

Etageareal

Grund

Energiklasse

4.461 m²

18.677 m²

B

Kontantpris

Købspris pr. m²

Årlig driftsudgift

Årlig driftsudgift pr. m²

11.250.000 kr.

2.522 kr.

257.399 kr.

58 kr.

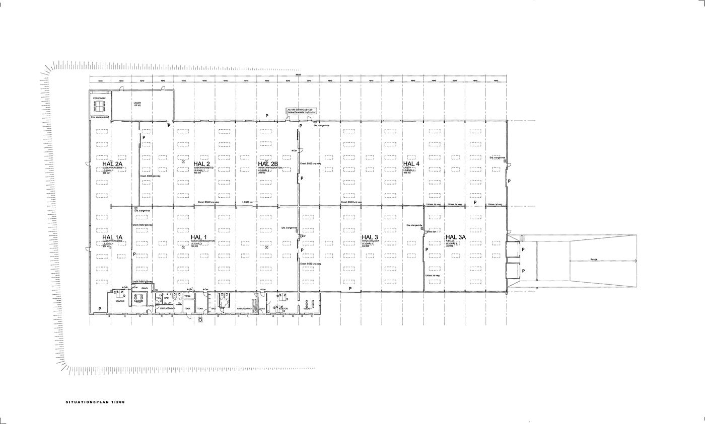
Lagerejendom med stor grund

Regulær lagerejendom med to læsseramper samt tre store aluhejseporte og stort grundareal.

Konstruktion: hallerne er opført ensartet i flere tempi og fuldt integrerede over stålspær i frit spænd og med frihøjde ved facade på ca. 4 m. og i kip på ca. 6,5 m.

Tag: saddeltage belagt med bølgeeternitplader og ovenlysplader.

Vinduer: Vinduer og døre i træ monteret med termoruder.

Porte: der er rampe med to slusehuse og elektriske aluhejseporte (B: 3,0 x H: 3,0), samt i terræn tre store elektriske aluhejseporte (B: 4,0-4,5 x H: 4,0-4,3) og en mindre elektrisk aluhejseport (B: 3,0 x H: 2,5). Endvidere er der indvendigt en stor aluhejseporte (B: 5,9 x H: 4,2), en brandskydeport (B: 4,0 x H: 4,0) og en række mindre brandskydeporte.

Gulve: gulve er lagt i beton. I lagerslusen er der befæstet med sf-sten.

Indretning: Bygningen er p.t. indrettet med fire halafsnit parvis i forlængelse af hinanden, en lagersluse ved ramperne og et et fælles manøvreareal i bunden af begge halafsnit. Der er flere lette vægge og flere tidligere gennembrydningerne på tværs, som muligvis kan fjernes. Fra den ene hal er der adgang til en mindre tilbygning med depot og opholdsareal med køkken.
Der er pænt kontor-og velfærdsafsnit med varierende kontorer og møderum, frokostrum og toilet/badfaciliteter. Endvidere teknikrum med varmeanlæg, vand og el-installationer.

Opvarmning: der er et stort centralvarmeanlæg med oliefyr og nedgravet olietank, der kan opvarme hele ejendommen (bortset fra en af lagerhallerne, hvor et gammel separat anlæg nu er ude af kraft) og et nyere mindre centralvarmeanlæg med oliefyr og indendørs olietank, der kan opvarme kontor- og velfærdsbygningen.

Særlige installationer: ingen

Strøm: 600 Amp

Ventilation/køl: der er ingen anlæg,

Alarm: Ja

Belysning: nedhængte lysarmaturer i hallerne, fastmonterede i kontor- og velfærdsrummene.

Grunden: Rundt om bygningen er der befæstet med stabilgrus til tilkørsel, manøvrering og parkering. En del af grunden ligger brak.

Læs mere

Vil du vide mere?

Jesper Bruun Fangel

jef@nordicals.dk

+45 8915 3300

Østervold 42, 2. sal, 8900 Randers C

+4570203911

8900@nordicals.dk

Besøg vores mæglerside

Lignende ejendomme

Til top