Haraldsvej 60, 2., lejemål 1
8960 Randers SØ

Sagsnr. 7277R-1

Ejendomstype

Etageareal

Energiklasse

749 m²

B

Årlig leje

Leje pr. m²

Depositum

Årlig driftsudgift

Årlig driftsudgift pr. m²

566.993 kr.

757 kr.

141.748 kr.

69.657 kr.

93 kr.

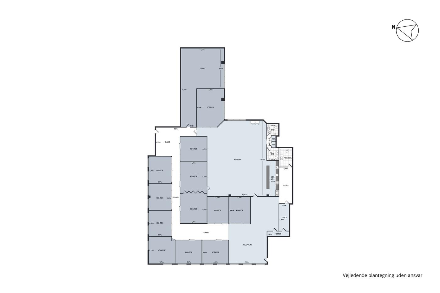
Moderne og præsentabelt kontorlejemål

Lejemålet er beliggende på 2. sal i opgang A, med facade mod Århusvej.

Lejemålet har senest huset en større national revisoinsvirksomhed.

Indretning: Lejemålet består af 11 kontorer med moderne glaspartier, hver med individuel lys- og klimastyring. Yderligere er der mellem to af kontorerne/møderum monteret skydevæg, således dette kan åbnes op.

Der er desuden en stor kantine med køkken, samt ét kundetoilet og yderligere to badeværelser. Kontoret har eget serverrum og mulighed for ekstra køling. Receptionen er velegnet til en lounge og der kundetoilet i forbindelse hermed.

Bagerst i lejemålet findes 72 m2 depot/lager, som eventuelt kan ombygges til kontor, hvis dette findes mere passende.

Toilet: 3 toiletter i lejemålet.

Køkken: Fuldt køkken i forbindelse med kantinen.

Opvarmning: Fjernvarme.

Ventilation/køl: Ja, med individuel styrring til de enkelte kontorer.

Alarm: Ja.

Belysning: LED-lamper med individuel lysstyring.

EDB-stik, telefoni, internet: Kabelbakker gennem alle kontorrum.

Parkering: Der er gode parkeringsmuligheder ved ejendommen for både kunder og personale. Der er yderligere mulighed for at leje en parkeringsplads, i ejendommens opvarmede parkeringskælder.

Moms: Ja, lejemålet er momsregistreret.

Stand ved overtagelse: Lejemålet overtages som det er og forefindes.

Eventuel udvidelse eller specialindretning af lejemålet efter nærmere aftale.

Læs mere

Vil du vide mere?

Christian Wang Rosenkilde

chw@nordicals.dk

+45 8915 3302

Østervold 42, 2. sal, 8900 Randers C

+4570203911

8900@nordicals.dk

Besøg vores mæglerside

Lignende ejendomme

Til top