Virkevangen 80, Assentoft
8960 Randers SØ

Sagsnr. 5857R

Ejendomstype

Etageareal

Grund

6.577 m²

23.129 m²

Kontantpris

Købspris pr. m²

Årlig driftsudgift

Årlig driftsudgift pr. m²

36.000.000 kr.

5.474 kr.

433.588 kr.

66 kr.

Lager- og kontorejendom ved Randers

Ejendommen:
Produktions- og lagerejendom opført i 2008 beliggende sydøst for Randers tæt ved E45 Sdr. Borup og direkte ved afkørsel/tilkørsel til motortrafikvej sydøst om Randers.

Ejendommen kan overtages 1. februar 2026 eller senere efter nærmere aftale.

Ejendommens arealer:

Grundareal: 23.129 m2 heraf vej 0 m2.

Nabogrund er ti salg hos Randers Kommune.

Bygningsarealer:

Produktion og lager på ca. 5.880 m2 fordelt på tre lige store og parallelle haller, der hver udgør en brandsektion

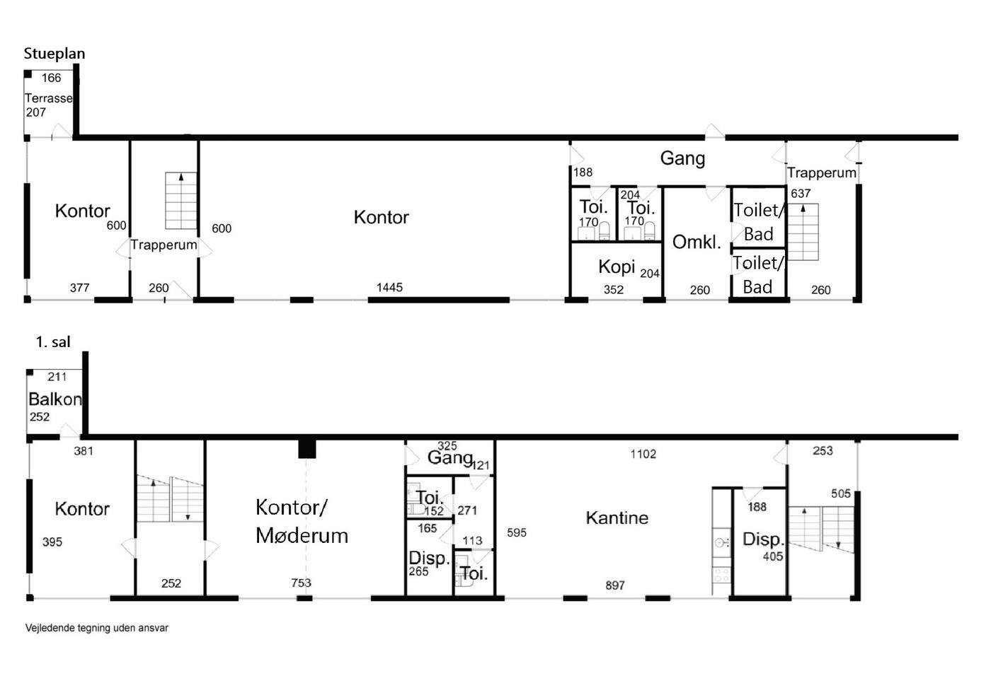
Kontor og velfærd i stueetagen på ca. 211 m2.

Kontor og velfærd på 1. salen på ca. 211 m2.

Overdækket areal på ca. 275 m2, hvor en mindre del anvendes til containerrum til udsugningen, der p.t. sker i tre føringer over taget.

Konstruktion: Opført som tre parallelle haller i i stålspær i frit spænd. Frihøjde 5,5-6,0 meter. Ydervægge i grå og sorte metalplader. Indervægge i plader og med støjhæmmende troltectplader på øverste halvdel af bagvæggene.

Tag: Built-up tag (fladt tag) belagt med tagpap. Ovenlyskupler med automatiske røglemme. Loftspladerne er med støjhæmmende effekt.

Vinduer: Vinduespartier i i hallerne er plast/alu med termoruder og i kontorene m.v. i træ/alu med termoruder.

Porte: Otte udvendige elektriske aluhejseporte i terræn (alle måler H: 4,5 x B: 4,5 meter). Mellem halafsnittene er der fire indvendige brandskydeporte (alle måler H: 4,0 x B: 4,5 meter)

Gulve-bæreevne: betongulve med overfladebehandling.

Indretning: Hallerne er uden indretning bortset fra et lille værkførerkontor og et toilet med forrum. Kontorbygningen er i stueplan indrettet med storkontor, et kontor/møderum, kopirum, to toiletter, omklædningsrum med to separate rum med toilet/HC-toilet og bruser. Kontorbygningen er på 1. salen indrettet med chefkontor med lille altan, kontor/møderum med foldevæg, to toiletter, vaskerum, stort frokostrum med tilhørende depotrum. I hver ende af kontorbygningen er der trappeløb til 1. salen. En præsentabel trappe ved hovedindgangen og en ståltrappe ved personaleindgangen.

Opvarmning: Naurgas via calorifereblæsere i hallerne og radiatorer i kontor m.v.

Særlige installationer: traverskraner, udsugningsanlæg, trykluftsføringer (kompressor medfølger ikke), pallereoler m.m. tilhører lejer. Der er ventilation i kontorerne m.v.

Strømkapacitet: Ejendommen er forsynet med 200 Amp.

Alarm: Ja.

Belysning: Fastmonterede armaturer i hallerne, og indbyggede up-lights i kontorer mv.

Udenomsarealer: Grunden er delvist indhegnet med trådhegn og to dobbeltbomme, samt naturlig afgrænsning. Udenomsarealerne er befæstet med belægningssten til tilkørsel, manøvrering og parkering.

Lejemål
Ejendommen er oprindeligt opført og udlejet til Nordisk Plast, der er ved at bygge nyt domicil og således fraflytter ejendommen 31. januar 2026.
Lejer ejer bl.a. pallereoler, udsugningsanlæg, to 2T traverskraner, enkelte maskiner, som muligvis kan overtages af køber efter nærmere aftale.

Selskabsoverdragelse:
Ejendommen overtages ved overdragelse af samtlige anparter i det ejende selskab Byg Invest ApS (CVR.nr. 27235786), der blev stiftet til køb af grunden og opførelse af bygningen.
Den seneste årsrapport pr. 31.12.2024 udviser et årsresultat på ca. 1,2 mio.kr. og en egenkapital på ca. 5,2 mio.kr.
Ved indregning af salgsprisen på kr. 36.000.000 udgør den beregnede egenkapital ca. 14,5 mio.kr.
Den udskudte skat er ved en indregnet ejendomsværdi på kr. 36.500.000 beregnet til ca. 5,5 mio.kr.
Der er bestående kreditforeningslån med restgæld på ca. 14,5 mio.kr.
Øvrige gældsposter andrager ca. 1,5 mio.kr.

Købesummen og kapitalbehovet udgøres af den beregnede egenkapital til kurs 100 plus selskabets resultat fra seneste årsrapport 31.12.2024 indtil overtagelsesdagen i foråret 2026.

Læs mere

Vil du vide mere?

Jesper Bruun Fangel

jef@nordicals.dk

+45 8915 3300

Østervold 42, 2. sal, 8900 Randers C

+4570203911

8900@nordicals.dk

Besøg vores mæglerside

Lignende ejendomme

Til top