Kirkegade 21
8963 Auning

Sagsnr. 1903148

Ejendomstype

Grund

28.814 m²

Attraktiv projektgrund til boligformål

Norddjurs Kommune har længe ønsket et nyt attraktivt boligområde i Auning. Efterspørgslen på boliger der er bynære og ligger tæt op af grønne omgivelser, har været stor, dette bliver en realitet nu.

Beliggenhed
Auning er i positiv udvikling og betragtes som en "hovedby" for den vest-lige del af Norddjurs Kommune. I dag huser Auning 3.000 indbyggere, og tilvæksten har været stigende de sidste par år. Ejendommen/grunden ligger centralt i Auning på Kirkegade, med gode tilkør-selsforhold og kort afstand til
indkøbsmuligheder og det bynære miljø.
Kommunen har igangsat diverse initiativer til, at styrke Aunings og Djurslands positive udvikling, når Letbanen Aarhus - Grenaa er i funktion.

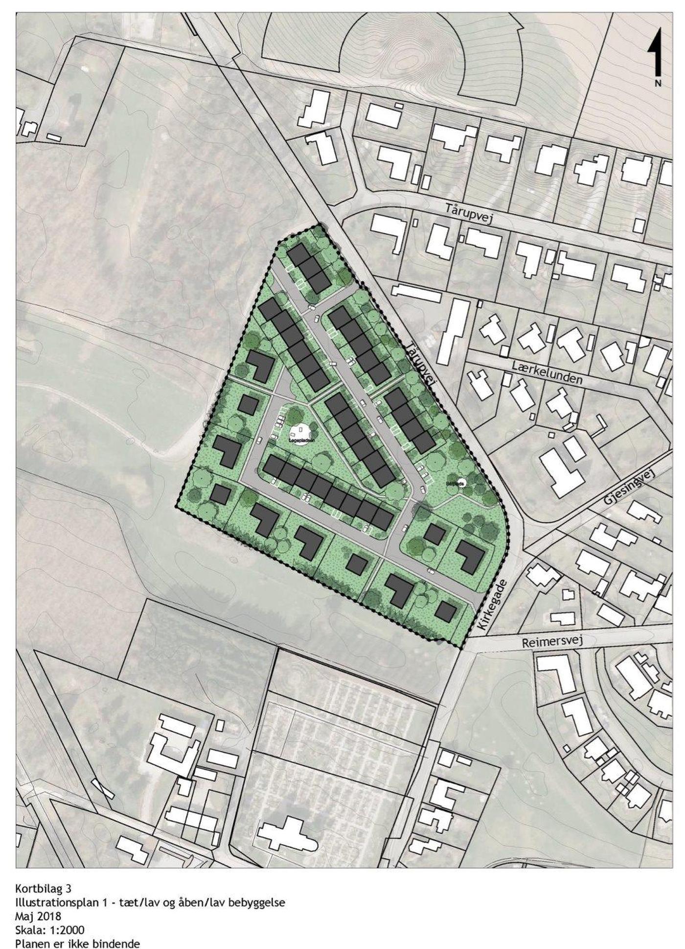
Lokalplanen giver mulighed for opførsel af både rækkehuse og fritliggende villaer eller en kombination heraf. Grundarealet udgør 28.814 m². Området må anvendes til boliger i form af tæt-lav boligbebyggelse rækkehuse, eller åben-lav boligbebyggelse i form af enfamiliehuse, samt interne boligveje, parkering og fælles friarealer. Ved udstykning til tæt-lav boligbebyggelse skal grundstørrelsen mindst være 200 m² og maksimalt 400 m². Ved åben-lav, skal grundstørrelsen mindst være 700 m² og maksimalt være 1.500.

Dermed gives der anledninger til, at tilpasse den konkrete bebyggelse til de markedsforhold, som gør sig gældende i dag, samt egne ambitioner.

Ejendommen
Ejendommen har tidligere været gartneri og blev nedlagt i 2012. Ejen-dommen overdrages som byggegrund, og handelsprisen tillægges moms.

Der har været foretaget miljøundersøgelse af Niras, og ejendommen er på det grundlag ikke kortlagt som forurenet. Ejendommens jordbundsforhold er dog ikke undersøgt.

For yderligere information, kontakt Nordicals Aarhus. Vi fremsender de fornødne dokumenter vedrørende sagen.

Læs mere

Denne ejendom er solgt

Vil du vide mere?

Paul Asger Mühl

pam@nordicals.dk

+45 21375306

Frederiks Plads 42, 12. sal, 8000 Aarhus

+4586208585

8000@nordicals.dk

Besøg vores mæglerside

Lignende ejendomme

Til top