Budolfi Plads 4 - Lejemål 1A
9000 Aalborg

Sagsnr. R170421

Ejendomstype

Etageareal

380 m²

Budolfi Plads

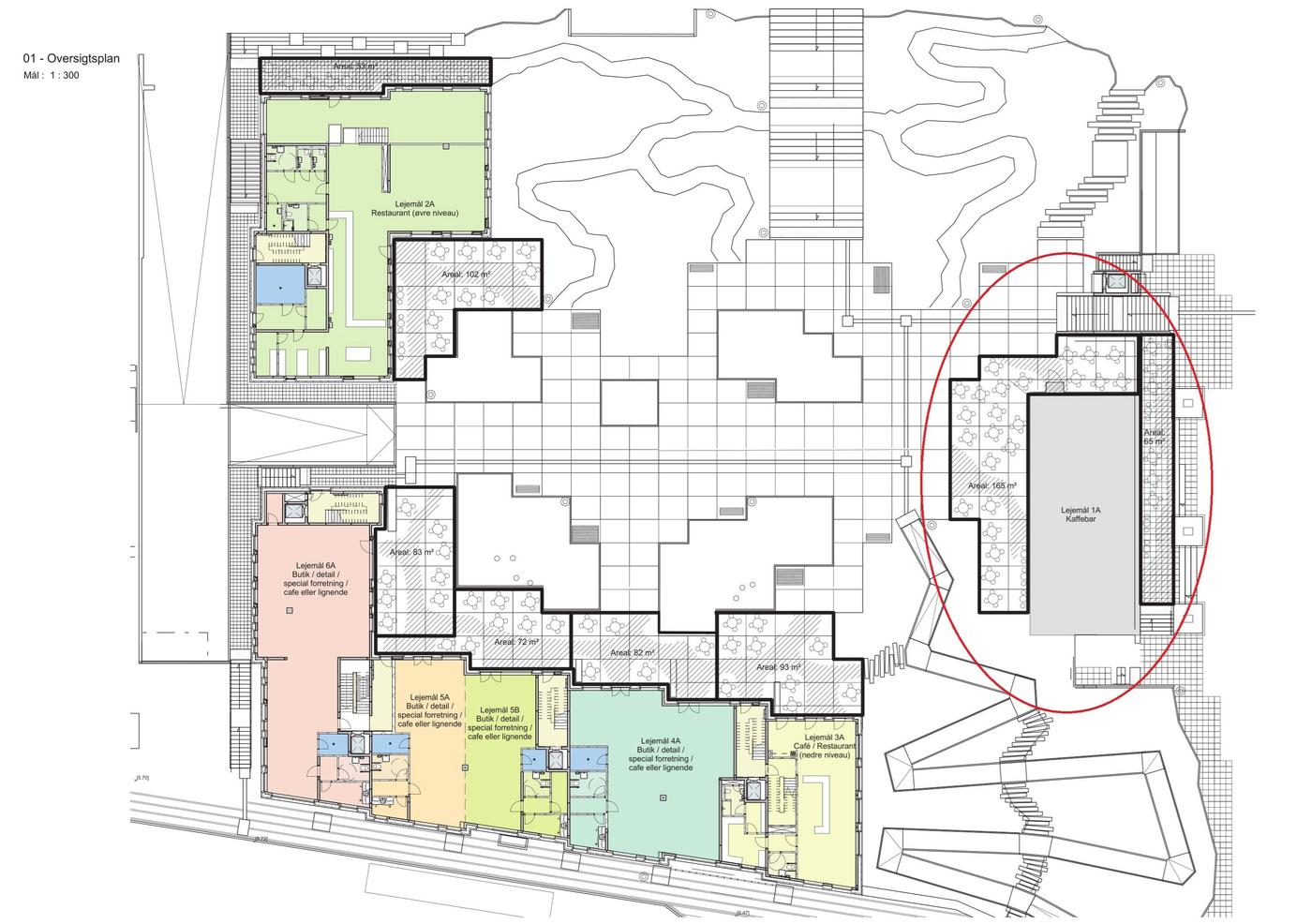
380 m² café- og restaurationslejemål, ideelt til f.eks. kaffebar, beliggende på den nye Budolfi Plads i hjertet af Aalborg udlejes.

Lejemålet er opført i 2 plan, hvoraf nedre niveau med indgang fra Vingårdsgade indeholder 161 m². Herfra er der trappeopgang til lejemålets øvre niveau, der består af 219 m² og er indrettet med siddepladser, opvaskerrum samt bardisk. Herudover er der elevator i lejemålet. Fra lejemålets øvre niveau er der adgang til Budolfi Plads, hvor der også er mulighed for udendørsservering.

Den nye Budolfi Plads forener byen i en fælles mødeplads, der udgøres af en treenighed af grønne arealer, hyggelige cafeer og erhvervslejemål samt attraktive boliger. Budolfi Plads ligger i byens absolutte centrum lige overfor den smukke gamle domkirke; midt i en grøn oase og kun ganske få skridt fra Aalborgs gågader.

Budolfi Plads er et enestående byrum midt i byen, der både er attraktivt for de mange aalborgensere og de mange besøgende, der hvert år kommer til byen. Pladsen er let tilgængelig og fungerer som et bindeled mellem Aalborgs inderste gågader.

En stor del af Budolfi Plads udgør en attraktiv spirende bypark, der er kendetegnet ved sine forskellige niveauer, der indbyder til hygge og afslapning i byens nye åndehul. Pladsen, der omkranses af butikker, restaurationer, en dagligvareforretning og boliger, bliver desuden et multifunktionelt rum, der kan anvendes til en mængde af forskellige aktiviteter i Aalborg centrum.

Budolfi Plads etableres oven på en ny offentlig parkeringskælder og er klar til indflytning ultimo 2019.

I opførelsen af Budolfi Plads er de to væsentligste parametre kvalitet og funktionalitet, hvorfor arkitektur, materialevalg mv. er af højeste kvalitet.

For yderligere oplysninger omkring aptering kan Nordicals Aalborg kontaktes på 9813 4000.

Læs mere

Denne ejendom er udlejet

Vil du vide mere?

Steen Royberg

sro@nordicals.dk

+4520134000

Skibbrogade 3, 2. sal, 9000 Aalborg

+4598134000

9000@nordicals.dk

Besøg vores mæglerside

Lignende ejendomme

Til top