Gasværksvej 30A, 2.
9000 Aalborg

Sagsnr. 4250305

Ejendomstype

Etageareal

Energiklasse

120 m²

C

Årlig leje

Leje pr. m²

Depositum

Årlig driftsudgift

Årlig driftsudgift pr. m²

119.400 kr.

995 kr.

59.700 kr.

11.700 kr.

98 kr.

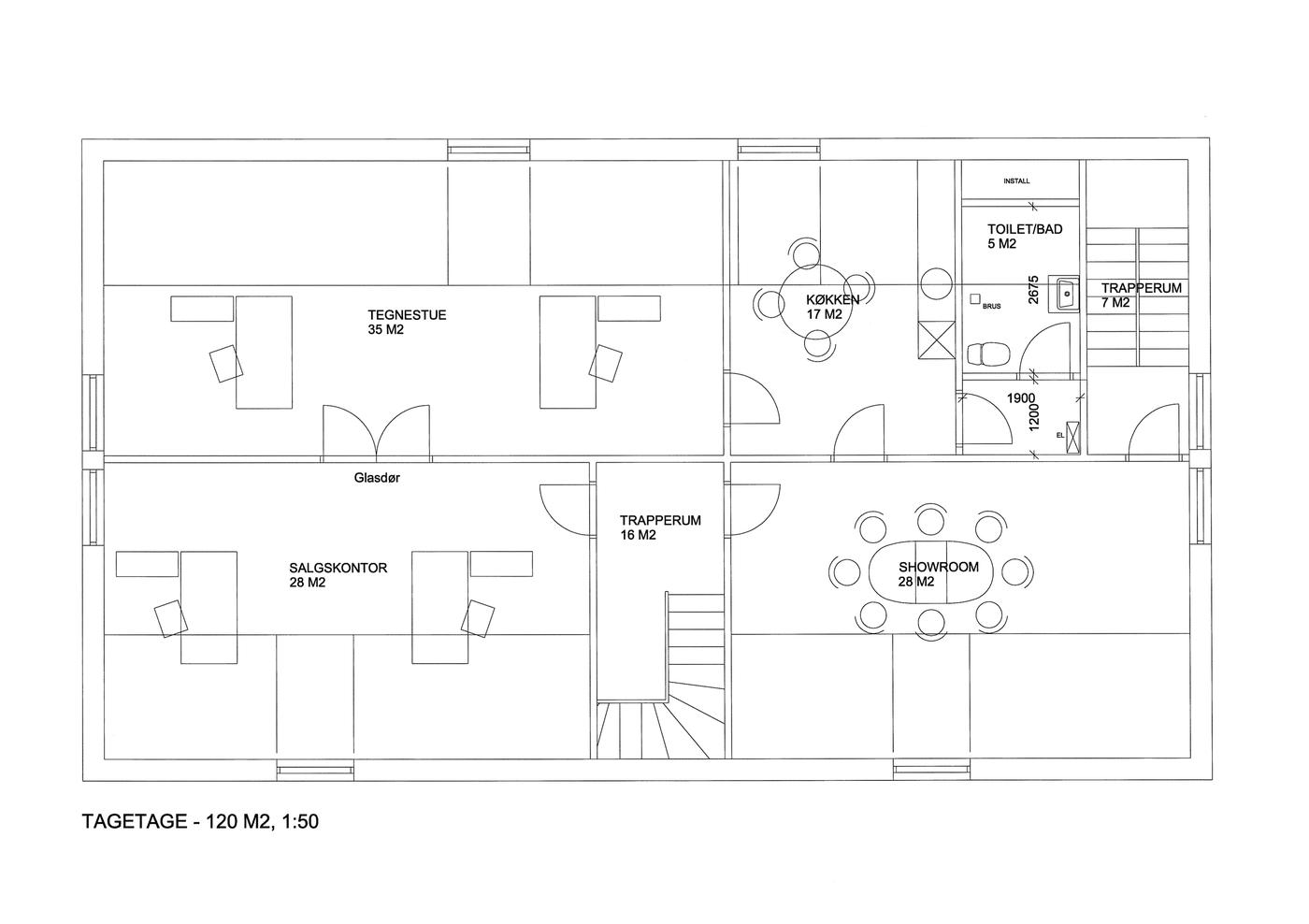
Velindrettede kontorlokaler

Velindrettet kontorlejemål beliggende i Aalborgs mest centrale og bynære erhvervspark med kun 1 km til motorvejsnettet udlejes.

Lejemålet, der er på i alt 120 m², er beliggende i en del af et større ejendomskompleks på 2. sal. Lejemålet er indrettet med skråvægge og fritlagte bjælker og indeholder 2 stk. kontorer på henholdsvis 28 m² og 35 m², mødelokale på 28 m² samt køkken og toilet med tilhørende badefaciliteter. Fra både kontor og mødelokale er der kig til fjorden.

Lokalerne fremstår i flot og velholdt stand såvel udvendigt som indvendigt og har senest været anvendt til arkitektkontor og er velegnet til stort set alle typer kontor-, handels-, service- og IT-virksomheder mv.

Lejemålet tilbyder gode parkeringsforhold på terræn. Til lejemålet medfølger 2 stk. parkeringspladser til en årlig leje på kr. 7.200 p.a. pr. parkeringsplads. Såfremt flere ønskes kan der medlejes yderligere efter aftale med udlejer.

Der er desuden mulighed for at medleje et aflåst depotrum i ejendommens kælder på ca. 15 m² til kr. 250,- pr. m² pr. år.

Området, hvor lejemålet er beliggende, karakteriseres som et af Aalborgs bedste og mest efterspurgte erhvervsområder med gode busforbindelser, kort afstand til motorvejsnettet og Aalborg C. Området har været under gennemgribende udvikling fra industri- og havneområde til et nyt attraktivt erhvervsområde, hvor flere store virksomheder har valgt at placere deres domicil. Det seneste eksempel på dette er at Norlys er ved at opføre deres domicil på Havnefronten.

Infrastruktur:
Afstand til Aalborg Lufthavn: 8 km
Afstand til motorvejsnettet: 1 km
Afstand til regionaltog: 2,5 km
Der er busstoppested tæt ved lejemålet

Læs mere

Vil du vide mere?

Nikolaj Kjelder

nik@nordicals.dk

+4561365735

Skibbrogade 3, 2. sal, 9000 Aalborg

+4598134000

9000@nordicals.dk

Besøg vores mæglerside

Lignende ejendomme

Til top