Gasværksvej 24A, st., A-fløj
9000 Aalborg

Sagsnr. K1605-33

Ejendomstype

Etageareal

Energiklasse

425 m²

B

Præsentabelt kontor-/kliniklejemål

Klik her for at se dronefilm af ejendommen

Kontorlejemål beliggende i flot og velindrettet multibrugerejendom i det nye, attraktive erhvervs- og boligområde ved Havnen udlejes. Ejendommen er centralt beliggende i Aalborg med få minutters kørsel fra såvel motorvejsnettet som Aalborg City og har god adgang til offentlige transportmidler. Ejendommen er beliggende i et af Aalborgs mest spændende udviklingsområder, hvor tidligere industriområder omdannes til eksklusive boligarealer og flotte kontordomiciler. I den umiddelbare nærhed ses KMD, Alfa Laval og SKATs store domiciler samt Østre Havn Strandpark.

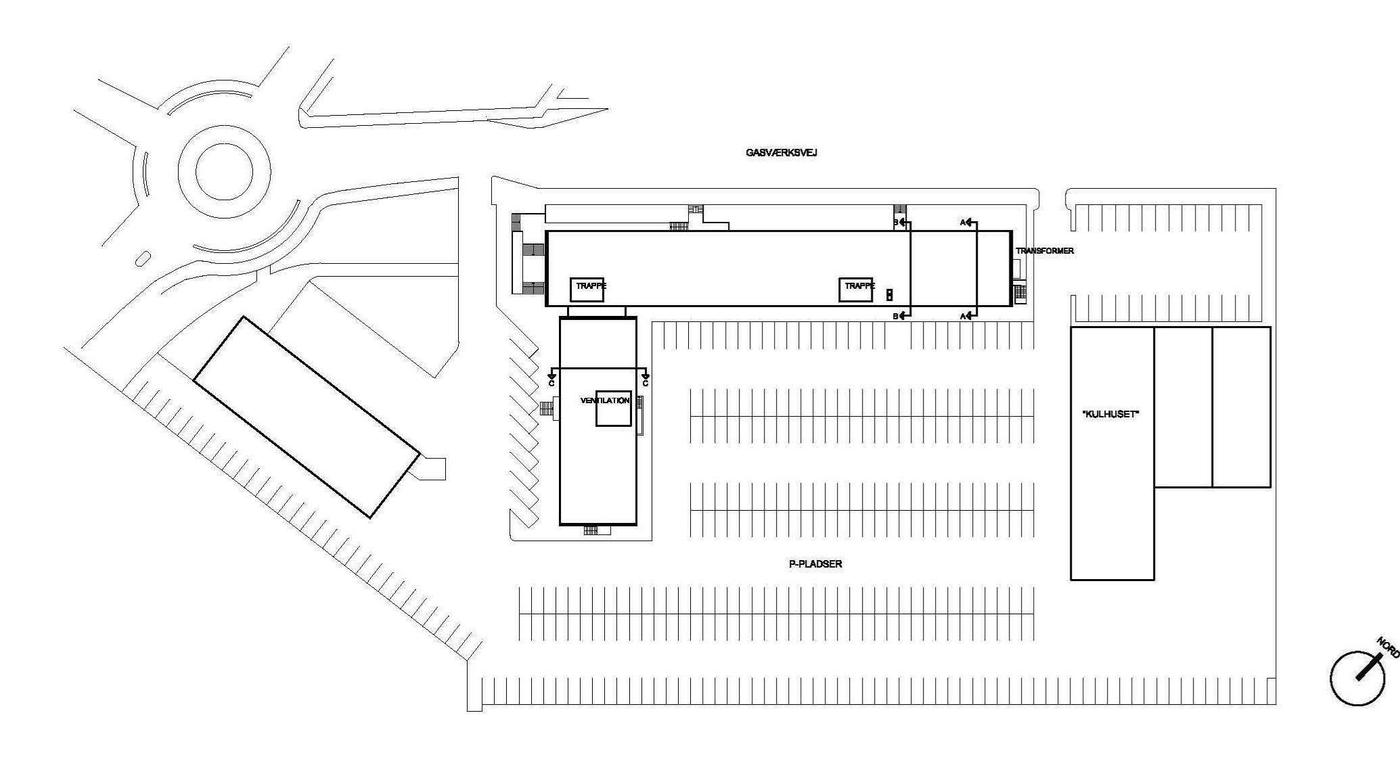
Ejendommen er opført i 1970 og løbende renoveret i gode og solide kvalitetsmaterialer og fremstår overalt i flot og præsentabel stand. Ejendommen består af to femetagers fløje, A- samt B-fløj, samt ca. 540 m² kælder.

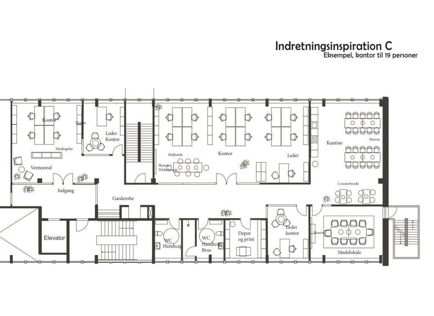
Indenfor bydes man velkommen af et præsentabelt, fælles indgangsparti med mulighed for infoskærme. Lejemålet er på 425 m² og er beliggende i stueetagen i ejendommens A-fløj. Lejemålet leveres med en basisindretning bestående af ny gulvbelægning, nye lydlofter og nymalede vægge. Yderligere special indretning kan aftales nærmere med udlejer. Udbudslejen er fastsat under forudsætning af, at lejemålet overtages i basisindretning,- men lejemålene kan efter nærmere aftale indrettes, mod at udlejers udgift hertil kapitaliseres over huslejen efter nærmere aftale parterne imellem. Der er mulighed for indretning til kontor- elle kliniklejemål. Se iøvrigt indretningsforslag i lejeopstillingen, som kan downloades.

Lejemålet tilbyder gode parkeringsforhold på terræn. Der er i alt 282 parkeringspladser på ejendommens grundareal. Der kan medlejes 1. stk. parkeringsplads pr. lejet 50 m². Parkering lejes til kr. 6.000,- p.a. pr. parkeringsplads. Parkering reguleres ved P-licenser og afmærkede pladser.

Kælder:
Der er mulighed for at medleje depotrum i ejendommens kælder efter nærmere aftale.

Afstande:
Aalborg City (ca. 1,5 km - 3 minutter i bil)
Aalborg Banegård/rutebilstation (ca. 2,5 km - 5 minutter i bil)
Aalborg Lufthavn (ca. 8 km - 10 minutter i bil)
Tilslutning til motorvejsnettet (300 meter)
Linje 18 (bybus) lige ved ejendommen

Læs mere

Denne ejendom er udlejet

Vil du vide mere?

Skibbrogade 3, 2. sal, 9000 Aalborg

+4598134000

9000@nordicals.dk

Besøg vores mæglerside

Lignende ejendomme

Til top