Jyllandsgade 12
9000 Aalborg

Sagsnr. B170546

Ejendomstype

Etageareal

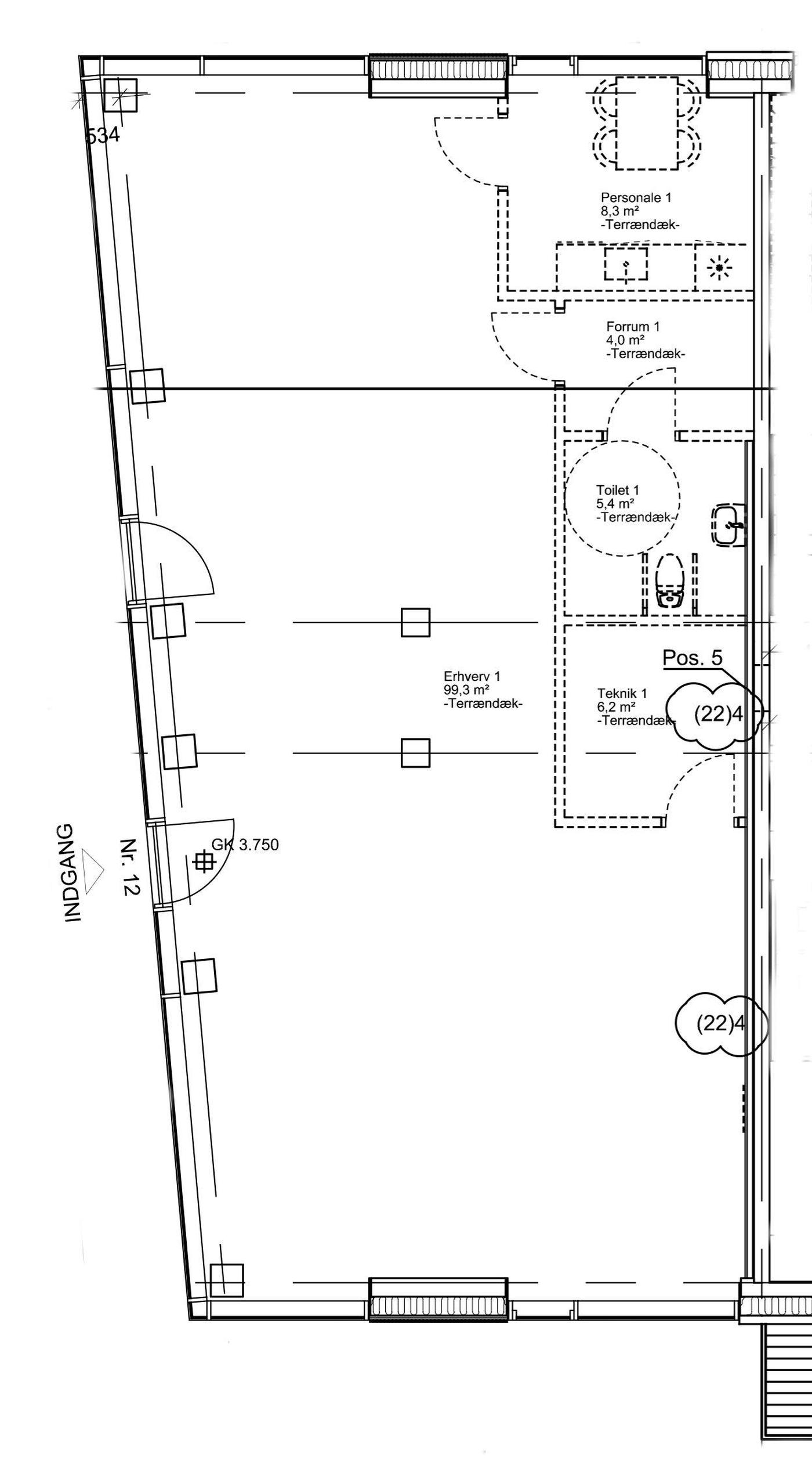
136 m²

Butik under opførelse

Nyopført synligt 99 m² butikslokale klar til udlejning i juli 2018. Lejemålet er ideelt til mindre butikker samt mindre cafe/ restauranter.

Lejemålet er placeret i stueetagen i et flot nybyggeri på Godsbanen, tegnet af KPF Arkitekter. Bygningen indeholder foruden lejemålet fem etager med boliger.

Lejemålet har en unik placering tæt på Nordisk Films biograf I Kennedy Arkaden, som er Jyllands største biograf med 10 sale og 1.470 sæder, og som hvert år besøges af over 600.000 biografgæster.

På Godsbanen vil der fremadrettet færdes mange tusinde mennesker dagligt, idet Aalborg Studenterkursus og VCU/HF samt SOSU- uddannelserne har placeret deres nye skoler i dette område. Endvidere er der allerede nu opført flere hundrede boliglejligheder (familieboliger og ungdomsboliger) på området samt skønne grønne oaser.

Der udføres lovpligttig el-, ventilations- og vvs-installationer. Hvor indvendige vægge eller lign. er nødvendigt for, at færdiggøre installationen afsluttes denne på betonloft for senere færdiggørelse af butiksejer. Facadepartier og indgangsparti udføres i glasalu. som Schuco. Der udføres 1 stk. toilet.

Lejemålet apteres efter nærmere aftale med udlejer.

Læs mere

Denne ejendom er udlejet

Vil du vide mere?

Steen Royberg

sro@nordicals.dk

+4520134000

Skibbrogade 3, 2. sal, 9000 Aalborg

+4598134000

9000@nordicals.dk

Besøg vores mæglerside

Lignende ejendomme

Til top