Nørregade 9
9000 Aalborg

Sagsnr. 2250908

Ejendomstype

Etageareal

Grund

556 m²

346 m²

Kontantpris

Købspris pr. m²

Årlig driftsudgift

Årlig driftsudgift pr. m²

7.800.000 kr.

14.029 kr.

113.722 kr.

205 kr.

Historisk og centralt placeret ejendom med unik synlighed

Hermed udbydes Nørregade 9 - en charmerende, historisk og centralt beliggende ejendom i hjertet af Aalborg. Ejendommen udbydes med et disponibelt erhvervslejemål i flere plan, da nuværende ejer Lilly påtænker at fraflytte ejendommen efter nærmere aftale med køber. Herudover rummer ejendommen en større udlejet beboelseslejlighed.

Den årlige lejeindtægt fra boliglejligheden udgør kr. 109.200

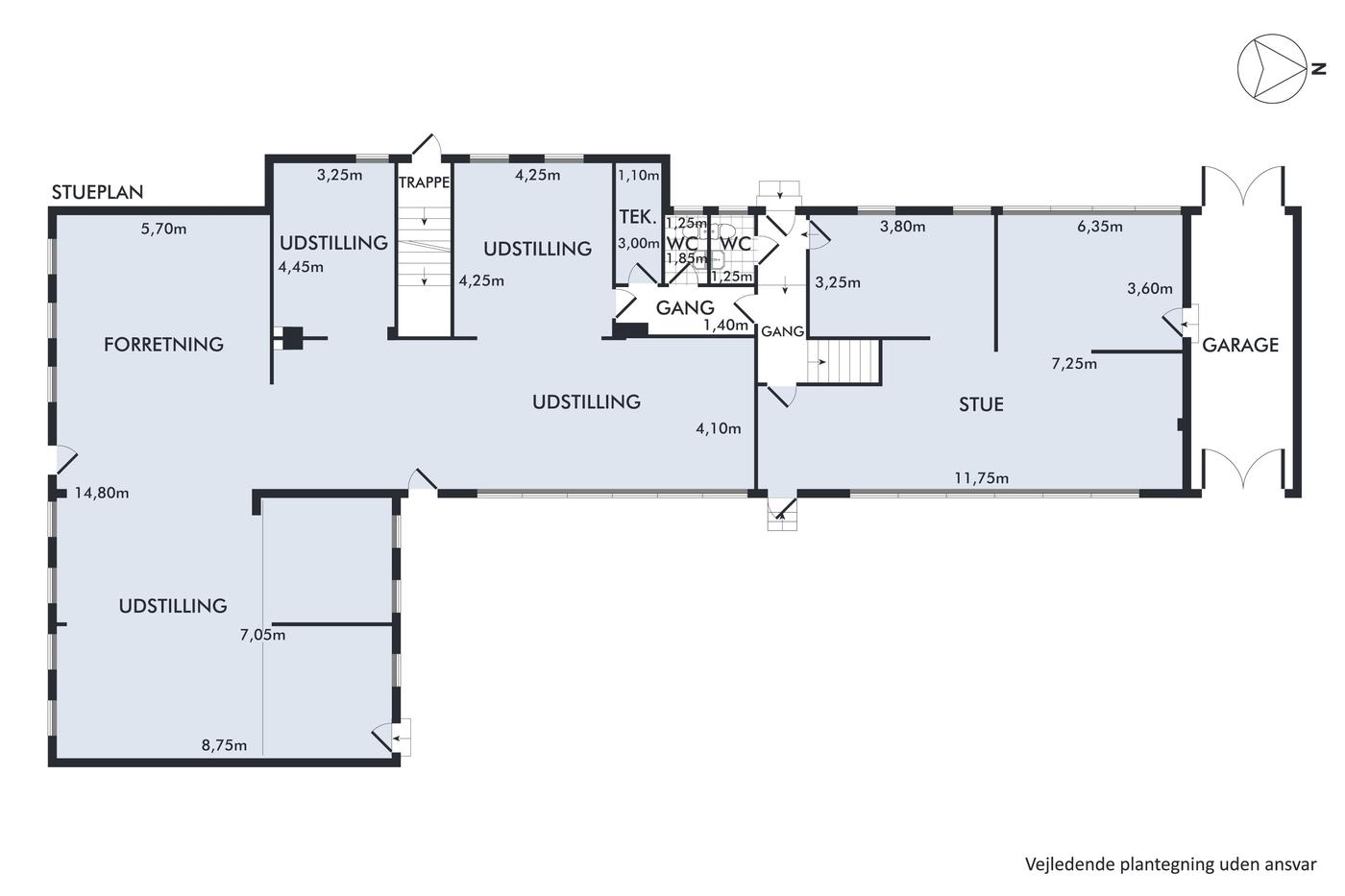
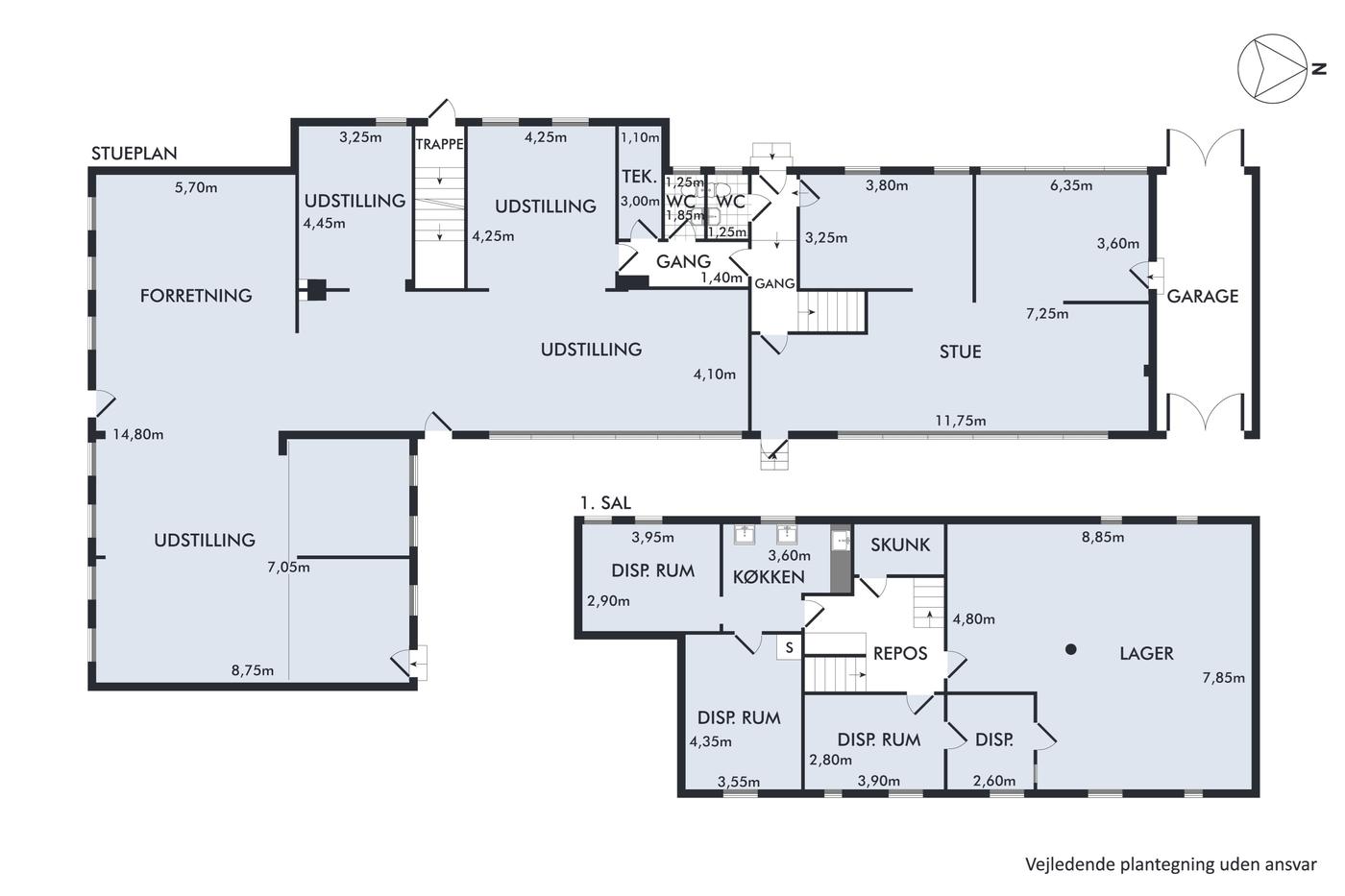
Nuværende ejer har drevet egen detailforretning i ejendommen i mere end 10 år. Plantegningen viser en velindrettet ejendom med store og sammenhængende butiks- og udstillingsarealer i stueplan, suppleret af kontor-, teknik- og toiletfaciliteter samt direkte adgang til en rummelig garage. Førstesalen rummer flere disponible rum, køkken og et større lagerrum, og ejendommens indretning sikrer et naturligt og effektivt flow mellem kundearealer, drift og lagerhåndtering.

Med sin centrale adresse, få skridt til gågademiljø, offentlig transport og et bredt udvalg af byfunktioner, tilbyder Nørregade 9 en historisk og spændende ejendom med mange muligheder.

Ejendommen fremstår markant og charmerende med sin velholdte bindingsværksfacade midt i Aalborgs gågademiljø. Den attraktive hjørneplacering giver maksimal synlighed og stærk eksponering mod det løbende flow af fodgængere. Området er præget af byliv og detailhandel - tæt på Friis, Magasin og byens øvrige handelsdestinationer - hvilket understreger ejendommens unikke beliggenhed.

Ejendommen rummer for den rette køber spændende udviklingsmuligheder, hvor det med respekt for ejendommens historik og beliggenhed vil være muligt at sætte sit præg i hjertet af Aalborg.

Læs mere

Vil du vide mere?

Nikolaj Kjelder

nik@nordicals.dk

+4561365735

Skibbrogade 3, 2. sal, 9000 Aalborg

+4598134000

9000@nordicals.dk

Besøg vores mæglerside

Lignende ejendomme

Til top