Nytorv 18, 3. og 4. sal
9000 Aalborg

Sagsnr. 4230332

Ejendomstype

Etageareal

Grund

Energiklasse

636 m²

2.505 m²

C

Årlig leje

Leje pr. m²

Depositum

Årlig driftsudgift

Årlig driftsudgift pr. m²

540.600 kr.

850 kr.

270.300 kr.

84.588 kr.

133 kr.

Kontor-/ eller undervisningsejendom med unik beliggenhed

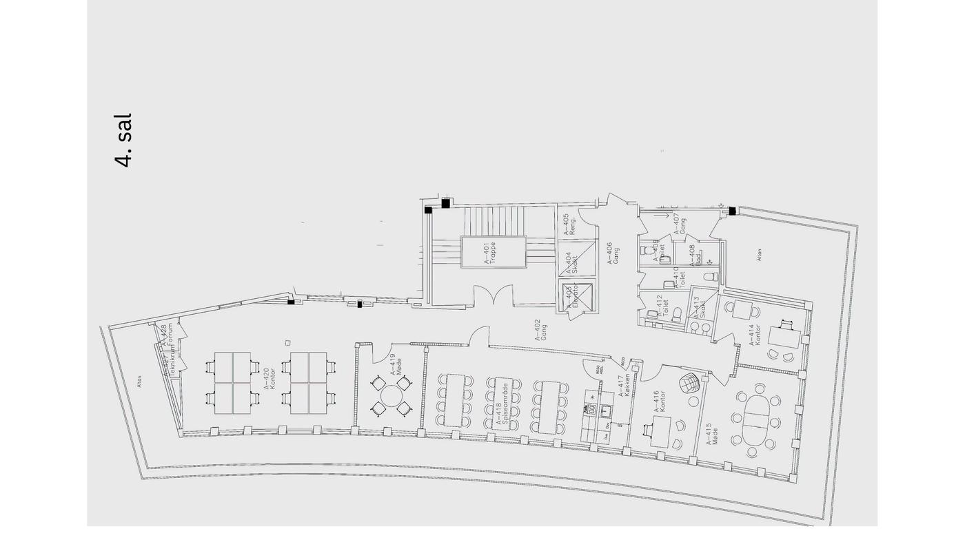
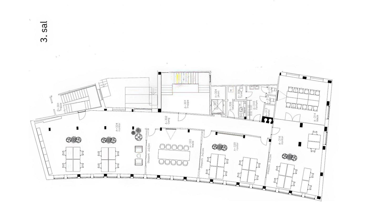
På en af byens mest attraktive beliggenheder i hjertet af Aalborg udlejes et kontorfremlejemålet - lejemålet vil blive istandsat efter lejers ønsker i forbindelse med indflytningen. Der er i nærværende materiale vedlagt plantegninger med udlejers forslag til fremtidig indretning - dette er dog kun forslag til dialog mellem lejer og udlejer, men har lejer tilpasninger eller forslag er udlejer lydhør overfor disse.

Derved kan du som lejer i høj grad være med til selv at designe dit fremlejemåls størrelse, ud fra din virksomheds behov og ønsker. Fleksibiliteten er høj, og derfor er ejendommen velegnet til de fleste. Etagerne kan således designes ud fra den enkelte virksomheds ønsker og behov, og udlejers arkitekt vil levere skitsering af planløsning til fælles godkendelse forinden tiltrædelse af lejekontrakt - i nærværende prospekt udbydes 3. og 4 etage i samlet prospekt. Der er p.t indrettet stor kantine på lejemålet øverste etage med adgang til mindre tagterrasse og kig til fjorden.

Fremlejemålet er særdeles velegnet til mange forskellige former for kontor, sundhedshus, klinik, undervisnings-/ eller servicevirksomhed.

Nytorv er et af byens absolut mest centrale knudepunkter for Aalborgs offentlige bustransportforbindelser samt let adgang til motorvej mv.

Der er endvidere mulighed for at medleje et nærmere aftalt antal parkeringspladser til kr. 10.800,- p.a. pr. stk. (op til 2 stk. pr. etage / i alt 4 stk.). Der er herudover muligheder for parkering indenfor en radius af 0,5 km.

Det fremlejede er beliggende oven over Sinnerup samt med Sallings Stormagasin, Magasin, Føtex og FRIIS som nærmeste naboer.

Området har som et led i opførelse af Butikscenter FRIIS gennemgået en markant udvikling og må i dag betegnes som et af byens absolut mest attraktive steder i Aalborg midtby lige overfor det nyanlagte Gabels Torv, som er smukt anlagt bytorv.

Læs mere

Vil du vide mere?

Nikolaj Kjelder

nik@nordicals.dk

+4561365735

Skibbrogade 3, 2. sal, 9000 Aalborg

+4598134000

9000@nordicals.dk

Besøg vores mæglerside

Lignende ejendomme

Til top