Porsvej 6
9000 Aalborg

Sagsnr. 1241202

Ejendomstype

Etageareal

Energiklasse

3.213 m²

A2010

Årlig leje

Leje pr. m²

Depositum

Årlig driftsudgift

Årlig driftsudgift pr. m²

1.565.775 kr.

487 kr.

782.888 kr.

144.629 kr.

45 kr.

Domicilejendom i indre Aalborg med kontor og lager

Det hører efterhånden til sjældenhederne, at en erhvervsejendom med kontor og lager i den indre del af Aalborg udbydes til leje - men nu er muligheden her.

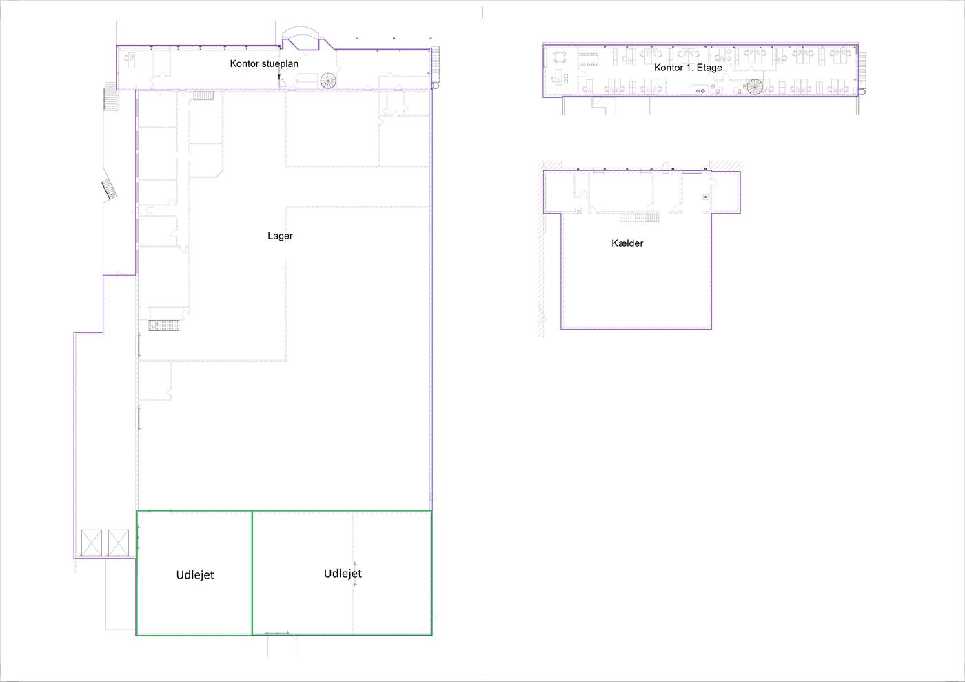
Porsvej 6, 9000 Aalborg er en velholdt og moderne domicilejendom med 511 m² administration i 2 plan, og 2.260 m² lager, værksted og montage. Desuden indeholder ejendommen en 442 m² underetage, som er indrettet smagfuldt til personalefaciliteter og lager og depot. Ejendommen er løbende vedligeholdt og udbygget og tilpasset seneste lejers behov, og fremstår særdeles præsentabel.

Administrationsbygningen er fordelt på to etager og indrettet med moderne kontorfaciliteter i en kombination af åbne kontorlandskaber og cellekontorer, hvor seneste tilbygning er gennemført i 2023. Administrationsbygningen indeholder endvidere mødelokaler, kantine og velfærd. Fra parkeringspladsen foran administrationsbygningen er der adgang til ejendommens flotte foyer med kundetoilet og adgang til kontor på begge etager samt direkte adgang til kantinen.

Ejendommen har bad og omklædning og opvarmes via fjernvarme. Nuværende lejer har løbende inddraget en del af lageret til yderligere kontor. Kommende anvendelse af disse arealer kan drøftes med udlejer.

Ejendommens øvrige arealer er disponeret til værksted og montageafsnit og højloftet lager, der er sektionsopdelt i 2 enheder. Lageret kan naturligvis i fremtiden sammenlægges til ét stort lager. Der er portadgang til lageret via fælles overdækket af- og pålæsningsområde med betonrampe.

Der er endvidere udlejet to mindre lagerenheder i den bagerste del af ejendommen (det ene lager anvender udlejer selv).

Lager- og produktionsafsnittet har en varierende loftshøjde på ca. 5-7 meter, støbte betongulve og loftsplader i troltex. Ejendommen fik udskiftet taget i 2013 og blev i denne forbindelse efterisoleret og fik nye ovenlysvinduer.

Forhør nærmere hos Nordicals Aalborg for evt. mulighed for at købe ejendommen.


Infrastruktur, afstand til:
Aalborg Lufthavn 10 km
Motorvejsnettet 3,5 km
Regionaltog 2,6 km
Busstoppested 0,3 km

Udlejer har ret til mellemleje.

Læs mere

Vil du vide mere?

Mattias Manstrup

mam@nordicals.dk

+4524285101

Skibbrogade 3, 2. sal, 9000 Aalborg

+4598134000

9000@nordicals.dk

Besøg vores mæglerside

Lignende ejendomme

Til top