Slotsgade 4
9000 Aalborg

Sagsnr. 6251145

Ejendomstype

Etageareal

Grund

Energiklasse

224 m²

92 m²

E

Kontantpris

Købspris pr. m²

Afkast

Årlig lejeindtægt

Årlig lejeindtægt pr. m²

Årlig driftsudgift

Årlig driftsudgift pr. m²

2.975.000 kr.

13.281 kr.

4 %

144.000 kr.

643 kr.

26.164 kr.

117 kr.

Erhvervsejendom i 2-plan i gågaden

Denne ejendom på Slotsgade i Aalborg Centrum udbydes nu til salg som en fuldt udlejet investeringsejendom med stærk beliggenhed og solid anvendelsesprofil.

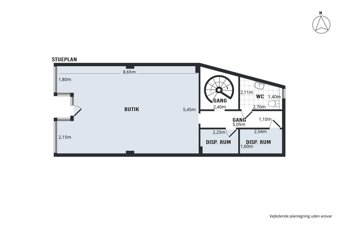
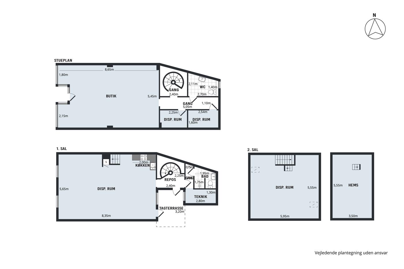
Ejendommen rummer i alt ca. 224 m² fordelt på flere etager og er udlejet til en erhvervslejer, der anvender lokalet til butik/barbershop-lignende aktiviteter - i tråd med ejendommens tidligere brug.

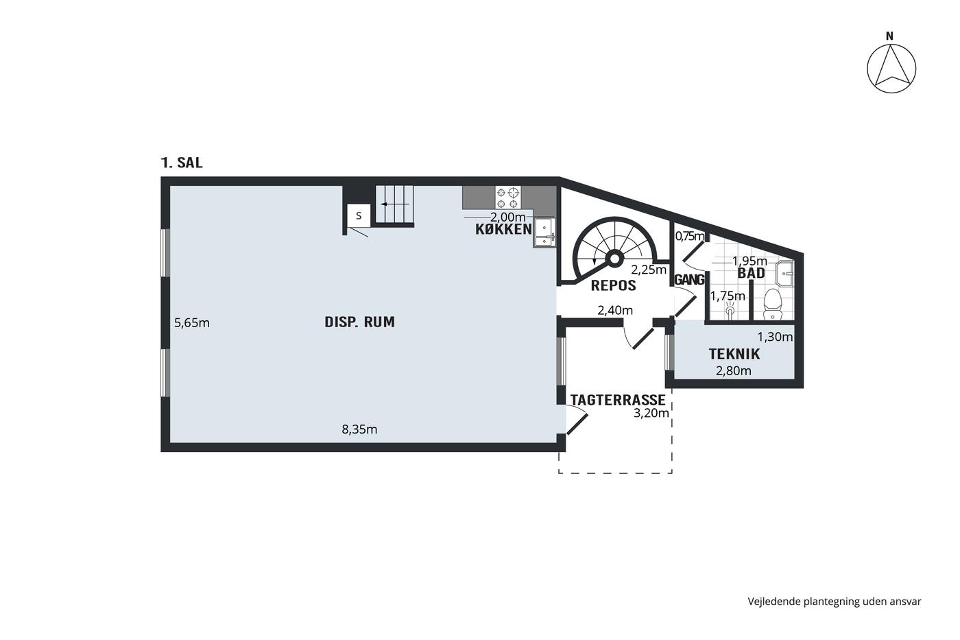
Lejemålet består af et attraktivt stueplansareal på ca. 92 m² med åbent butiks- og udstillingsmiljø, velfærdsfaciliteter og et mindre baglokale/lager. Fra stueplan fører en elegant spindeltrappe til 1. salen, der rummer endnu et åbent og anvendeligt lokale på ca. 92 m², ideelt til kontor, showroom eller administration. Herfra er der adgang til en lille tagterrasse, som giver lejer mulighed for et udendørs opholdsareal. På 2. salen findes et ca. 40 m² stort loftrum, som fungerer optimalt til opbevaring.

Ejendommen fremstår flot, velholdt og præsentabel med en markant facade og store vinduespartier, som giver optimale udstillingsmuligheder og høj synlighed i gadebilledet. Placeringen på Slotsgade - lige ved hovedindgangen til Føtex og tæt på Salling, Friis og Magasin - sikrer et konstant flow af forbipasserende og en attraktiv eksponering.

Det omkringliggende center- og gågadermiljø har gennem de seneste år gennemgået en markant udvikling og tiltrækker dagligt et stort antal besøgende.

Samlet set tilbyder denne investeringsejendom en attraktiv kombination af god beliggenhed, præsentabel ejendom og en stabil lejer - ideel for investoren, der søger et velbeliggende og driftssikkert aktiv i Aalborg centrum.

Læs mere

Vil du vide mere?

Nikolaj Kjelder

nik@nordicals.dk

+4561365735

Skibbrogade 3, 2. sal, 9000 Aalborg

+4598134000

9000@nordicals.dk

Besøg vores mæglerside

Lignende ejendomme

Til top