Ved Stranden 22, 1. th.
9000 Aalborg

Sagsnr. 4180123

Ejendomstype

Etageareal

Energiklasse

276 m²

D

Momsfrie lejemål med elevator

Bliv lejer i Limfjordshuset. Lejemålet er særdeles velegnet til læger, privathospital, speciallæger, kiropraktorer, psykologer, fysioterapi, genoptræningscentre, kostvejledning, forsikringsselskaber eller lignende, idet lejemålet er momsfrit. Lejemålet vil dog også være ideelt til andre former for kontorvirksomhed og liberalt erhverv.

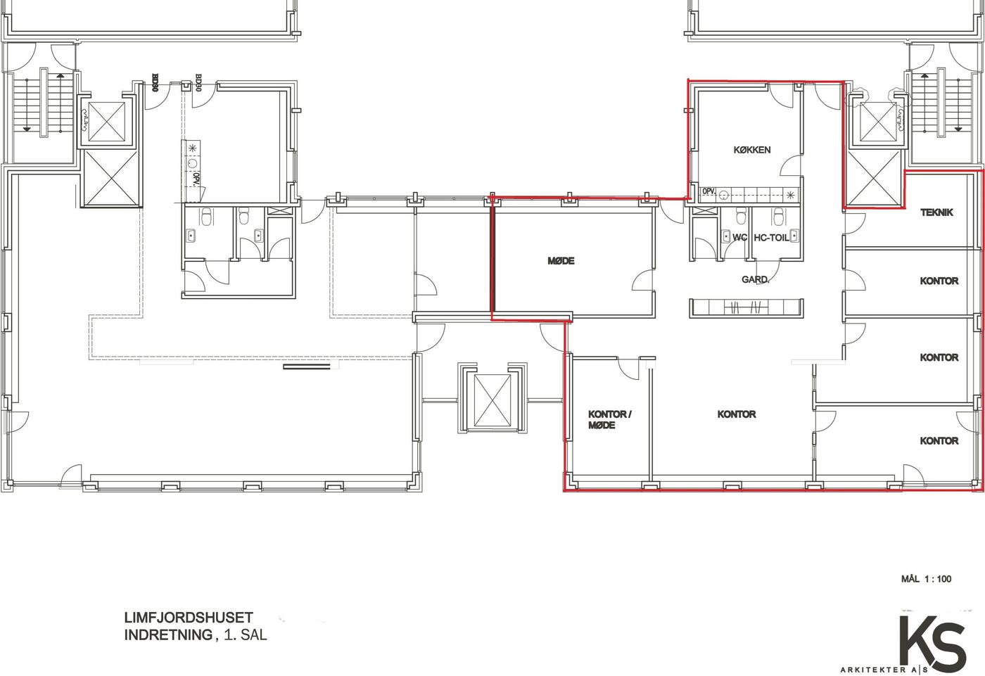
Lejemålet på 276 m² er indrettet med flere kontorer, mødelokaler, stort køkken med god spiseplads, 2 toiletter m.v. Der er netværkskabling i lejemålene. Lejemålet fremstår generelt i en meget høj standard og i en kvalitet, som ikke ses mange andre steder i Aalborg.

Der er endvidere mulighed for at medleje parkeringspladser i ejendommens parkeringskælder. Lejeprisen pr. parkeringsplads andrager kr. 9.000,- p.a. Ligesom der vil være mulighed for at medleje arkiv i kælderen efter nærmere aftale.

Ejendommen er forsynet med elevatorer, og der er særdeles gode offentlige transportmuligheder til lejemålene med busstop lige foran ejendommens hovedindgang.

Yderligere erhvervslejere i Limfjordshuset er: Forex, Karma Sushi, Faurskov Fertilitet og Ultralyd, Speciallæge Bruno Nyholm, CM Network, Øre-, næse-, halslæge Jette Bønneland, Tandklinikken Godt Smil, Salus Danmark ApS, Krogh Arkitektur A/S samt Finans- og Ejendomsselskabet Aalykke.

Der er dejligt fælles gårdhavemiljø.

Lejemålene er momsfrie.

Læs mere

Denne ejendom er udlejet

Vil du vide mere?

Mattias Manstrup

mam@nordicals.dk

+4524285101

Skibbrogade 3, 2. sal, 9000 Aalborg

+4598134000

9000@nordicals.dk

Besøg vores mæglerside

Lignende ejendomme

Til top