Vesterbro 95, st. tv.
9000 Aalborg

Sagsnr. 2240826

Ejendomstype

Etageareal

Energiklasse

172 m²

C

Årlig leje

Leje pr. m²

Depositum

Årlig driftsudgift

Årlig driftsudgift pr. m²

189.200 kr.

1.100 kr.

94.600 kr.

5.000 kr.

29 kr.

Markant butikslejemål med attraktiv placering i centrum af Aalborg

Markant butikslejemål med attraktiv placering i Centrum af Aalborg, med Netto og Realmægleren som nærmeste nabo. Placeringen er i det absolutte centrum af Aalborg, med Tyren overfor samt indgangen til den populære gågade Bispensgade.

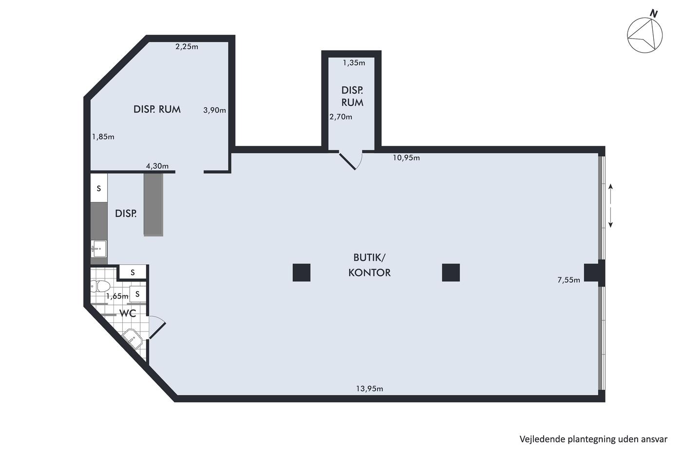
Lejemålet er indrettet med højloftet og regulært lyst butikslokale som har niveaufri indgangsparti med skydedøre og 5 store udstillingsvinduer: Desuden er der særskilt butikslokale/lager, toilet samt teknikrum.

Lejemålet er forsynet med god LED grundbelysning og opvarmes med varmeblæsere som er monteret i loftet.

Direkte foran lejemålet er et af Aalborgs mest trafikerede busstoppested, ligesom der er kort afstand til gode parkeringsmuligheder.

Der er desuden mulighed for at medleje 76 m² lager i kælderen.

Kontakt Nordicals for yderligere oplysninger.


Udlejer har ret til mellemleje.

Læs mere

Vil du vide mere?

Jens Eskildsen

jes@nordicals.dk

+4551261408

Skibbrogade 3, 2. sal, 9000 Aalborg

+4598134000

9000@nordicals.dk

Besøg vores mæglerside

Lignende ejendomme

Til top