Vesterbro 90, st. tv., st. th. 92, st. og Borgergade 10, st
9000 Aalborg

Sagsnr. 3190806

Ejendomstype

Etageareal

Grund

Energiklasse

447 m²

434 m²

C

Ikonisk erhvervsejerlejlighed på god placering sælges.

Ikonisk erhvervsejerlejlighed på god placering i Aalborg centrum sælges.

Sælger af ejendommen driver Aalborgs ældste kinesiske restaurant fra ejendommen og har gjort det siden starten af 1980'erne. Ejeren ønsker ikke at drive restauranten videre, hvorfor han vil lukke restauranten i forbindelse med salget.

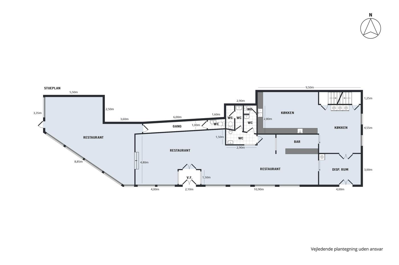
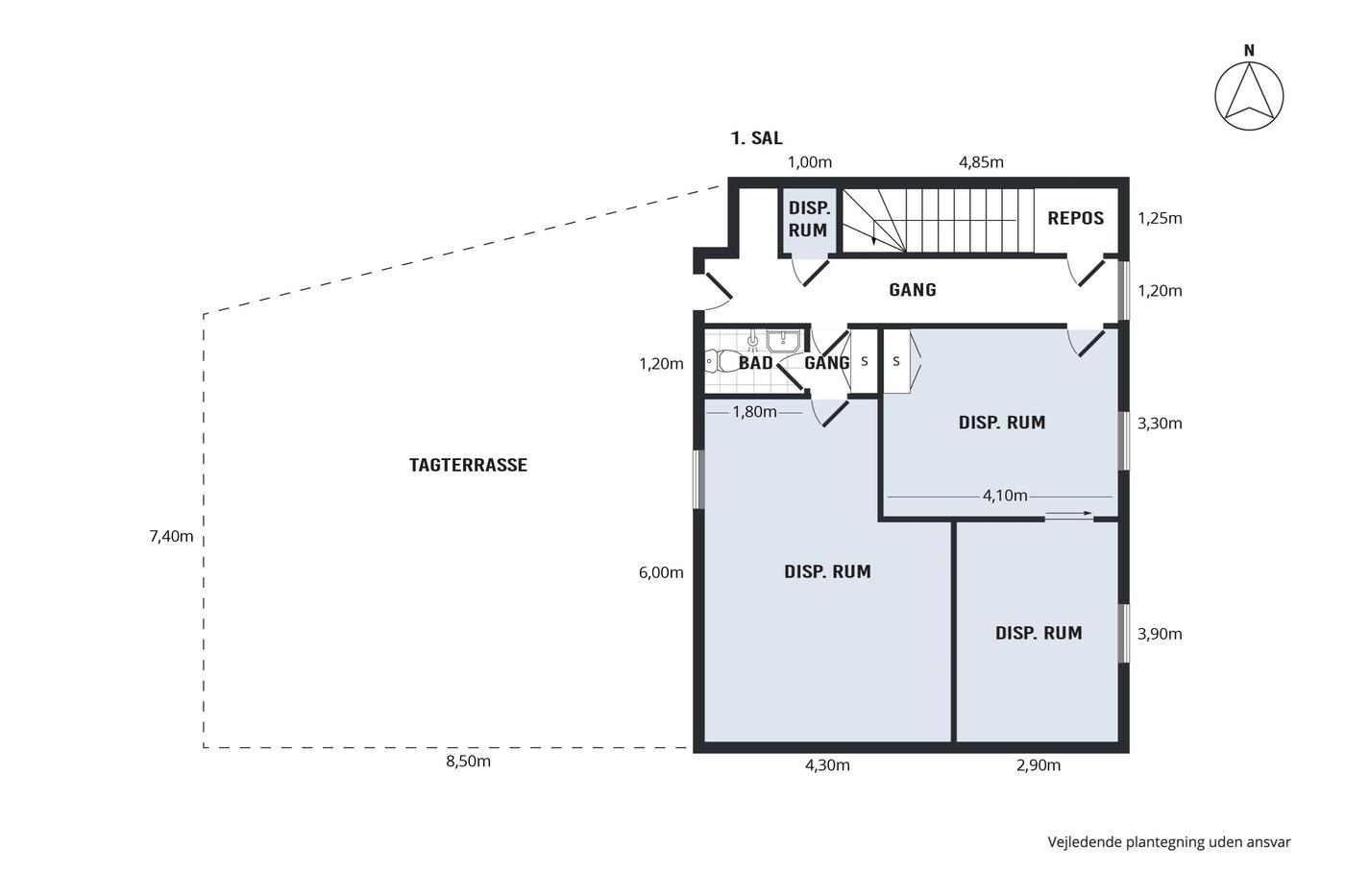
Ejendommen består af 2 erhvervslejligheder som har et samlet BBR areal på 340 m² og er lagt sammen til en stor restaurant. I stueplan er der stort restaurationslokale med toiletter og velindrettet køkken. Sælger har desuden indrettet en selvstændig take-away forretning i den ene ende af ejendommen, som alene har åbent i weekenderne. Der er fra stueplan adgang til kælderen hvor der er lager, kølerum mv. Derudover er der adgang til 1. sal hvor sælger har haft kontor mv. 1. sal er på BBR registeret som beboelseslejligheder og der er adgang til taget over restauranten hvor der evt. kan etableres en tagterrasse.

Nagelfast inventar samt maskiner mv. i køkken medfølger i handlen.

Der desuden 2 ejerlejligheder på ialt 107 m². De 2 lejligheder er lagt sammen, således de består af et samlet lokale samt et mindre toilet. Køber må påregne renovering af lokaler til fremtidigt brug.

Læs mere

Denne ejendom er solgt

Vil du vide mere?

Skibbrogade 3, 2. sal, 9000 Aalborg

+4598134000

9000@nordicals.dk

Besøg vores mæglerside

Lignende ejendomme

Til top