Visionsvej 51, 3.
9000 Aalborg

Sagsnr. 4250221

Ejendomstype

Etageareal

Energiklasse

664 m²

A2010

Årlig leje

Leje pr. m²

Depositum

Årlig driftsudgift

Årlig driftsudgift pr. m²

730.400 kr.

1.100 kr.

365.200 kr.

175.500 kr.

264 kr.

Kontorlejemål i Vinkelhuset

For C.W. Obel Ejendomme udbyder vi nu sjælden mulighed for at blive en del af fællesskabet i Visionshuset på en af Aalborgs absolut mest synlige beliggenheder på hjørnet af Sønderbro og Østre Alle, ved indfaldsvejen fra motorvej E45 ind mod centrum af Aalborg.

Visionshuset er et af områdets store og markante flerbrugerkontorhuse.

Visionshuset er opført i 2011/2012, og leverer således stadig på alle områder tidssvarende og moderne kontorlejemål til sine brugere. Visionshuset er på ca. 12.000 m² og tegnet som et "H", og bygget i eksklusive materialer med flot og kreativ arkitektur med den nyeste teknik indenfor indeklima og materialevalg. Visionshuset er et flerbrugerhus med fælles lækker kantine og mødefaciliteter.

Visionshuset er en DGNB sølvcertificeret ejendom, som sikrer at bygningen er energieffektiv, hvilke giver lavere driftsomkostninger over tid. Ligesom det bidrager til sunde og behagelige indeklimaforhold.

Virksomhederne i Visionshuset er BDO Statsautoriseret Revisionsselskab, COWI og it's IT. Og så rummer Visionshuset også et moderne fitnesscenter, idet PureGym også er lejer i huset.

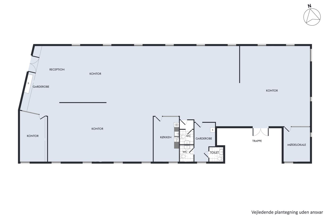
Lejemålet udgør i alt 664 m² moderne kontorfaciliteter. Ejendommen er udstyret med fuld køl-/klimaanlæg og elevator. Lejemålet er i dag indrettet som et stort åbent kontorlejemål og p.t. indrettet med 3 større kontorlandskaber. Lejemålet har plads til ca. 45 medarbejdere.

Lejemålet indeholder endvidere et internt mødelokale, et chefkontor, og et mindre the-køkken samt 3 toiletter.

Virksomhederne, der har til huse i Visionshuset, deler fælles foyer, kantine med plads til ca. 200 spisende, og et seminarrum med plads til ca. 90 personer samt 9 stk. møderum med AV-udstyr i varierende størrelser. Booking af møderum fungerer via mødebooking-system. Som lejer har man således adgang til fællesfaciliteter af høje standarder.

Til lejemålet kan der medlejes P-pladser (forventelig 13 stk.) - forhør nærmere herom hos Nordicals Aalborg.

Eternitten er blandt Aalborg mest attraktive områder at placere sit kontordomicil i, dette skyldes blandt andet den lette tilgang til området, gode parkeringsmuligheder og særdeles gode indkøbsmuligheder i de omkringliggende dagligvareforretninger.

Der er mulighed for medleje depotrum i kælderen efter nærmere aftale.

Læs mere

Vil du vide mere?

Mattias Manstrup

mam@nordicals.dk

+4524285101

Skibbrogade 3, 2. sal, 9000 Aalborg

+4598134000

9000@nordicals.dk

Besøg vores mæglerside

Lignende ejendomme

Til top