Karlskogavej 10
9200 Aalborg SV

Sagsnr. 4181043

Ejendomstype

Etageareal

Grund

192 m²

2.497 m²

Præsentable og velbeliggende kontorlokaler udlejes

Veldisponerede kontorlokaler, beliggende i attraktivt erhvervskvarter tæt ved motorvejstil- og frakørsel samt med let adgang til Aalborg C, udlejes. Lokalerne fremstår i meget pæn og velholdt stand såvel indvendigt som udvendigt.

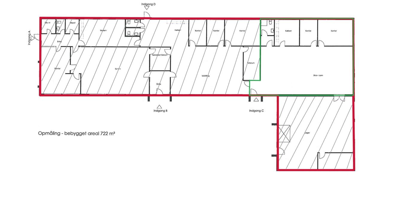
Lejemålet er på 192 m² og består af åbent kontorlandskab, 2 stk. cellekontorer, køkken og toilet med brus.

Gulve er belagt med sorte gulvtæpper og vægge og lofter hvidmalede. Der er installeret ventilation i lejemålet samt IT kabling.

Lejemålet er velegnet til mange former for handels/IT virksomhed /liberalt erhverv mv.

Ejendommens udenomsarealer er udlagt til tilkørsels- og parkeringsarealer. Der medfølger 5 p-pladser til lejemålet.

Der henvises i øvrigt til tegning bagerst i materialet.

Lejemålet er beliggende i det attraktive erhvervsområde omkring Skelagervej/Sofiendalsvej, hvor bl.a. NEAS Energy, Telenor, Deloitte, VELA A/S, Rumas A/S, Privathospitalet Aleris/Hamlet, Spar Nord Bank A/S samt mange forskellige uddannelsesinstitutioner har domiciler og lejemål.

Infrastruktur:
Afstand til Aalborg Lufthavn 10 km (fra centrum 6 km)
Afstand til motorvejsnettet 1,6 km
Afstand til banegården/Aalborg Busterminal 2,5 km
Der er busstoppested tæt ved lejemålet

Aalborg er en by i Region Nordjylland, der med 112.194 indbyggere (2016) i byområdet (134.672 indbyggere (2016) inkl. Nørresundby) er Danmarks fjerdestørste by. Aalborg er Byregion Aalborgs hovedby og betegnes som værende Nordjyllands hovedstad.

Læs mere

Denne ejendom er udlejet

Vil du vide mere?

Skibbrogade 3, 2. sal, 9000 Aalborg

+4598134000

9000@nordicals.dk

Besøg vores mæglerside

Lignende ejendomme

Til top