Nibevej 20A
9200 Aalborg SV

Sagsnr. 2220909

Ejendomstype

Etageareal

Grund

Energiklasse

255 m²

3.023 m²

C

Markant butikslejemål med attraktiv beliggenhed i City Syd

Markant butikslejemål attraktivt beliggende med bred synlig facade ud mod den trafikerede Nibevej i City Syd.

Naboer til lejemålet er Fri Bikeshop, Eventyrsport, Mentech og Lindebjerg og direkte overfor er indkørslen til Bilka, Jysk, Bone´s og Aalborg Storcenter m.fl.

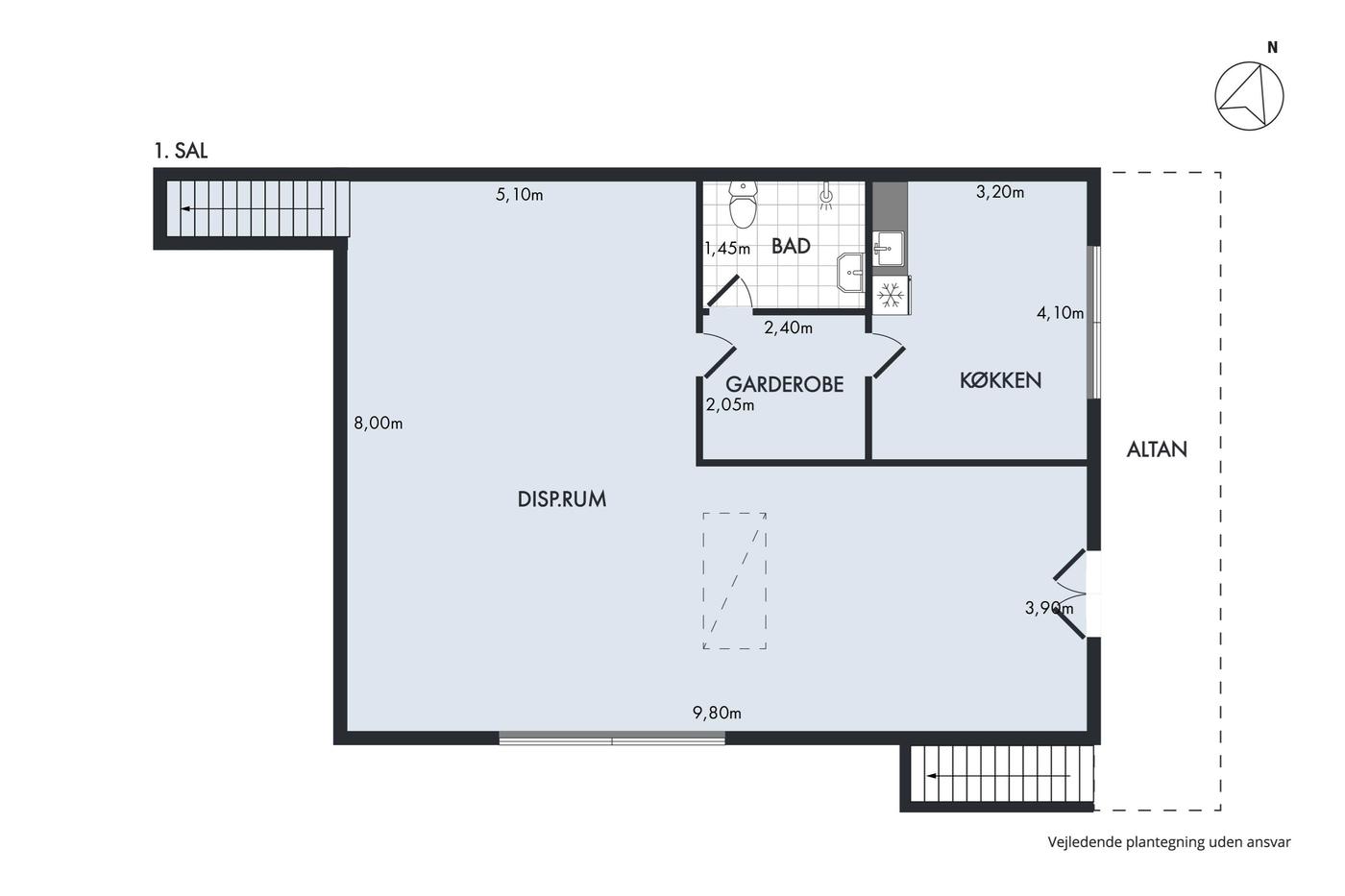
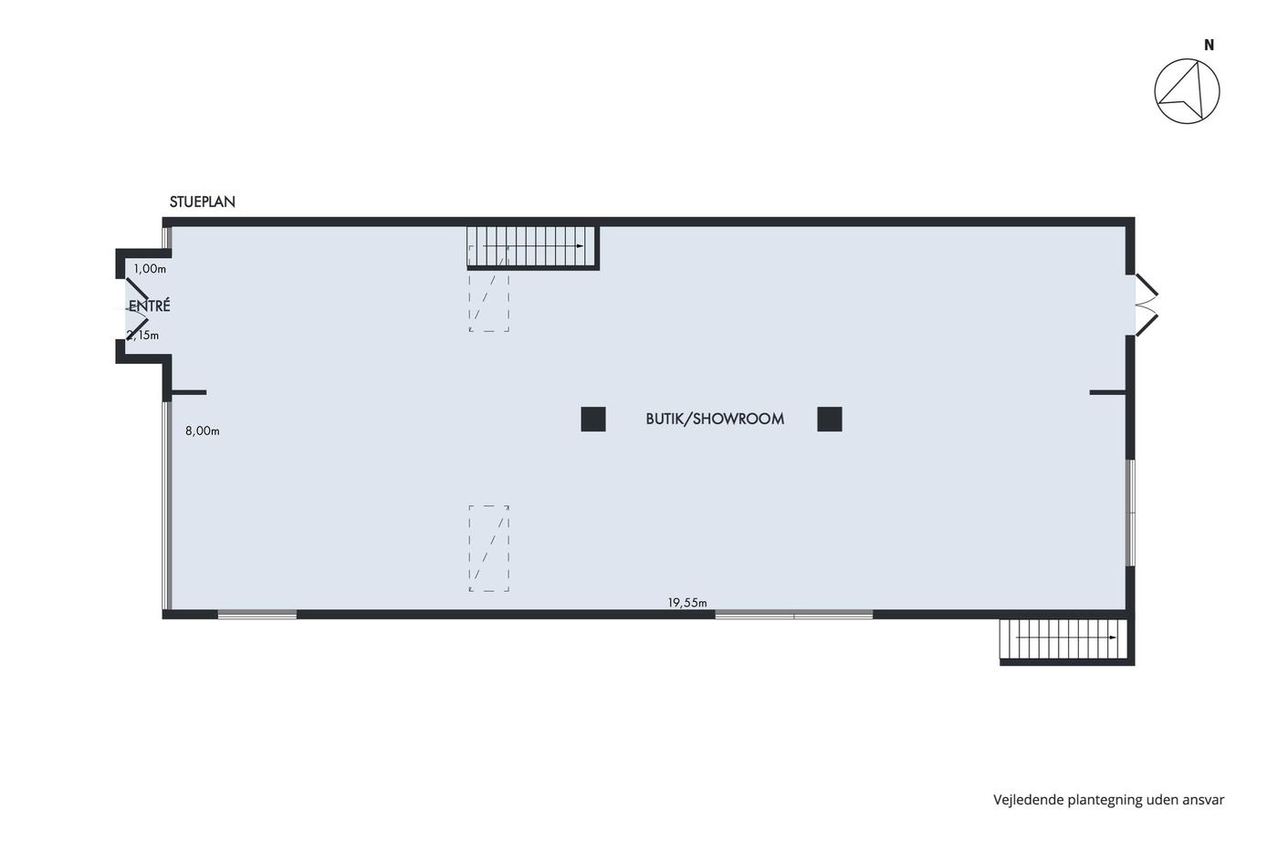
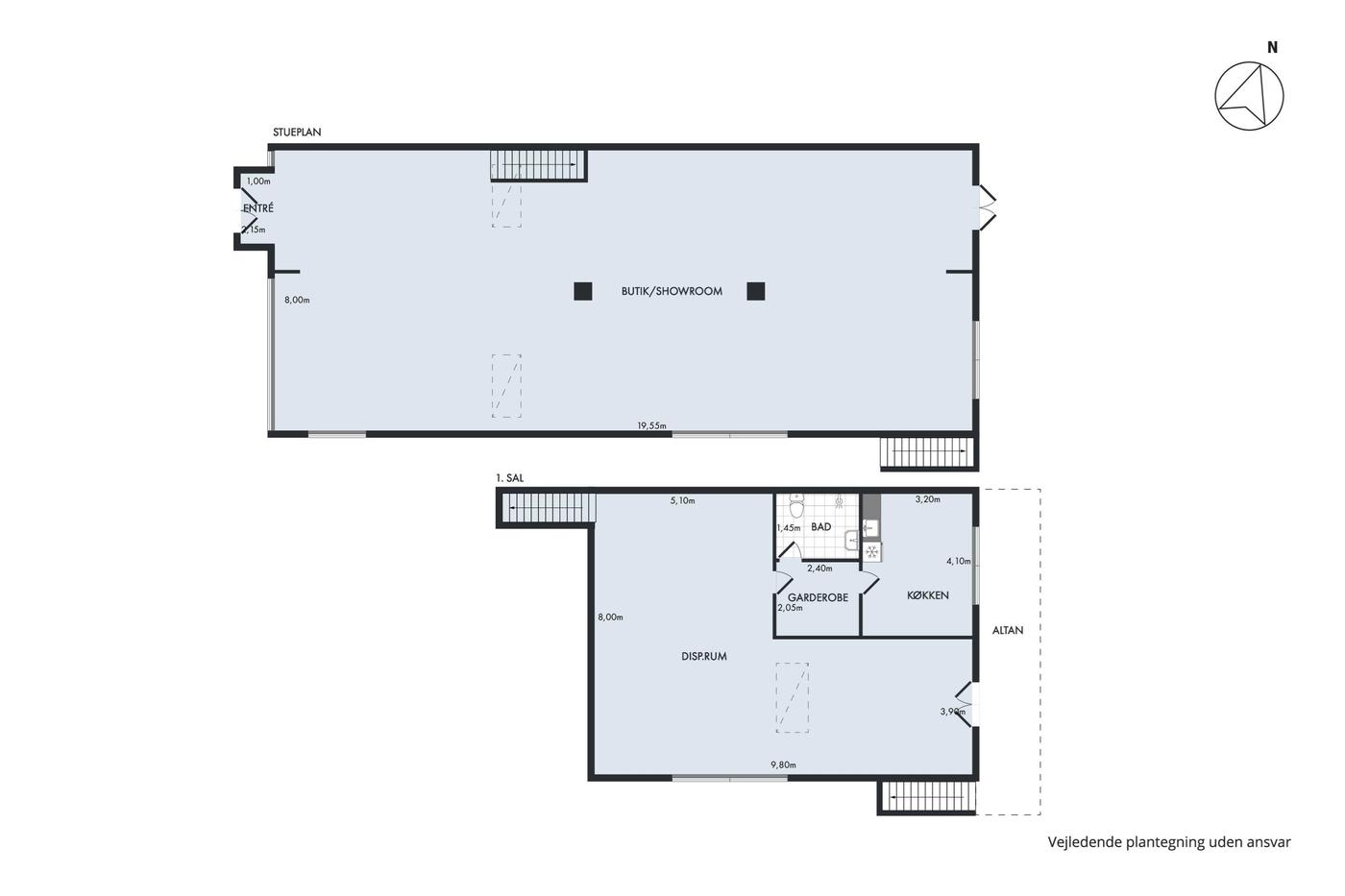
Lejemålet er indrettet med højloftet lyst indbydende butikslokale med store udstillingsvinduer og bred trappe til 1. sal som ligeledes er velegnet til butik/showroom. På 1. sal er der desuden toilet med bruser og køkken/personalerum. Butikslokalet er forsynet med god fast grundbelysning.

Lejemålet har indkørsel direkte fra Nibevej til den store fælles parkeringsplads, således der er gode forhold til parkering og levering af varer.

Desuden er der foran lejemålet et bredt areal som er meget velegnet til udstilling.

Et lyst butikslejemål med mange anvendelsesmuligheder.

Infrastruktur, afstand til:
Aalborg Lufthavn 12 km
Motorvejsnettet 3,3 km
Busstoppested 0,2 km
Indkøb 0,3 km

Læs mere

Denne ejendom er udlejet

Vil du vide mere?

Skibbrogade 3, 2. sal, 9000 Aalborg

+4598134000

9000@nordicals.dk

Besøg vores mæglerside

Lignende ejendomme

Til top