Vandmanden 18B
9200 Aalborg SV

Sagsnr. 1180203

Ejendomstype

Etageareal

Grund

Energiklasse

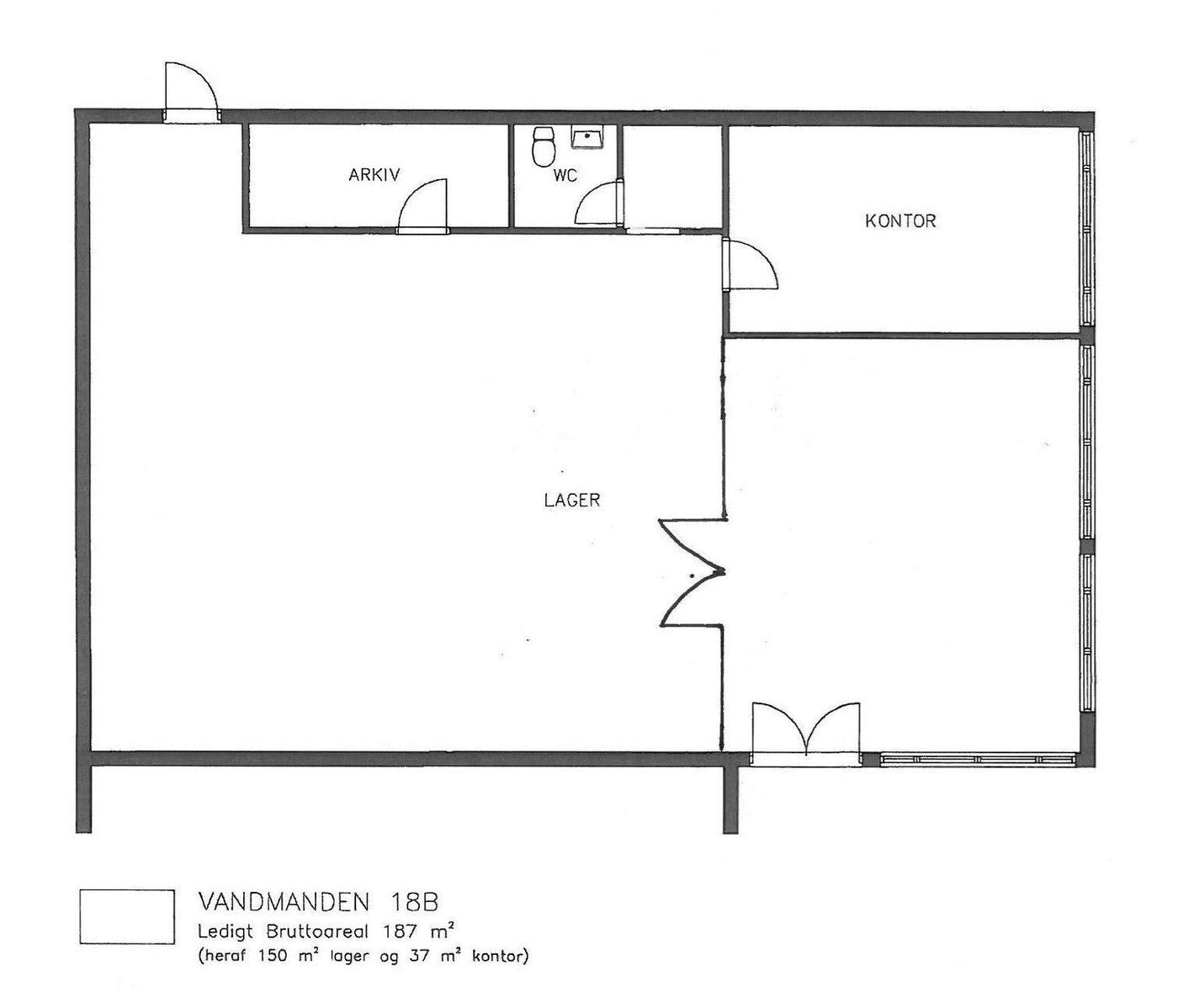
187 m²

11.955 m²

B

Centralt beliggende i City Syd

Velbeliggende lagerlokaler med mindre kontorafsnit i markant erhvervsejendom i City Syd, lige overfor Aalborg Storcenter og Shoppen, udlejes på fordelagtige vilkår.

Der er tale om gode lagerlokaler på 150 m² samt kontorlokaler (incl toilet og badefaciliteter og depot) på 37 m². Der henvises til tegning i nærværende materiale. En del af lagerlokalerne vil kunne anvendes til kontorlokaler.

Lejemålet er beliggende i markant og flot ejendom som er opført i 1990. Hele ejendomskomplekset er løbende vedligeholdt, således alle lejemål i ejendommen i dag fremstår pæne og velholdte. Bygningen er opført i stålprofilplader samt mursten, som efterfølgende er vandskuret og malerbehandlet.

Der er gode parkeringsfaciliteter lige uden for lejemålet, som er fælles med ejendommens øvrige lejere.

Der er tale en unik mulighed for at leje lager- og kontorlokaler på attraktivt sted i City Syd.

Læs mere

Denne ejendom er udlejet

Vil du vide mere?

Skibbrogade 3, 2. sal, 9000 Aalborg

+4598134000

9000@nordicals.dk

Besøg vores mæglerside

Lignende ejendomme

Til top