Fredrik Bajers Vej 3B
9220 Aalborg Øst

Sagsnr. 4250701

Ejendomstype

Etageareal

Grund

Energiklasse

3.364 m²

2.531 m²

A2010

Kontantpris

Købspris pr. m²

Årlig driftsudgift

Årlig driftsudgift pr. m²

51.000.000 kr.

15.161 kr.

275.084 kr.

82 kr.

Domicilejendom til laboratorievirksomhed sælges

Ejendommen udbydes som domicilejendom indrettet til laboratorievirksomhed til salg for Freja Ejendomme, statens ejendomsselskab, og ejendommen kan ligeledes lejes. Forhør nærmere om muligheder for leje ved kontakt til Nordicals Aalborg.

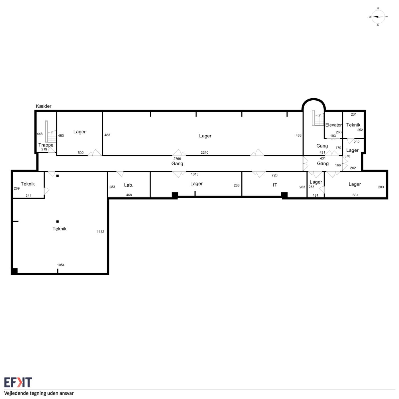
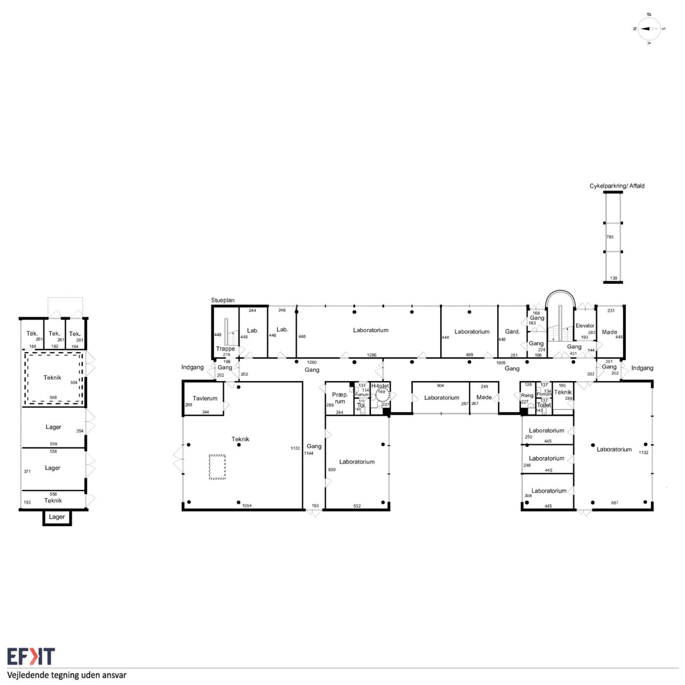
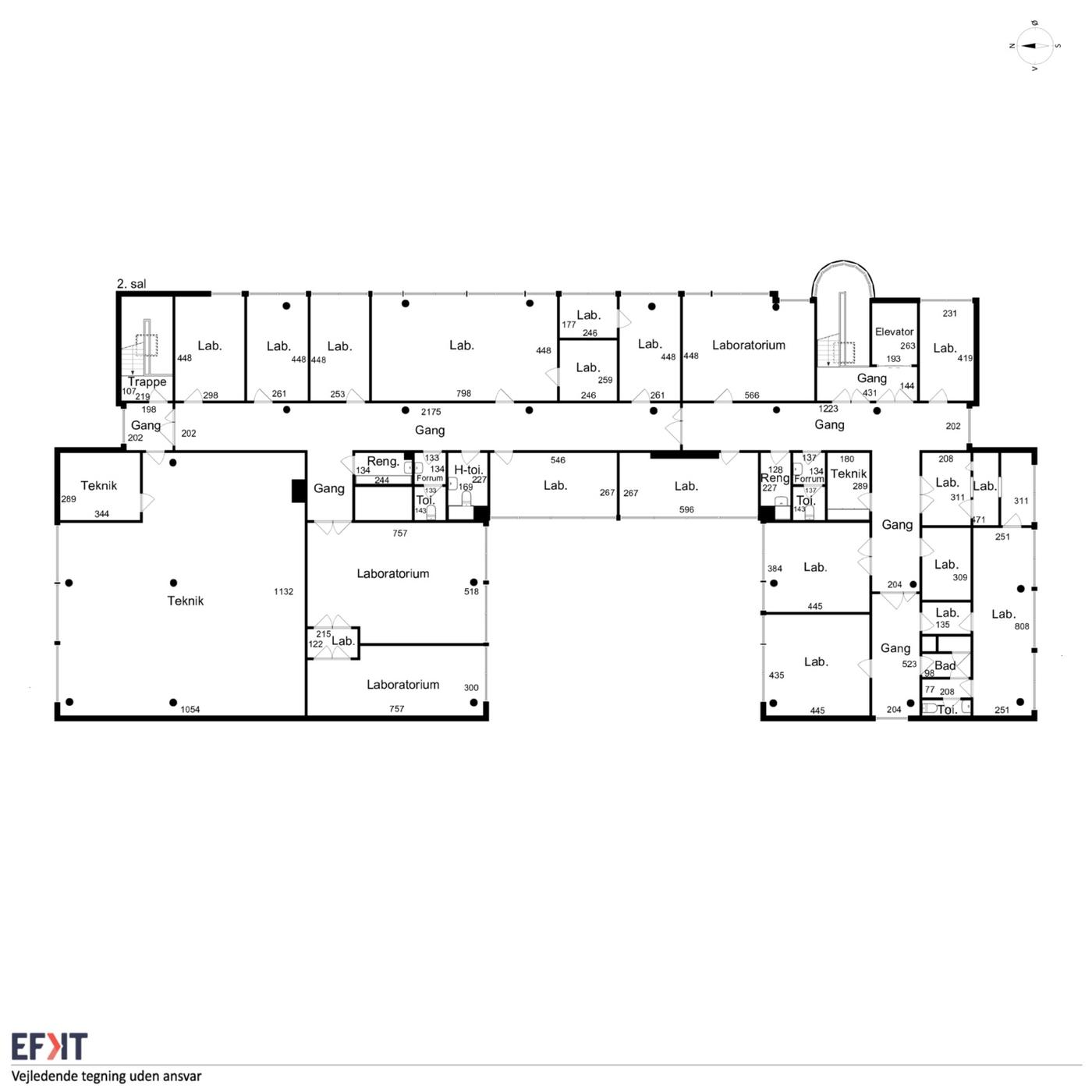
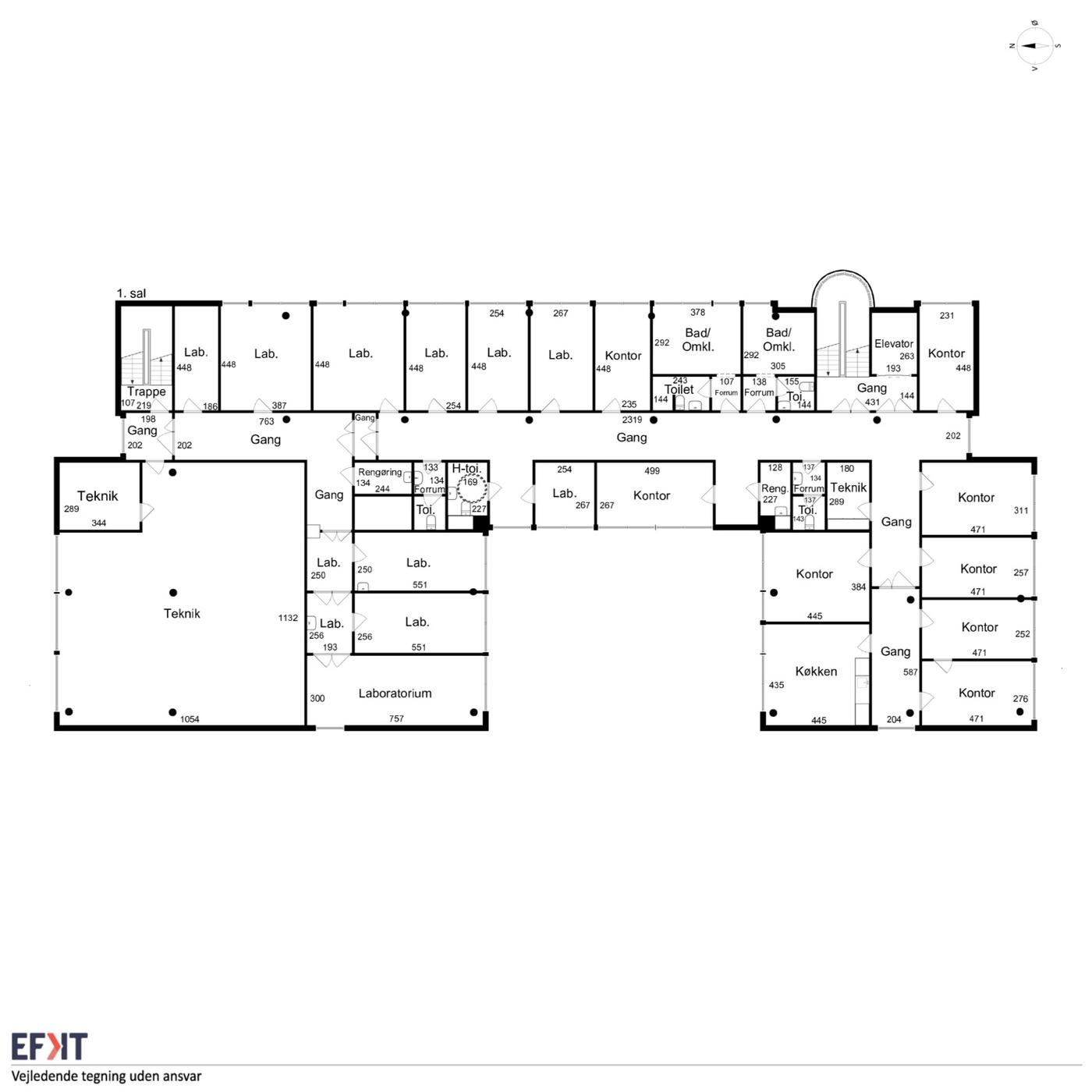
Ejendommen på 2.575 m² er indrettet i 3 fulde etageplan med ca. 858 m² pr. etage samt med fuld anvendelig og højloftet underetage (kælder) på yderligere 649 m². Ejendommens etager forbindes med trappetårne i både ejendommens sydlige og nordlige ende, ligesom ejendommen er udstyret med stor elevator fra kælder til øverste etage.

Ejendommen fremstår i særdeles velholdt og funktionsdygtig stand specialapteret til laboratoriebrug. Ejendommen er beliggende midt i Aalborgs absolutte centrum for videnskab og forskning i Aalborg Universitets campusområde tæt ved det nye Universitetshospital og NOVI Science & Businesspark.

Ejendommen er som nævnt hidtil anvendt til bioteknisk laboratorium til Aalborg Universitet, og ejendommen er indrettet med laboratorie- og forskningsmiljø med rumopdeling og laboratorier i varierende størrelser. Ejendommens kælder er indrettet til lagerbrug. Der henvises til plantegninger i nærværende salgsopstilling.

Aalborg Universitet anvendte bygningen til laboratorium for stamcelleforskning og immunologi, neurobiologisk forskning, samt laboratorie for medicinsk mikrobiologisk patogenese.

Ejendommen er teknisk særdeles godt apteret til laboratorie med punktudsugning, ventilationsanlæg, antistatisk gulvbelægning og inventar, der gør ejendommen ideel til fortsat brug som laboratorie.

For supplerende informationer om tekniske installationer, kontakt venligst Nordicals Aalborg.

Forhør nærmere om parkeringsmuligheder ved ejendommen, og se nedenfor.

Campusområdets karakteristiske netværk af byrum, opholds- og friarealer med gader, strøg, pladser og lignende, der omgiver og forbinder bebyggelsen, skal udgøre et samlende element og medvirke til en god helhedsoplevelse og skala.

Freja Ejendomme A/S sælger ejendommen med fuld ansvarsfraskrivelsesklausul og med forbehold for godkendelse af bestyrelsen i Freja Ejendomme A/S.

Læs mere

Vil du vide mere?

Mattias Manstrup

mam@nordicals.dk

+4524285101

Skibbrogade 3, 2. sal, 9000 Aalborg

+4598134000

9000@nordicals.dk

Besøg vores mæglerside

Lignende ejendomme

Til top