Skjernvej 4A
9220 Aalborg Øst

Sagsnr. 4241209

Ejendomstype

Etageareal

4.359 m²

Årlig leje

Leje pr. m²

Depositum

Årlig driftsudgift

Årlig driftsudgift pr. m²

3.888.500 kr.

892 kr.

1.944.250 kr.

112.468 kr.

26 kr.

Kontor- /undervisningslokaler udlejes

Attraktiv kontor-/undervisningsejendom, med muligheder for sektionering og opdeling i mindre enheder, udbydes til leje efter nærmere aftale, idet nuværende lejer Aalborg Universitet ønsker at samle sine aktiviteter i campusområdet ved AAU.

Ejendommen har en særdeles god og synlig beliggenhed i et af Aalborgs spændende erhvervskvarterer tæt ved netop Aalborg Universitet og nær motorvej E45 til- og frakørslen. Dette giver ejendommens kommende medarbejdere en daglig tidsbesparelse, idet det er nemt og enkelt at komme til og fra job med den motorvejsnære beliggenhed. I øjeblikket oplever netop dette område en spændende udvikling og transformation, hvor større virksomheder etablerer sig i området netop grundet den optimale logistik og adgangen til gode parkeringsmuligheder for medarbejderne.

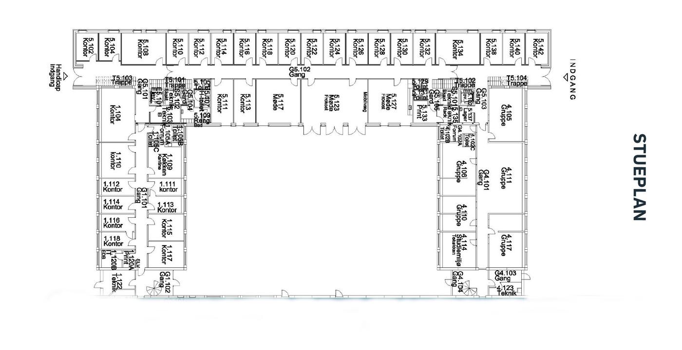
Ejendommen er fleksibel at indrette til den kommende lejers behov, idet ejendommens kontorafsnit er indrettet med lette vægge og konstruktioner, som dermed åbner op for mange forskellige muligheder for indretning i åbne, dynamiske og fleksible arbejdsmiljøer, men også med muligheder for mere traditionel kontorindretning med cellekontorer i varierende størrelser og møderum mv. En del af ejendommen er udlejet. Restarealet andrager erhvervsareal på 4.359 m² heraf 3.612 m² disponeret til kontor. Der er desuden 747 m² underetage/parterre, der i dag er indrettet med to større auditorier og 6 toiletter samt diverse laboratorierum og depotrum.

Denne del af ejendommen vil i fremtiden ideelt set kunne ombygges og anvendes til kantineområde og personalefaciliteter i øvrigt efter nærmere aftale med udlejer.

Der er som før nævnt gode muligheder for sektionering af ejendommen, såfremt man alene ønsker at leje en mindre del af kontorbygningen. Forhør nærmere om muligheden herfor.

Ejendommens kontorafsnit er indrettet i 3 etager med lange fordelingsgange med adgang til små cellekontorer og møderum mv. Der er endvidere indrettet kaffeøer, undervisningslokaler, kontorområder i varierende størrelser og ejendommen er forsynet med yderligere 20 toiletkerner udover dem, der allerede er etableret i ejendommen kælder. Adgang og færdsel imellem de 3 etager foregår med trappekerner og elevatorer i begge ender af bygningen, hvilket giver et godt og stabilt flow i ejendommen.

Ejendommen kan i forbindelse med genudlejningen indrettes efter nærmere aftale med udlejer.

Nærværende lejemål er opført i 2007 som en udvidelse til den eksisterende del af ejendommen opført i 2000. Ejendommen er opført i kvalitetsmaterialer med minimal vedligeholdelse i hvide betonelementer og med tagkonstruktion i built up (fladt tag) belagt med tagpap. Ejendommens vinduer er koksgrå plasticvinduesrammer med termoruder isat.

Ejendommens udvendige områder er befæstet og indrettet med i alt 95 parkeringspladser på terræn, heraf med 7 parkeringspladser bag ejendommen. Til nærværende lejemål medfølger en eksklusiv brugsret til 90 parkeringspladser i tidsrummet fra kl. 08.00 - 16.00. Efter kl. 16.00 deles det samlede parkeringsareal på ejendommen med nabolejemålet.

Ejendommens befæstede arealer omkranses af grønne beplantningsområder mv.

Forhør nærmere hos Nordicals Aalborg for mulighed for køb af ejendommen.

Infrastruktur, afstand til:
Aalborg Lufthavn 11,7 km
Motorvejsnettet 1 km
Banegården / Aalborg Busterminal 5 km
Busstoppested 0,4 km

Læs mere

Vil du vide mere?

Mattias Manstrup

mam@nordicals.dk

+4524285101

Skibbrogade 3, 2. sal, 9000 Aalborg

+4598134000

9000@nordicals.dk

Besøg vores mæglerside

Lignende ejendomme

Til top