Vardevej 1
9220 Aalborg Øst

Sagsnr. 1240812

Ejendomstype

Etageareal

Energiklasse

977 m²

E

Årlig leje

Leje pr. m²

Depositum

Årlig driftsudgift

Årlig driftsudgift pr. m²

341.950 kr.

350 kr.

170.975 kr.

29.216 kr.

30 kr.

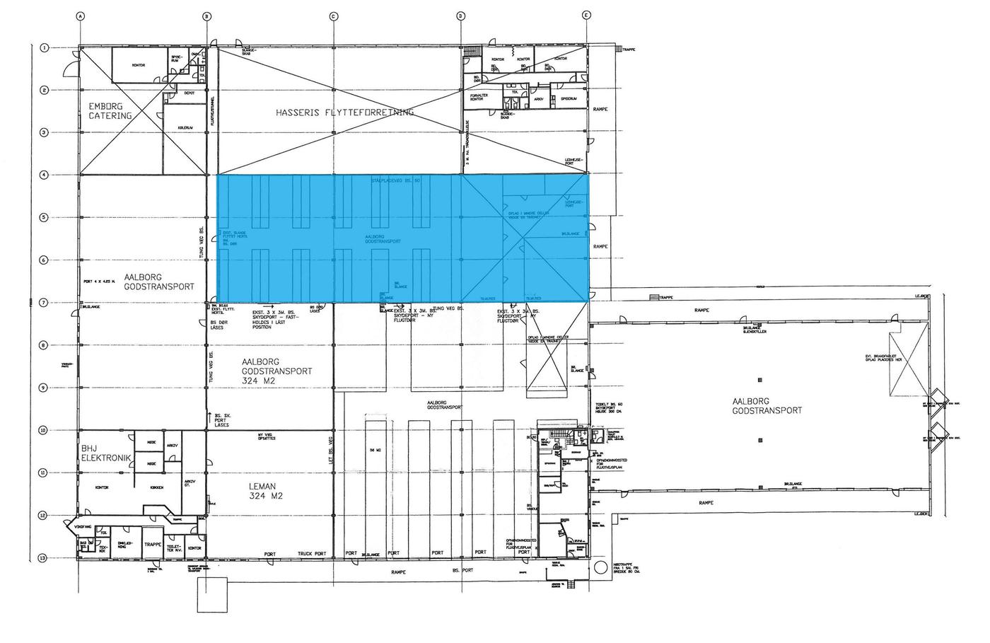
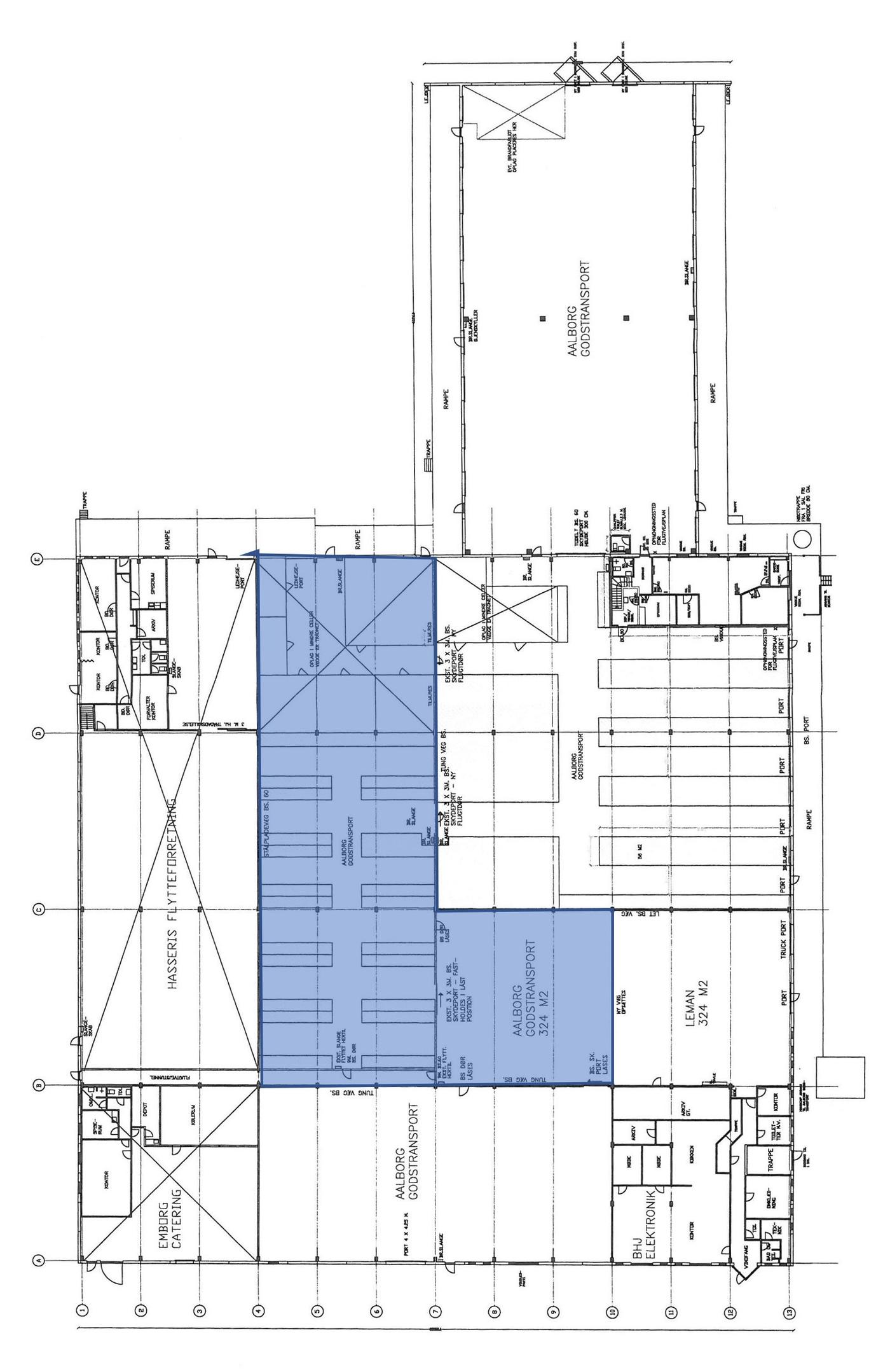
Veldisponeret lager- og logistikejendom i Aalborg Øst

Veldisponeret lager lejemål med god loftshøjde beliggende i veludbygget erhvervsområde i Aalborg Øst.

Området er et af Aalborgs mest attraktive erhvervskvarterer med god logistik og let adgang til motorvejsnettet samt kort afstand til Port of Aalborg.

Lager-/logistikhal med rampeanlæg på 1.301 m² er indrettet med distributionsafsnit med en loftshøjde på ca. 6 meter. Det er muligt at leje yderlige lager i ejendommen på ca. 2.000 m², da sammenhængende nabo lejemål er ledigt.

Ejendommen, hvori lejemålet er beliggende, er opført i 1976 og er væsentlig om- og tilbygget i 2007. Bygningen er opført med søjle-/drager- og spærkonstruktion i beton med ydervægge i grå betonelementer og anvendes i dag til logistik- og lagervirksomhed.

Ejendommens udenomsarealer er befæstet med SF sten og er udlagt til til-/ og frakørselsanlæg samt parkeringsfaciliteter. Grundarealet er indhegnet med 2 indkørsler med portadgang.

Bygningen, der fremtræder i velholdt stand og med fleksibel indretning, har mange anvendelsesmuligheder.

Infrastruktur, afstand til:
Aalborg Lufthavn 12,1 km
Motorvejsnettet 1,5 km
Banegården / Aalborg Busterminal 5,4 km
Busstoppested 0,1 km


Nøgletal om Aalborg og Aalborg Kommune
221.000 indbyggere i 2022
35.000 flere indbyggere de sidste 30 år
43% stigning i antallet af indbyggere imellem 20-24 år
12.000 flere udenlandske statsborgere (ca. 3.700 internationale studerende)
Ca. 2.500 nye indbyggere pr. år
Aalborg er vokset med ca. 15% siden 2010, imens Aalborg Kommune er vokset i samme periode med ca. 10%
115.500 arbejdspladser
9.945 virksomheder - ultimo 2021 (ca. 11.000 internationale medarbejdere)
Ca. 1.000 nye CVR numre hvert år
Ca. 16 vedtagne lokalplaner i 2022 og ca. 60 igangværende under udarbejdelse

Udlejer har ret til mellemleje.

Læs mere

Vil du vide mere?

Nikolaj Kjelder

nik@nordicals.dk

+4561365735

Skibbrogade 3, 2. sal, 9000 Aalborg

+4598134000

9000@nordicals.dk

Besøg vores mæglerside

Lignende ejendomme

Til top