Vardevej 1
9220 Aalborg Øst

Sagsnr. 1250167

Ejendomstype

Etageareal

Energiklasse

1.079 m²

E

Årlig leje

Leje pr. m²

Depositum

Årlig driftsudgift

Årlig driftsudgift pr. m²

524.200 kr.

486 kr.

262.100 kr.

53.095 kr.

49 kr.

God fordeling af lager og kontorareal

Ejendommen ligger i et attraktivt industrikvarter erhvervsområde i Aalborg Øst. Området er et af Aalborgs mest attraktive erhvervskvarterer med god logistik og let adgang til motorvejsnettet samt kort afstand til Aalborg Havn.

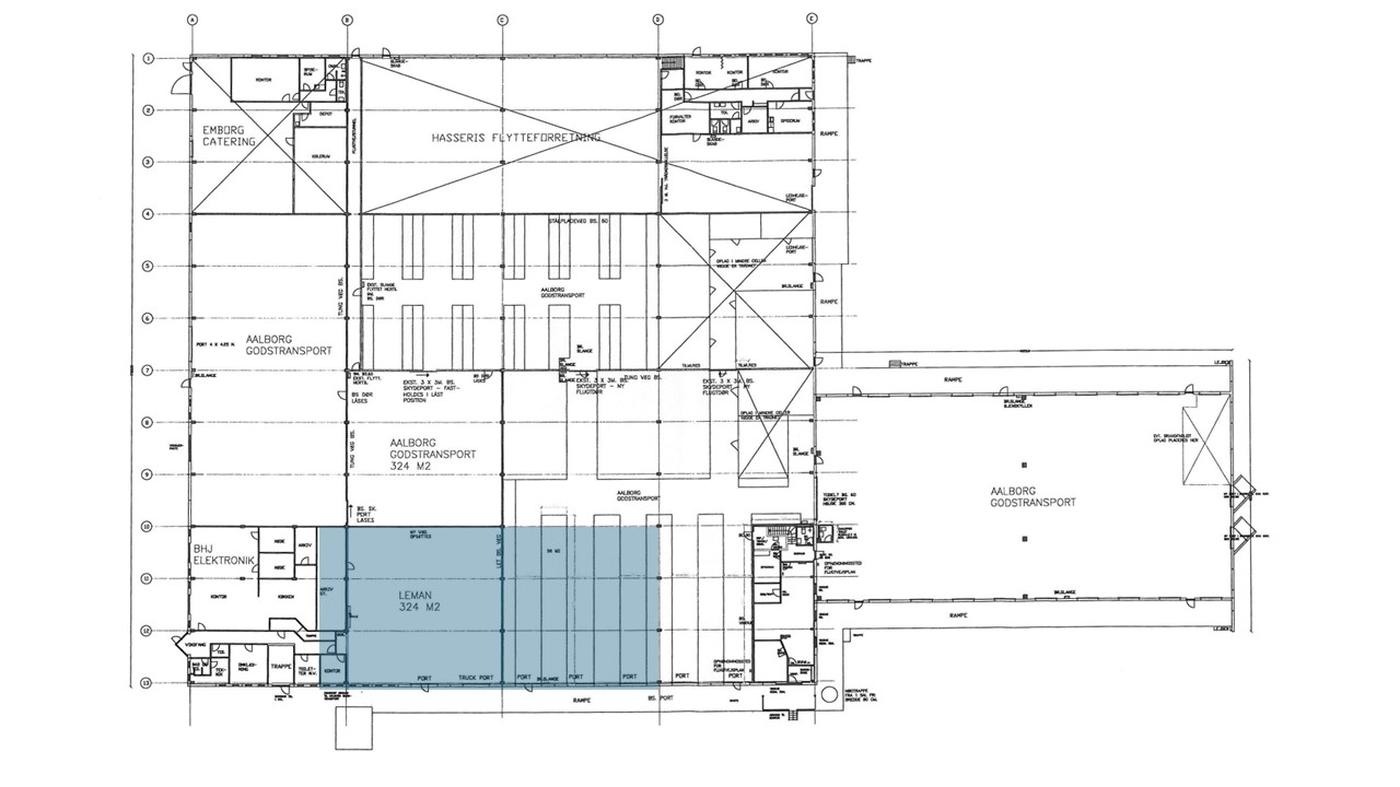
Ejendommen har senest været udlejet til LEMAN, og fremstår ideel til transportvirksomheder. Lejemålet er desuden velegnet til virksomheder indenfor lager- og logistiksegmentet, men kan også modificeres til en produktionsvirksomhed. Derudover rummer ejendommen store udenomsarealer, der er velegnede til opbevaring og yderligere udendørs aktiviteter.

Lejemålet rummer i alt 1.079 m², og består af et regulært lagerafsnit på 687 m² (og 11 m² værkførerkontor) med adgang via rampe. I nabobygningen er der 381 m² kontorafsnit, som er indrettet med reception, storrumskontor, mindre kontor, arkiv, køkken/kantine og velfærdsfaciliteter. Der forefinde også gode parkeringsforhold, hvilket gør det bekvemt for både medarbejdere, leverandører og kunder at besøge virksomheden.

Ejendommens udenomsarealer er befæstet med SF sten og er udlagt til til-/ og frakørselsanlæg samt parkeringsfaciliteter. Grundarealet er indhegnet med 2 indkørsler med portadgang.

Det vil være muligt at medleje yderligere arealer i ejendommen herunder både lager, og kontorkvadratmeter. Forhør nærmere omkring dette ved Nordicals Aalborg.

Ejendommen, hvori lejemålet er beliggende, er opført i 1976 og er væsentlig om- og tilbygget i 2007. Bygningen er opført med søjle-/drager- og spærkonstruktion i beton med ydervægge i grå betonelementer.

Infrastruktur, afstand til:
Aalborg Lufthavn 12 km
Motorvejsnettet 1,5 km
Banegården / Aalborg Busterminal 5,4 km
Busstoppested 0,2 km

Læs mere

Vil du vide mere?

Nikolaj Kjelder

nik@nordicals.dk

+4561365735

Skibbrogade 3, 2. sal, 9000 Aalborg

+4598134000

9000@nordicals.dk

Besøg vores mæglerside

Lignende ejendomme

Til top