Vardevej 1
9220 Aalborg Øst

Sagsnr. 1251016

Ejendomstype

Etageareal

Grund

Energiklasse

1.158 m²

26.530 m²

E

Årlig leje

Leje pr. m²

Depositum

Årlig driftsudgift

Årlig driftsudgift pr. m²

497.700 kr.

430 kr.

248.850 kr.

56.982 kr.

49 kr.

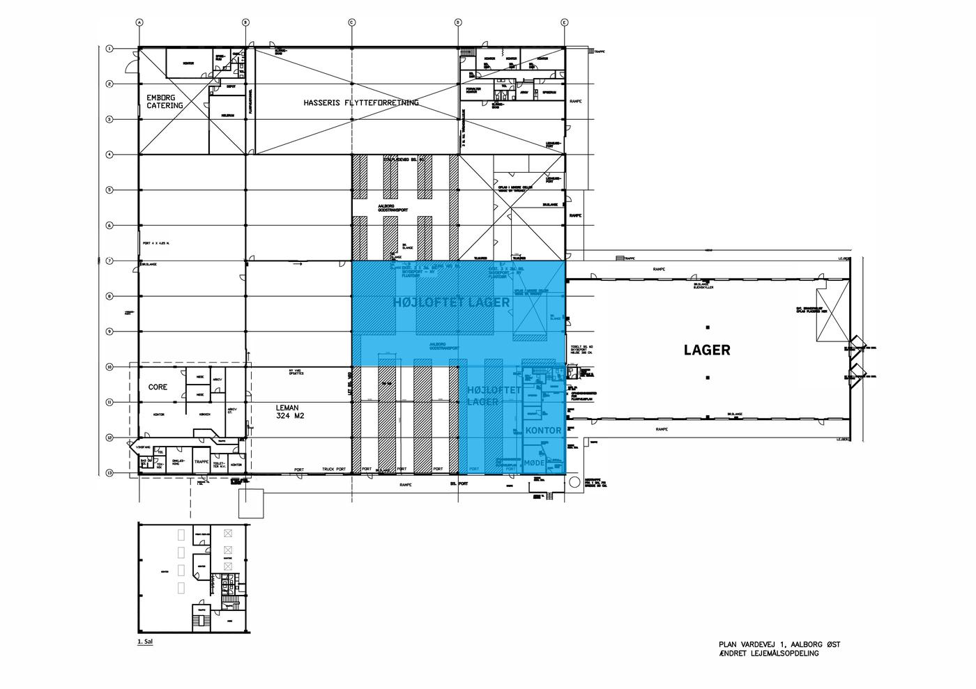
Lager- og logistiklokaler udlejes

Veldisponeret lager-, terminal- og distributionsejendom med tilhørende kontor og velfærdsfaciliteter beliggende i veludbygget erhvervsområde i Aalborg Øst. Området er et af Aalborgs mest attraktive erhvervskvarterer med god logistik og let adgang til motorvejsnettet samt kort afstand til Aalborg Havn.

Ejendommen, hvori lejemålet er beliggende, er opført i 1976 og er væsentlig om- og tilbygget i 2007. Bygningen er opført med søjle-/drager- og spærkonstruktion i beton med ydervægge i grå betonelementer og anvendes i dag til logistik- og lagervirksomhed.

Regulær lagerhal på 876 m² med en loftshøjde på 6 meter. Lejemålet er udstyret med porte med ramper, hvilket sikrer nem adgang og effektiv varehåndtering.

Kontorafsnit i 2 niveau på i alt 282 m². Stueetagen er indrettet med reception, storrumskontor, arkiv chefkontor, køkken/kantine og toilet. Førstesalen er indrettet med storrumskontor, mødelokale, og toiletfaciliteter samt omklædningsfaciliteter.

Ejendommens udenomsarealer er befæstet med SF sten og er udlagt til til-/ og frakørselsanlæg samt parkeringsfaciliteter. Grundarealet er indhegnet med 2 indkørsler med portadgang. Lejer har adgang til større udendørs grundareal til lastbiler m.v.

Lejemålet er qua sin indretning og placering nær motorvejen ideel til virksomheder indenfor lager- og distributionssegmentet.

Udlejer har ret til mellemleje.

Læs mere

Vil du vide mere?

Nikolaj Kjelder

nik@nordicals.dk

+4561365735

Skibbrogade 3, 2. sal, 9000 Aalborg

+4598134000

9000@nordicals.dk

Besøg vores mæglerside

Lignende ejendomme

Til top