Vardevej 1
9220 Aalborg Øst

Sagsnr. 1251017

Ejendomstype

Etageareal

Grund

Energiklasse

3.214 m²

26.530 m²

E

Årlig leje

Leje pr. m²

Depositum

Årlig driftsudgift

Årlig driftsudgift pr. m²

1.323.800 kr.

412 kr.

718.600 kr.

158.153 kr.

49 kr.

Markante lager- og logistiklokaler udlejes

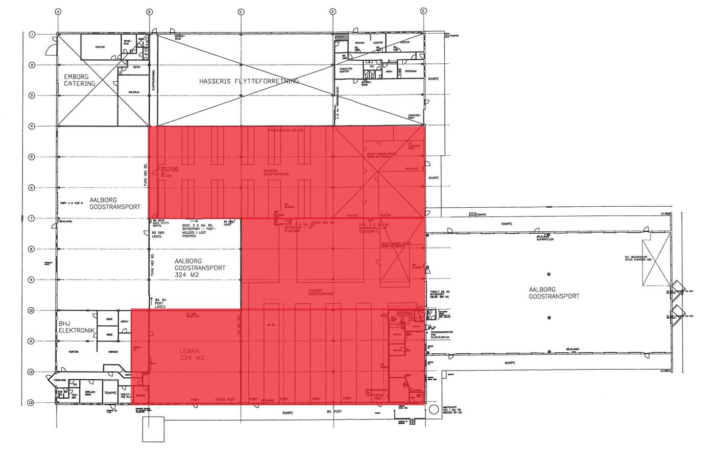
Veldisponeret lager-, terminal- og distributionsejendom med tilhørende kontor og velfærdsfaciliteter beliggende i veludbygget erhvervsområde i Aalborg Øst. Området er et af Aalborgs mest attraktive erhvervskvarterer med god logistik og let adgang til motorvejsnettet samt kort afstand til Aalborg Havn. Ejendommen, hvori lejemålet er beliggende, er opført i 1976 og er væsentlig om- og tilbygget i 2007.

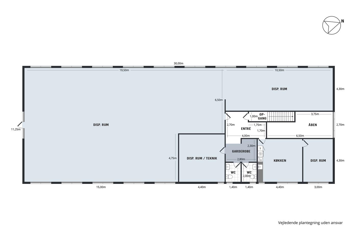
Bygningen er opført med søjle-/drager- og spærkonstruktion i beton med ydervægge i grå betonelementer og anvendes i dag til logistik- og lagervirksomhed. Lejemålet omfatter en rummelig lagerhal med en samlet størrelse på 2.540 m² og en loftshøjde til spær på 6 meter. Hallen er udstyret med porte med ramper, hvilket sikrer en effektiv logistik og optimal udnyttelse af arealet. Kontorafsnit i 2 niveau på i alt 282 m². Stueetagen er indrettet med reception, storrumskontor, arkiv chefkontor, køkken/kantine og toilet.
Førstesalen er indrettet med storrumskontor, mødelokale, og toiletfaciliteter samt omklædningsfaciliteter. Hertil er der yderligere 392 m² kontor. i stueplan, i separat bygning, som skaber god synergi mellem kontor og logistik.
Dette giver et samlet kontorareal på 674 m². Ejendommens udenomsarealer er befæstet med SF sten og er udlagt til til-/ og frakørselsanlæg samt parkeringsfaciliteter. Grundarealet er indhegnet med 2 indkørsler med portadgang. Lejer har adgang til større udendørs grundareal til lastbiler m.v. Lejemålet er qua sin indretning og placering nær motorvejen ideel til virksomheder indenfor lager- og distributionssegmentet.

Udlejer har ret til mellemleje.

Læs mere

Vil du vide mere?

Nikolaj Kjelder

nik@nordicals.dk

+4561365735

Skibbrogade 3, 2. sal, 9000 Aalborg

+4598134000

9000@nordicals.dk

Besøg vores mæglerside

Lignende ejendomme

Til top