Mosevangen 12
9230 Svenstrup J

Sagsnr. 2240206

Ejendomstype

Etageareal

Grund

Energiklasse

853 m²

3.178 m²

C

Kontantpris

Købspris pr. m²

Årlig driftsudgift

Årlig driftsudgift pr. m²

4.950.000 kr.

5.803 kr.

68.853 kr.

81 kr.

Erhvervsejendom med attraktiv og synlig placering i Svenstrup

Markant erhvervsejendom beliggende i attraktivt erhvervsområde, med kort afstand til City Syd og stor synlighed ud mod en af Aalborgs mest trafikerede indfaldsveje

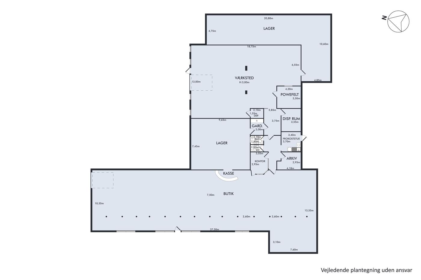
Bygningen som fremstår i en flot velvedligeholdt stand er indrettet med stort åbent og lyst showroom, som i dag bruges til salg af motorcykler og tilbehør. Showroomet er indrettet med store facadevinduer ud mod Hobrovej og har bl.a. niveaufri indgang og aluport i gavlen.

Ejendommen er om- og tilbygget i 2006.

Desuden er der værkstedslokale med aluport og olieudskiller, 2 gode lagerlokaler, kontor, velfærdsområde med toilet med bad samt køkken.

Der er gode udenomsarealer velegnet til udstilling samt opbevaring.

Ejendommen vil være velegnet til mange former for butik/showroom med tilhørende lager eller værksted.

Der er let adgang til motorvej E45 samt kort afstand til City Syd.

Kontakt Nordicals Aalborg for yderligere oplysninger..

Læs mere

Vil du vide mere?

Jens Eskildsen

jes@nordicals.dk

+4551261408

Skibbrogade 3, 2. sal, 9000 Aalborg

+4598134000

9000@nordicals.dk

Besøg vores mæglerside

Lignende ejendomme

Til top