Grønnegade 15
9300 Sæby

Sagsnr. E3396

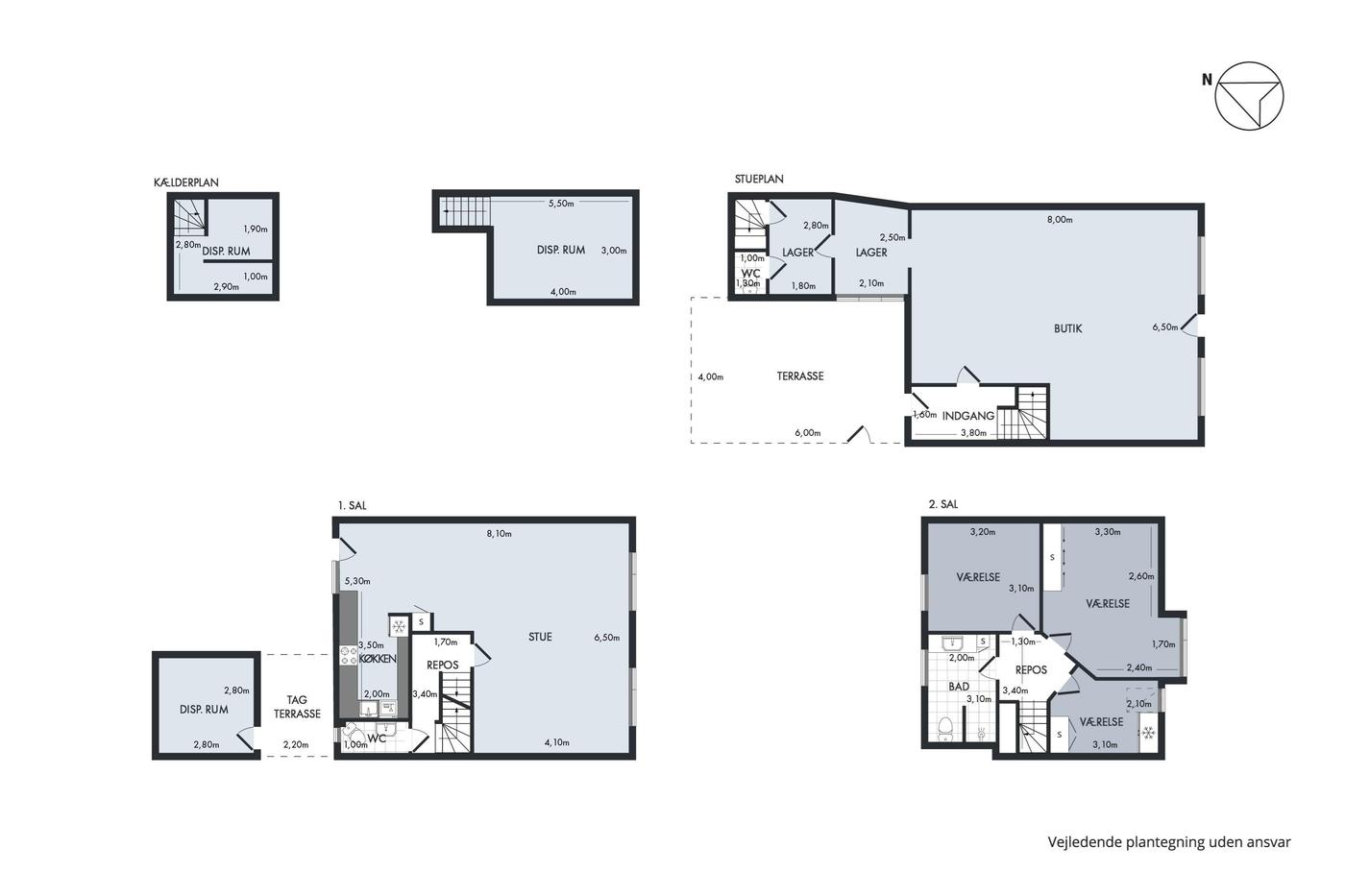
Ejendomstype

Etageareal

Grund

Energiklasse

217 m²

144 m²

D

Kontantpris

Købspris pr. m²

Afkast

Årlig lejeindtægt

Årlig lejeindtægt pr. m²

Årlig driftsudgift

Årlig driftsudgift pr. m²

1.150.000 kr.

5.300 kr.

8,85 %

128.000 kr.

590 kr.

24.709 kr.

114 kr.

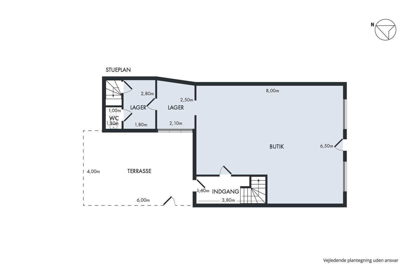
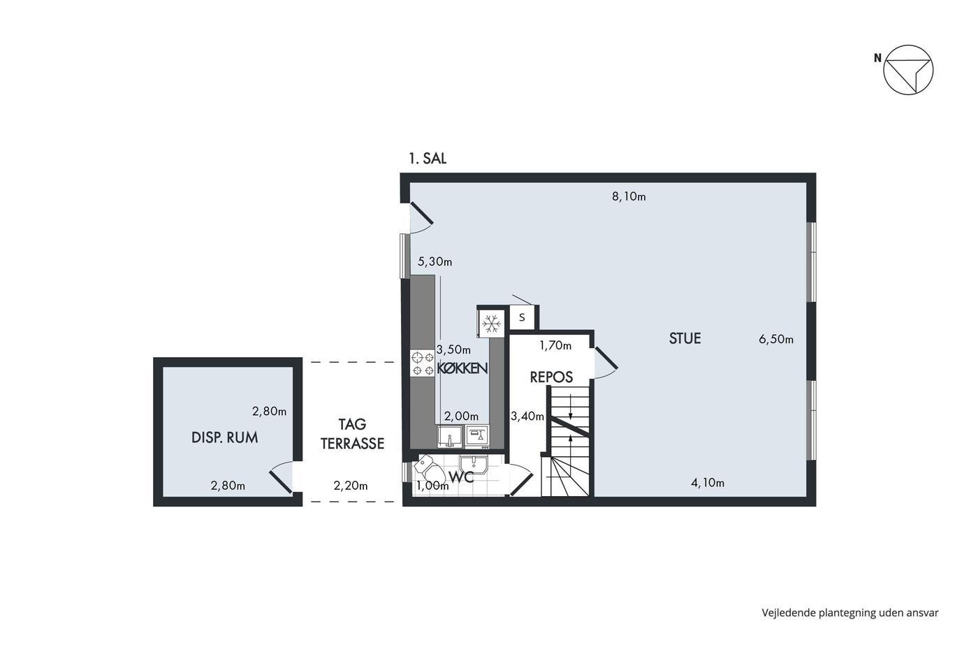
Kombineret erhverv og bolig

Investeringsejendom udbydes til salg efter princippet om SALE AND LEASE BACK. Vinspecialisten i Sæby med nuværende ejer har haft domicil på adressen siden 2005 og ønsker nu at sælge ejendommen. De er indstillet på at indgå en længerevarende lejekontrakt i forbindelse med salget.

Vilkår og betingelser for udlejning aftales nærmere med Vinspecialisten og de angivne lejeindtægter er vejledende ud fra en udbudspris på kr. 1.475.000.

Det private lejemål på 1. sal har haft samme lejer siden 2005.

Bygningen er opført 1907 og om/tilbygget i 1989. Ejendommen har iflg. BBR et erhvervsareal på 105 m2, boligareal på 112 m2 samt kælder på 20 m2. Der er tilhørende udhus på 20 m2.

Opvarmningen er fjernvarme.

Læs mere

Vil du vide mere?

Hans Skovgaard

hss@nordicals.dk

+4540284575

Midtpunkt 58, 9900 Frederikshavn

+4598426400

9900@nordicals.dk

Besøg vores mæglerside

Lignende ejendomme

Til top