Sønderskovvej 4, st.
9370 Hals

Sagsnr. 2230323

Ejendomstype

Etageareal

Energiklasse

714 m²

C

Årlig leje

Leje pr. m²

Depositum

321.300 kr.

450 kr.

160.800 kr.

Attraktiv beliggenhed tæt på Havnen i Hals

Centralt beliggende lejemål med mange muligheder

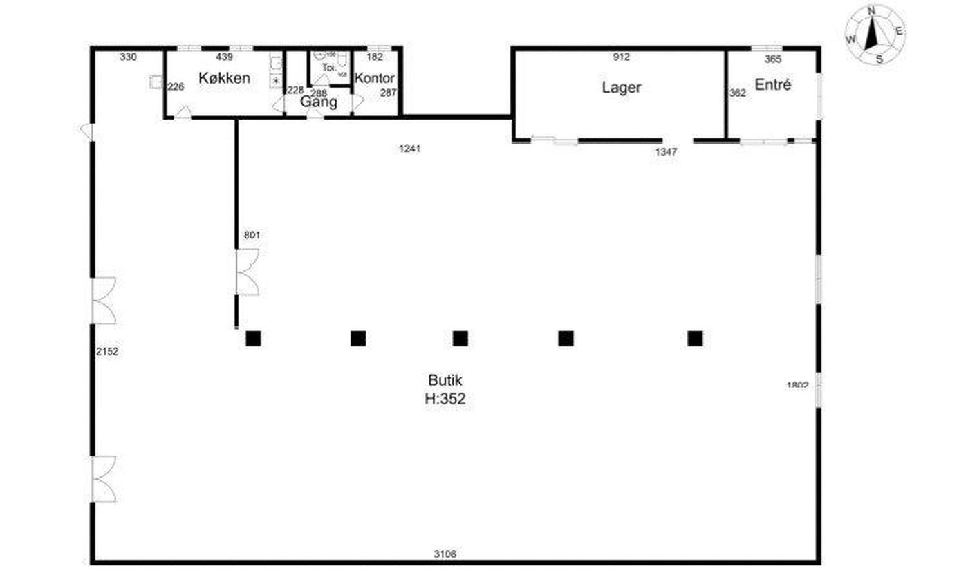
Ejendommen, der tidligere har været udlejet til dagligvarebutik, og har et tinglyst areal på 714 m². Arealet er indrettet med et stort butikslokale, mindre lagerlokaler samt velfærdsfaciliteter. På bagsiden af ejendommen findes anvendelig tilkørsel til lageret.

Ifølge gældende lokalplan for området må ejendommens anvendelse være hhv. centerformål, (detailbutikker), udvalgsvarebutikker, servicevirksomhed. Disse anvendelsesmuligheder gør det muligt at drive butik, kontor, klinik mv. Udlejer har mulighed for at udvide det eksisterende areal til i alt 1.000 kvm såfremt lejer ønsker dette. Der er ca. 40 parkeringspladser placeret rundt om ejendommen.

- Lokalplanen giver mulighed for mange anvendelsesvarianter
- Mulighed for tilbygning af eksisterende areal
- Synlig placering midt i Hals by
- Kort afstand til Hals Havn

Hals er en havne- og turistby med ca. 2.500 indbyggere (2015) 30 km øst for Aalborg. Fysisk Vision 2025 danner de overordnede visioner for den fremtidige byudvikling i Aalborg Kommune.

Der er i alt 11 oplandsbyer, som kommunen vurderer, har et særligt byudviklingspotentiale. Hals er en af dem. Formålet med byudviklingen for Hals er at definere identitet, struktur og sammenhængskraft i byen. Den nye byudviklingsplan skal sikre synergi og helhed for fremtidens initiativer i
området.

Infrastruktur, afstand til:
Aalborg Lufthavn 34,5 km
Motorvejsnettet 25,7 km
Busstoppested 200 m
Indkøb 113 m

Læs mere

Vil du vide mere?

Peter Rom Christiansen

prc@nordicals.dk

+4593395050

Skibbrogade 3, 2. sal, 9000 Aalborg

+4598134000

9000@nordicals.dk

Besøg vores mæglerside

Lignende ejendomme

Til top