Bøgildsmindevej 3, st.
9400 Nørresundby

Sagsnr. 04250935

Ejendomstype

Etageareal

Grund

Energiklasse

400 m²

19.811 m²

A2010

Årlig leje

Leje pr. m²

Depositum

Årlig driftsudgift

Årlig driftsudgift pr. m²

340.000 kr.

850 kr.

170.000 kr.

30.000 kr.

75 kr.

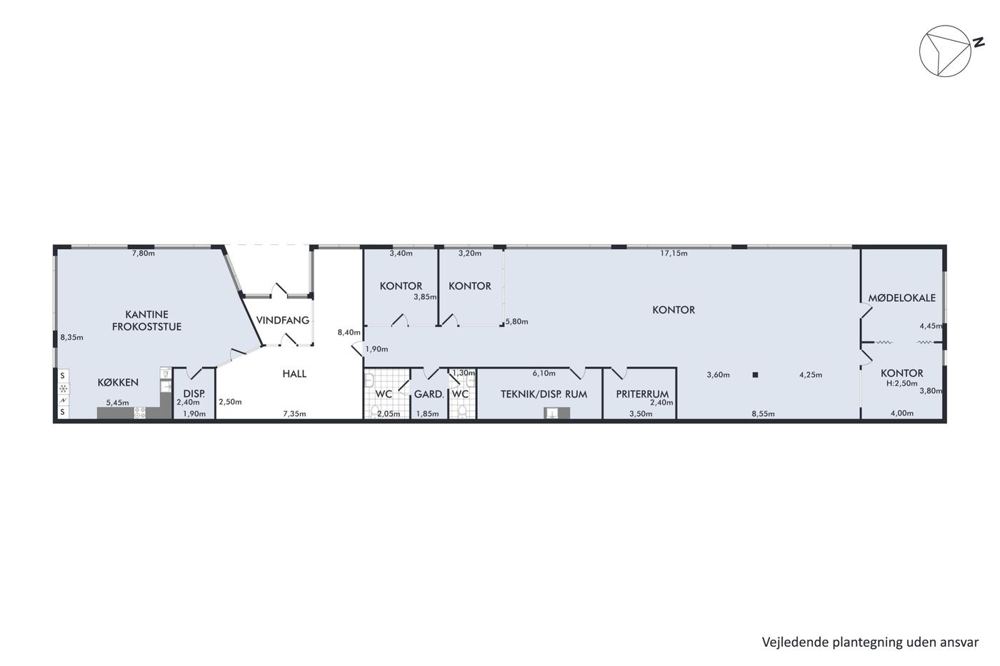
Kontorlejemål på 400 m² - tæt på motorvej

På Bøgildsmindevej 3, stuen, udlejes et attraktivt kontorlejemål på 400 m² med moderne faciliteter, lyse lokaler og en god planløsning.

Lejemålet har en god placering og tilbyder alt, hvad en moderne virksomhed har brug for i hverdagen. Indretningen består af et stort, åbent kontorområde med plads til flere arbejdsstationer, flere mødelokaler i forskellige størrelser, eget køkken med tilhørende frokoststue, samt særskilt printerrum og teknikrum. Lokalerne er indrettet med gode lysforhold, ventilation og tidssvarende IT-infrastruktur, hvilket skaber et behageligt og effektivt arbejdsmiljø.

Ejendommen er beliggende i et etableret erhvervsområde i Nørresundby, med kort afstand til motorvej E45, Aalborg centrum og Aalborg Lufthavn. Området er kendt for sin lette tilgængelighed, og der er rigeligt med parkeringspladser lige ved ejendommen, så både medarbejdere og gæster har nem adgang.

Dette lejemål henvender sig til virksomheder, der ønsker repræsentative kontorlokaler i moderne og funktionelle rammer - centralt beliggende i et attraktivt erhvervsområde med alt inden for kort afstand.

Læs mere

Vil du vide mere?

Nikolaj Kjelder

nik@nordicals.dk

+4561365735

Skibbrogade 3, 2. sal, 9000 Aalborg

+4598134000

9000@nordicals.dk

Besøg vores mæglerside

Lignende ejendomme

Til top