Kystvejen 50
9400 Nørresundby

Sagsnr. 1250826

Ejendomstype

Etageareal

1.300 m²

Årlig leje

Leje pr. m²

Depositum

Årlig driftsudgift

Årlig driftsudgift pr. m²

1.047.800 kr.

806 kr.

523.900 kr.

60.000 kr.

46 kr.

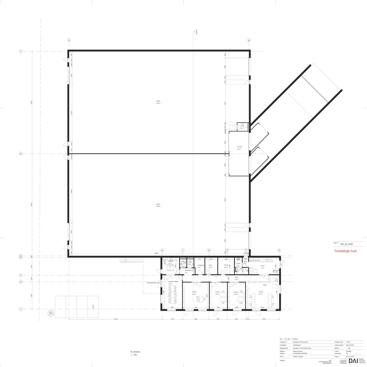
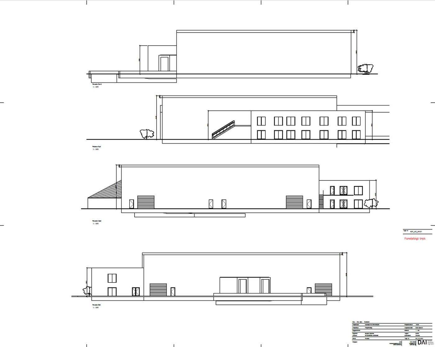
Nyopført lager og kontorejendom til udlejning i Nørresundby

Ejendommen består af en nyopført kontor- og lagerbygning beliggende i et attraktivt erhvervsområde i Nørresundby. Byggeriet forventes at stå færdigt den 1. april 2026 og tilbyder moderne faciliteter samt fleksible indretningsmuligheder for kommende lejere.

På 1. sal af denne moderne erhvervsejendom udbydes et kontorlejemål på 300 m², hvor lejeren har medindflydelse på indretningen. Lokalet afleveres som et råt rum, hvilket giver mulighed for at tilpasse både indretning og materialevalg efter egne ønsker og behov. Ejendommens samlede kontorareal udgør 600 m² fordelt på to etager, hvor stueetagen allerede er udlejet. Parkeringspladser er tilgængelige lige foran administrationsbygningen, som deles med lejeren i stueetagen, og der etableres desuden to offentligt tilgængelige ladestandere til elbiler foran bygningen.

Til ejendommen hører også en nyopført lagerhal på ca., 1.000 m² med loftshøjde på ca. 8 meter. Hallen er udstyret med rampe og sluse og er en del af en fælles varemodtagelse med to sluser, der betjener begge lagerenheder på grunden. Foran ramperne er der et fælles adgangsområde, som sikrer gode logistikforhold. Der er endvidere mulighed for at leje ekstra udenomsareal bag parkeringspladsen efter nærmere aftale, hvis der opstår behov for yderligere plads.

Ejendommen tilbyder moderne faciliteter og høj fleksibilitet, hvilket gør den særligt velegnet til virksomheder, der har behov for både kontor- og lagerkapacitet - og som samtidig ønsker at sætte deres eget præg på indretningen.

Læs mere

Vil du vide mere?

Frederik Larsen

frl@nordicals.dk

+4521201176

Skibbrogade 3, 2. sal, 9000 Aalborg

+4598134000

9000@nordicals.dk

Besøg vores mæglerside

Lignende ejendomme

Til top