Tagholm 15
9400 Nørresundby

Sagsnr. 4250637

Ejendomstype

Etageareal

Grund

Energiklasse

78 m²

3.995 m²

A2015

Årlig leje

Leje pr. m²

Depositum

Årlig driftsudgift

Årlig driftsudgift pr. m²

66.300 kr.

850 kr.

33.150 kr.

14.820 kr.

190 kr.

Kontorlokale i nyere kontorejendom

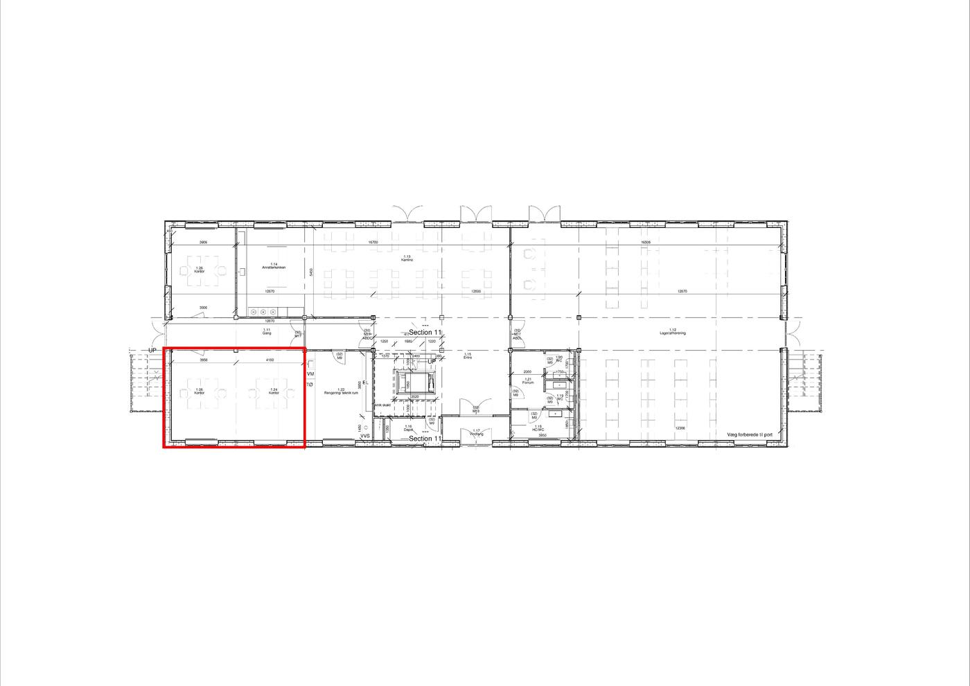
Lejemålet er på i alt 78m² og er beliggende i stueplan. Lokalet er et regulært og lyst kontorlokale. Gulve er i rå slebet beton og lofterne er beklædt med torldtekt.

Stueplan indeholder et centreret indgangsparti og fællesområde, med køkken/kantine og toiletter.

Alle lokaler vil fremstå åbne og lyse, og bære præg af et byggeri med fokus på kvalitetsmaterialer.

Der er gode parkeringsmuligheder på terræn og P-pladserne er inkluderet i huslejen.

I den opførte bygning er der nu kun et kontorlejemål på 78 m² inkl. andel af fællesarealer tilbage i ejendommens stueetage.

Kontorhuset er opført i kvalitetsmaterialer, med fokus på lav vedligeholdelse og lang holdbarhedstid, dette er med til at skabe grobund for et godt arbejdsmiljø, det begrænser de fremtidige vedligeholdelsesomkostninger samtidig med, at det giver bebyggelserne og området et unikt udtryk, der falder i ét med den omkringliggende natur.

I et af Nørresundbys absolut mest spændende erhvervsområder, nær Aalborg Lufthavn, Motorvej E45/E39 og Aalborg midtby, udbydes nu en række attraktive erhvervsdomiciler.

Fjordholmen er en del af Nørresundbys nye vækstområde, der med fokus på videns- og vækstvirksomheder skal være med til at skabe og udvikle nye arbejdspladser, til gavn for hele vores region.

Området har en ideel placering i forhold til infrastruktur, både til lands, til vands og i luften.

Her er kort afstand til Aalborg Lufthavn, der har mange daglige flyvninger til København, Norden og Europa, og kort afstand til motorvejen, som giver nem adgang til færgeterminalerne i Hirtshals og Frederikshavn samt til resten af Danmark og Europa. Herudover er der gode offentlige trafikforbindelser mellem dette område, Aalborg midtby og resten af lokalområdet og med den nye cykelbro er afstanden til Aalborg midtby gjort endnu kortere, hvilket giver god mulighed for at krydse fjorden.

Området har en unik placering, i et naturskønt område omkranset af et smukt engareal og med udsigt ud over Limfjorden og Egholm.

Læs mere

Vil du vide mere?

Jens Eskildsen

jes@nordicals.dk

+4551261408

Skibbrogade 3, 2. sal, 9000 Aalborg

+4598134000

9000@nordicals.dk

Besøg vores mæglerside

Lignende ejendomme

Til top