Nørregade 10A
9480 Løkken

Sagsnr. E4124

Ejendomstype

Etageareal

Grund

Energiklasse

779 m²

412 m²

C

Centralt beliggende gågadeejendom i Løkken

Nordicals Vendsyssel udbyder hermed denne erhvervsejendom beliggende på Nørregade 10A i Løkken.
Bygningen er opført i 1912 og har senere gennemgået til-/ombygning i 1994. Beliggenheden i Løkkens gågade byder på mange strøgkunder, og facadeværdien på ejendommen er god.

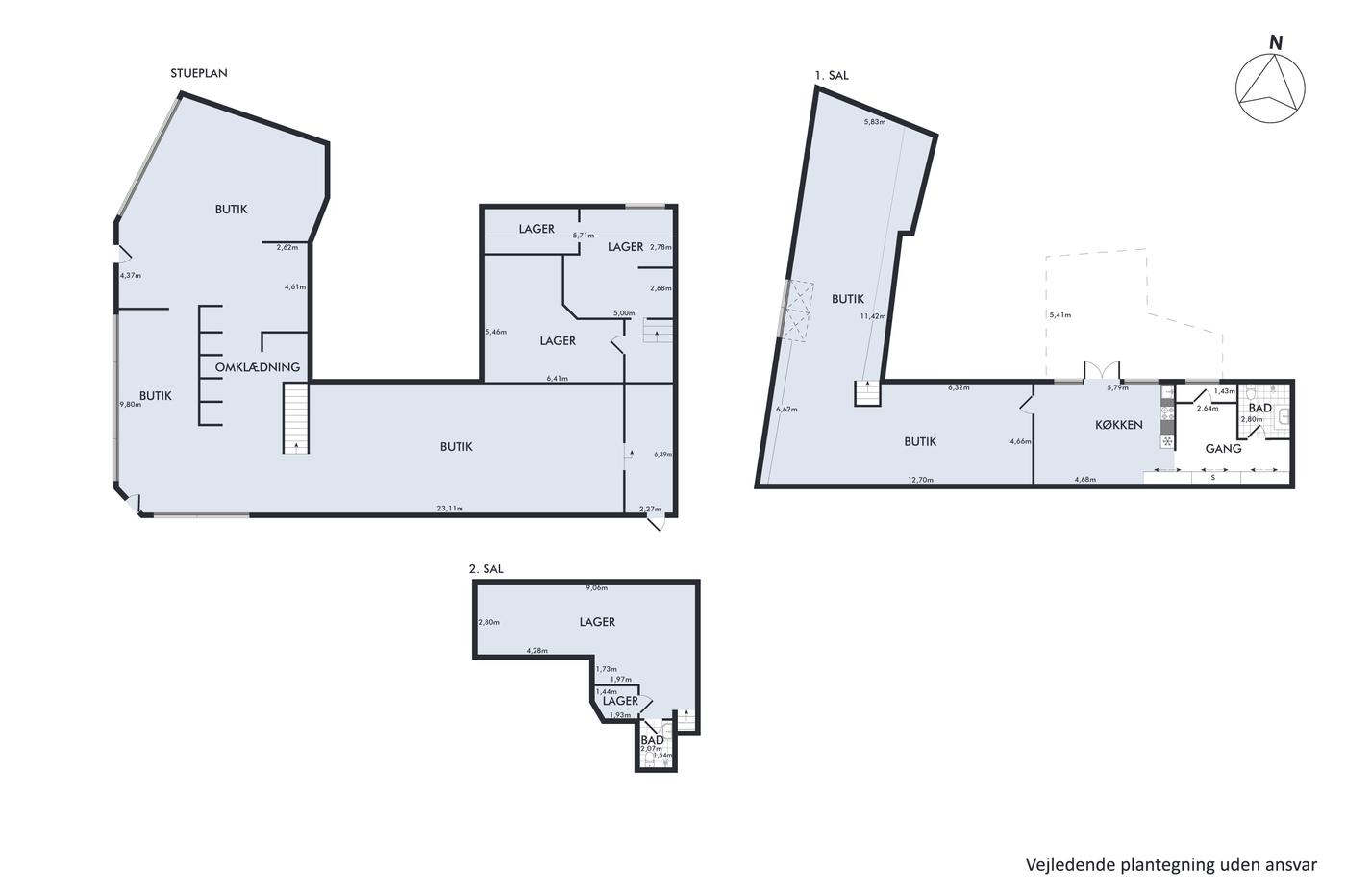
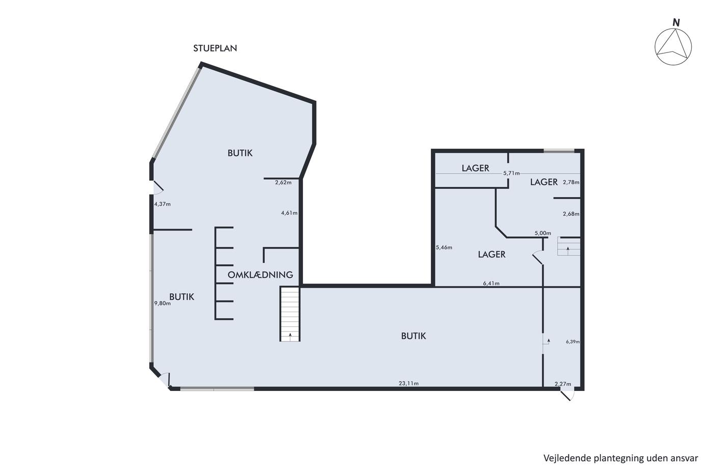
Ejendommen fordeler sig med stueetage, 1. sal og 2. sal. Stueetagen er indrettet som butik med store åbne rum tilpasset nuværende butiks anvendelse. I stueetagen er der desuden lagerlokaler bagerst, som kan ændres til butiksarealer ligeledes. 1. salen byder på åbne butiksarealer. Der er derudover indrettet en personaleafdeling på 1. salen med dertilhørende køkken, badeværelse og terrasse.

Nuværende ejer af ejendommen anvender selv lokalerne til hans forretning, men vedkommende flytter i forbindelse med et salg og ejendommen er derfor til fri disposition for ny ejer.

Indretningen byder på mange anvendelsesmuligheder med alt lige fra eksisterende anvendelse til mulighed for konvertering af noget af ejendommen.

Bygningen fremtræder med hvidpudset facader og eternittag og træ/alu vinduer.

Løkken er en charmerende kystby beliggende i Nordjylland. Byen er en af landets mest populære feriedestinationer, kendt for sin smukke natur, dejlige strande og hyggelige atmosfære. Løkkens bymidte har et bredt udvalg af butikker, caféer og restauranter.

Hør mere om denne yderst spændende ejendom hos Nordicals Vendsyssel.

Læs mere

Denne ejendom er solgt

Vil du vide mere?

Simon Wiehl

swi@nordicals.dk

+4521516368

Midtpunkt 58, 9900 Frederikshavn

+4598426400

9900@nordicals.dk

Besøg vores mæglerside

Lignende ejendomme

Til top