Høje Støvring 19-124
9530 Støvring

Sagsnr. 7250815

Ejendomstype

Etageareal

Grund

Energiklasse

2.394 m²

7.064 m²

A2015

Kontantpris

Købspris pr. m²

Afkast

Årlig lejeindtægt

Årlig lejeindtægt pr. m²

Årlig driftsudgift

Årlig driftsudgift pr. m²

48.700.000 kr.

20.343 kr.

4,6 %

2.660.439 kr.

1.111 kr.

442.779 kr.

185 kr.

Investeringsejendom - Høje Støvring

20 etplans rækkehuse - attraktiv investering i Høje Støvring på naturskøn beliggenhed.

I et nyere og meget populært boligområde i Støvring udbydes nu en sjælden investeringsmulighed: 20 moderne rækkehuse (restsalg idet de omkringliggende rækkehuse er solgt til private), alle opført i perioden 2020-2023 og beliggende på selvstændige matrikelnumre. Ejendommen sælges samlet som en udlejet portefølje med stabile lejeindtægter.

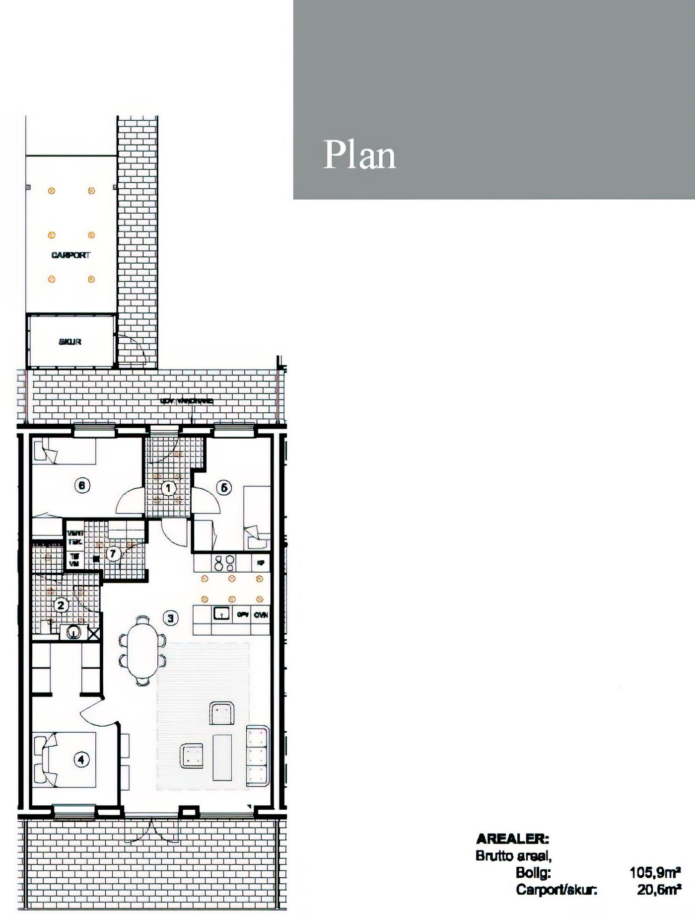
Boligerne varierer i størrelser fra 106 m² til 135 m² og er alle opført i ét plan med gennemtænkte planløsninger, høj byggestandard og moderne materialevalg. Bebyggelsen består af 9 klyngehuse og 11 gårdhavehuse, hvilket giver en god blanding af boligtyper og tiltrækker et bredt lejerspektrum.

Til hver bolig hører egen carport med integreret redskabsrum, hvilket øger komforten og gør boligerne endnu mere attraktive for lejerne.

Ejendommene er beliggende i en nyere udstykning med kort afstand til skole, daginstitutioner, indkøbsmuligheder og grønne områder. Området er kendt for sin høje tiltrækningskraft, naturskønne og rolige placering, gode infrastruktur og nærhed til motorvejsnettet - alt sammen forhold, der bidrager til lav tomgang og solid udlejningssikkerhed.

Denne portefølje giver investoren mulighed for at erhverve en moderne, vedligeholdelseslet boligmasse med mange års lejeindtægter foran sig - i et område med fortsat vækst og stor efterspørgsel på kvalitetslejemål.

Nedenstående er KUN et UDDRAG og kortfattet beskrivelse af konstruktioner, materialer og udstyr. Boligerne udføres handicapvenlige med blandt andet niveau fri adgang til entredør. Der kan rekvireres særskilt projektmappe ved henvendelse til Nordicals.

Klinker:
Entré/bryggers og badeværelse er belagt med klinker inkl. sokkelklinke. Klinkevalg; Home Light Grey på 30x60cm.

Fliser:
Der er monteret fliser i bruseniche i badeværelse. Flisevalg; Home Light Grey på 30x60cm.

Skillevægge:
100 mm letbeton.

Tagkonstruktion:
Pap tag. Spær iht. norm og fald til nedløb iht. gældende norm, godkendt underlag til tagpapdækning inkl. udluftning iht. norm. Inddækning udføres i sort stål. Nedløb føres i teknikskab.

Loftskonstruktion:
450 mm mineraluld. Dampspærre fastholdt med 25 x 100 mm liste. 13 mm gips kort plank 60x240 cm i tredje dels forbandt, i stue udføres moduler lydgips, Gyptone Quattro 20 iht. tegninger.

Redskabsrum og carport:
Til hver bolig opstilles redskabsrum som udføres i træ som beklædes med sort hardie plank og tag som hovedhusene, underbeklædning i hvid eternit. Der opsættes træhegn omkring affaldsø og omkring gårdhave, som beklædes sort hardie plank. For hver boligenhed opsættes postkasse, fabrikat MEFA, farve sort, Monteres på 60x60 cm betonflise. Der påsættes husnr. på postkasse og navneplade under lampe ved indgangsdør.

Døre og vinduer:
Døre og vinduer udføres i træ/alu, sort udvendigt og hvide indvendigt med 3 lags lavenergiglas. Indvendige døre leveres, som hvidmalede celledørplader, med karm i fyr, uden gerigter. Dør mellem entre og stue er med 2 vandrette sprosser og 3 ruder. Karm leveres med 25 mm overstørrelse. Døre monteres med skum, så glasfilt går ind mod bagkant karm.

Inventar:
Elementer leveres fra HTH. Lågefronter i køkken/bad/ bryggers og teknikskab udføres i model MONO hvidmalet låge, med intrigerede låger på køl/frysekab og opvaskemaskine. Bordplader udføres i køkken udføres som 30 mm højtrykslaminat med alu. look forkant og underlimet vask. Til bad leveres helstøbt hvid mat vaskebordplade i kunstmarmor, spejl med LED belysning i sider.

Gulvbelægning:
Hvor der ikke er klinkegulv nedlægges "Kyst Eg plank" på underlag.

El-Installation:
Komplet el-installation med såvel 240 v som 400 v indlagt fra offentligt net iht. stærkstrømsregulativet. Installationen omfatter stik og lampeudtag. Der laves 1 stk. udvendigt stik ved terrasse, 1 stk. i redskabsrum, 1 stk. ved indgangsdør og 1 stk i carport. Der udføres stik for et antenne-, EDB- og bredbåndsstik i alle opholdsrum ud til teknikskab. Køber indgår selv aftale med den forsyning de vælger. Der monteres komplet ringeklokke. Der monteres røgdetektor iht. gældende regler. Der monteres udvendig målerkasse, gruppeafbryder samt HPFI-fejlstrømsrelæ. Der udføres installation for alle hårde hvidevarer, samt installation til kondenstørretumbler og vaskemaskine. Ligeledes afsættes 3 extra stikkontakter i teknikskab til ejers fri disposition.

Der monteres LED-spot i bad, toilet, gang og køkken. Der monteres LED spot i carport og på terrasse. Alle spot tændes med censor. Udvendig belysning ved intern vej og parkering, samt ved
indgang tilkobles fællesur og astro ur, som oplysning af indgangsstier.

Hvidevarer:
- Hvidevarer leveres af hvidevareleverandøren og monteres/tilsluttes af elektrikeren
- Indbygningsovn Siemens.
- Microovn Siemens.
- Glaskeramisk kogesektion Siemens.
- 80 cm stænkplade.
- Køle/fryseskab Siemens.
- Opvaskemaskine Siemens.
- Emhætte Siemens.

Varmeanlæg:
Der etableres tilslutning til offentligt fjernvarmeforsyningsnet, efter forsyningsselskabs gældende regler for området, med selvstændige varmeforbrugsmålere i hver boligenhed. Varmtvandsinstallationer afsluttes i teknikskab ved fjernvarmeaggregat. Der etableres gulvvarme med trådløse følere i hele boligen i fabrikat som Danfoss, som placeres i hovedtræk over stikkontakt ved dør.

Vand og Sanitet:
Der etableres tilslutning til offentligt vandforsyningsnet efter gældende normer og regler.

Der leveres og monteres følgende sanitet:
- IFØ vandbesparende sanitetskloset, væghængt.
- Blandingsbatteri til håndvask i badeværelser, Hansgrohe Focus 70 m. bundventil.
- Blandingsbatteri til køkken, Hansgrohe Focus E.
- Termostatisk blandingsbatteri i brusenicherer,
- Hansgrohe Ecostat 1001 SL.
- Brusesæt til brusenicher Hansgrohe Crometta
- Vario 65 cm hvid/krom.
- Installation til vaske- og opvaskemaskine.
- Badeværelsestilbehør så som toiletpapirholder, kroge m.m. Hansgrohe
- Brusevæg og dør udføres i glas.
- Vandvarmer udføres, som gennemstrøms vandvarmer.
- Udvendig frostfri vandhane til hver bolig ved fordør.

Ventilation:
Der udføres ventilationsanlæg med varmegenvinding, som Nilan comfort med bypass, med udsugning fra vådrum og køkken. Frisk luft føres ned i værelse og stue.

Malerarbejde:
Indvendigt træværk som ikke er leveret fabriksmalet behandles for knastudslag, og gives 2 gange hvid maling som glans 20. På indvendige vægge hvor der ikke er monteret fliser og skabe opsættes glasfilt, som malerbehandles i lyse farver, med glans 5 i stue og værelser, glans 10 i køkken og gange og glans 20 i badeværelse. Lofter spartles for skruer m.m., fuges mod væg og males hvide.

Læs mere

Vil du vide mere?

Mattias Manstrup

mam@nordicals.dk

+4524285101

Skibbrogade 3, 2. sal, 9000 Aalborg

+4598134000

9000@nordicals.dk

Besøg vores mæglerside

Lignende ejendomme

Til top